Kappendecke einmal anders
Wohnhaus in Andalusien von Eova Studio
Vom Wohnraum führt eine Wendeltreppe aus Stahl hinauf zur offenen Küche unter dem gewölbten Dach. © Fernando Alda
Die Kleinstadt La Línea de la Concepción liegt dicht an der Grenze zu Gibraltar ganz im Süden Spaniens. Der berühmte Affenfelsen, Wahrzeichen der britischen Exklave, ist vom Grundstück des Oché House aus gut zu sehen. Die Grundstücksmaße schränkten die Entwurfsfreiheit jedoch erheblich ein: Die Parzelle ist nur 3,5 m breit, aber 15 m tief.


Für das Dach wählten die Architekten eine Stahlkonstruktion mit eingehängten Ziegelkappen. Sie wird sonst eher für ebene Geschossdecken verwendet. © Fernando Alda
Unverputzte Ziegelwände bringen Speichermasse
Um das Beste aus der Situation zu machen, ließen die Architekten zunächst zwei Brandwände aus unverputzten Lochziegeln auf den Längsseiten errichten. Sie verleihen dem Haus zusätzliche thermische Speichermasse und dienen als Auflager für die Decken. Innenwände sind auf ein notwendiges Minimum reduziert.
Ungewöhnliche Dachkonstruktion
Die Aussichtsseite des Hauses liegt im Süden – und hier, hinter der unscheinbaren, verputzten Straßenfassade, ist das Haus dreigeschossig. Richtung Innenhof im Norden reduziert sich seine Höhe auf zwei Etagen. Für das gewölbte Dach wählten die Architekten eine Konstruktion aus Stahlträgern und Ziegelkappen. Sie ist in Spanien durchaus gebräuchlich, sonst jedoch nur in ebenen Geschossdecken zu finden.


Längsschnitt des Oché House, Grafik © Eova Studio
Raumprogramm steht Kopf
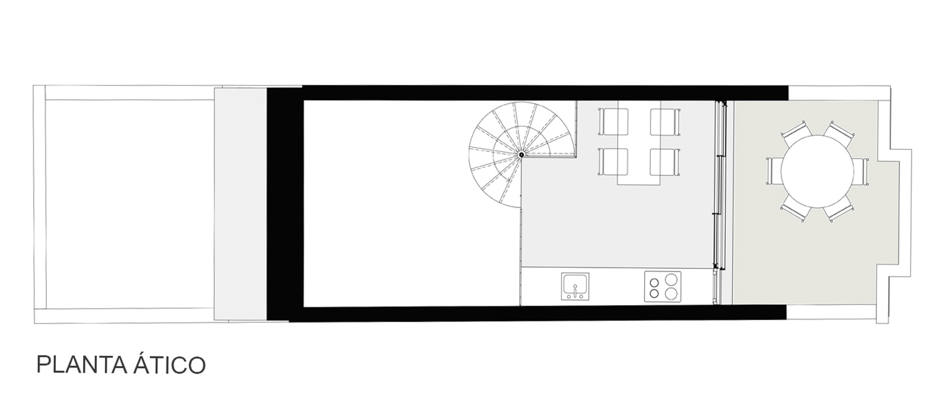
Das sonst übliche Raumprogramm ist beim Oché House gewissermaßen auf den Kopf gestellt: Im Eingangsgeschoss liegt ein Schlafzimmer mit Bad, darüber der Wohnraum und ein zweiter Schlafraum mit Badezimmer. Ganz oben unter dem Dach brachten die Architekten die Küche mit Essplatz unter.


Mit seiner unscheinbaren Putzfassade fügt sich der Neubau nahtlos in die Straßenfront ein. © Fernando Alda


Die Sanitärräume im Erdgeschoss sind in einen eingeschossigen Annex Richtung Hof ausgelagert. © Fernando Alda
Küche mit Aussichtsterrasse
Jedem Teil des Hauses ist ein eigener Freibereich zugeordnet: Das Schlafzimmer im Erdgeschoss orientiert sich zu dem kleinen Hof im Norden. Der Wohnraum eine Etage höher geht auf die Dachterrasse des rückwärtigen, L-förmigen Anbaus hinaus. Der Schlafraum gegenüber hat ein markantes Erkerfenster Richtung Straße mit vorgelagertem Mini-Balkon. Vom Essplatz ganz oben schließlich gelangt man auf eine von der Straße nicht einsehbare Südterrasse mit Felsenblick.


Auch der Wohnraum im ersten Obergeschoss orientiert sich nach Norden zum Innenhof. © Fernando Alda


Ziegel und Stahl bestimmen die Materialpalette in den Innenräumen. © Fernando Alda
Rötliche Ziegel und weiß lackierter Stahl bestimmen die Farb- und Materialpalette in den Innenräumen. Hinzu kommt cremefarbener Kalkputz an den Installationswänden im Gebäudeinneren sowie an der Straßenfassade und den Wänden rund um den Hof.
Architektur: Eova Studio
Bauherr: privat
Standort: La Línea de la Concepción, Cádiz (ES)
Bauunternehmen: Construcciones Javier Guzmán


















