Wohnhalle unter Tonnengewölbe
Wohnhaus in Ihlow von AG8 und Yana Kyuchukova
Das Einfamilienhaus steht mitten auf dem großzügigen Gartengrundstück, umgeben von Obst- und anderen Laubbäumen. © Jasper Schulte
Mit unverputzten Ziegelmauern und Dachelementen aus dem Industriebau hat das Team von AG8 Architektur kostengünstigen Wohnraum für eine Familie geschaffen. Das eingeschossige, 125 m² große Haus steht mitten auf einem langgestreckten Gartengrundstück am Rand von Ihlow, einem kleinen Dorf etwa 50 km nordöstlich von Berlin. Eine Freifläche zwischen den zahlreichen Obst- und Laubbäumen war bereits vorhanden und gab gleichsam den Bauplatz für den Neubau vor.


Eine große Wohnhalle mit Küche bildet das Zentrum des Familienlebens. © Jasper Schulte
Wohnhalle im Zentrum
In Gesprächen mit der Familie entwickelten die Architekten die zentrale Entwurfsidee eines großen Raumes für alle Aktivitäten: Kochen, Essen, Spielen, Arbeiten. Mit einem Systemdach aus dem Industriebau gelang es, den großen Innenraum kostengünstig herzustellen.
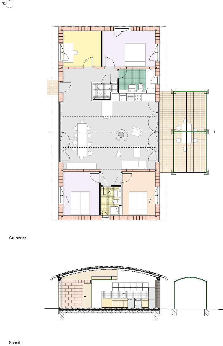
Vier Individualräume und zwei Bäder liegen hinter Ziegelmauern an den Stirnenden des Hauses. Ein schlanker Holzofen bildet das räumliche Zentrum der großzügigen Wohnhalle. Hinter der Küche trennt ein eingestellter Abstellraum den Eingangsbereich ab.


Tonnenförmig gewölbte Sandwichelemente aus dem Industriebau überspannen den großen Raum stützenfrei. © Jasper Schulte
Wohnen mit der Natur
Das Leben im Haus sollte – so der Wunsch der Bauherren – zu jeder Jahreszeit mit der Natur verbunden sein. Große Fenstertüren öffnen die Wohnhalle daher auf beiden Seiten zum Garten. Im Süden legten die Architekten eine Terrasse mit grün lackierter, ebenfalls tonnengewölbter Pergola an. Der gleiche Farbton kehrt auch an den Schlafzimmerfenstern wieder.


Raumhohe Glasflächen öffnen den Wohnraum auf beiden Seiten zum Garten. © Jasper Schulte


Die grüne Pergola greift die Tonnenform des Hausdachs auf. Die Außenwände aus Dämmziegeln wurden lediglich geschlämmt. © Jasper Schulte
Geschlämmte Ziegelwände
Das Haus ist in monolithischer Bauweise errichtet. Das Dämmziegelmauerwerk ist auf der Außenseite lediglich geschlämmt, sodass die Fugen und die Oberflächenstruktur der Steine sichtbar bleiben. Auch im Innenraum sind die Baustoffe größtenteils ablesbar, mit unverputztem Mauerwerk, Holzoberflächen der Ständerwände, einem versiegelten Estrichboden sowie dem Metallblech der Dachschalen.
Architektur: AG8 Architektur mit Yana Kyuchukova
Bauherr: privat
Standort: Siedlung 2, 15377 Oberbarnim OT Ihlow (DE)











