Erweiterung eines Industriebrachegeländes
Wohnhaus und Büro bei Inverness von Loader Monteith
Die beiden Gebäude stehen am Beauly Firth westlich von Inverness. Ein drittes soll noch 2024 folgen. © Henry Woide
Für einen Anbieter von Mountainbike-Urlauben haben Loader Monteith im Norden Schottlands ein Bürogebäude und ein Wohnhaus geplant. Ein zweites Wohngebäude soll folgen. Der neue Firmensitz von H&I Adventures liegt am Rande der Ortschaft Bunchrew westlich von Inverness. Zwischen Landstraße und Bahnlinie war nur ein schmales, 5600 m² großes Grundstück frei, auf dem die Firmengründer wohnen und arbeiten wollten. Loader Monteith planten darauf drei Neubauten, von denen die ersten beiden – ein Büro und ein Wohnhaus – 2022 fertiggestellt wurden. Ein weiteres Wohnhaus soll noch 2024 folgen.


Im Giebelhaus an der Straße sind die Büroräume und Werkstätten von H&I Adventures untergebracht. © Henry Woide
Dezente Hülle aus geflammtem Lärchenholz
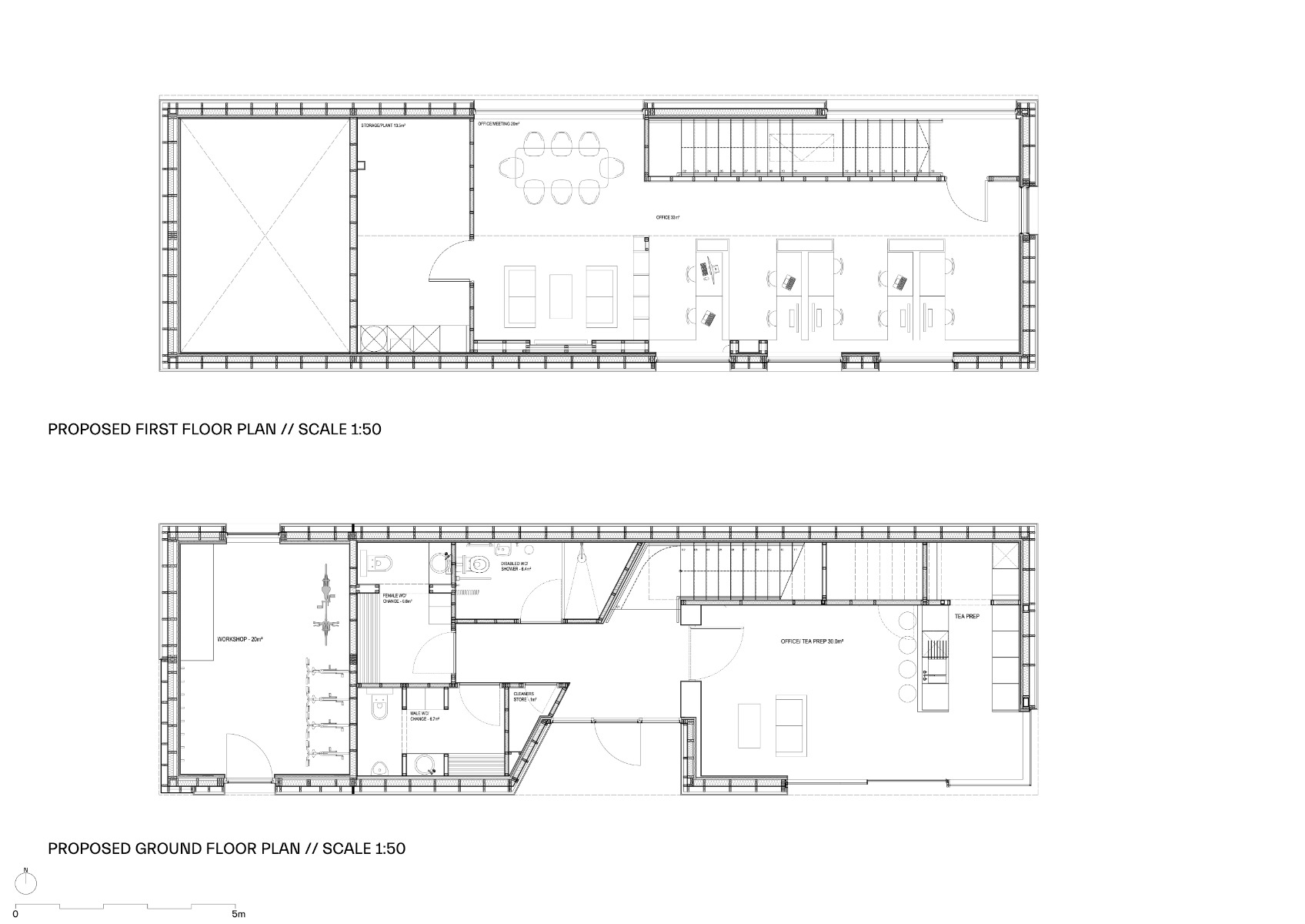
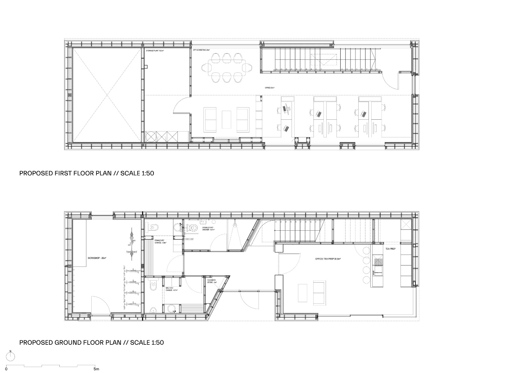
Gemeinsam ist allen Gebäuden ihre Fassadenverkleidung aus leicht fleckigem, geflammtem Lärchenholz. In der Bauform unterscheiden sie sich dagegen deutlich: Das Bürogebäude an der Straße ist ein langgestrecktes Giebelhaus. Zur Straße im Norden ist es fast vollkommen geschlossen, im Süden öffnet sich eine Küche mit großzügiger Eckverglasung zum Parkplatz.
Neben der Küche und den Büros sind im Gebäude auch Umkleiden, Duschen und eine 20 m² große Fahrradwerkstatt untergebracht, deren cortenstahlverkleidete Ecke einen Farbakzent in der grau-schwarzen Gebäudehülle setzt. Im großen Büroraum unter dem Dach finden zehn Mitarbeitende Platz. Niedrige Panoramafenster bieten ihnen einen Ausblick auf den Meeresarm des Beauly Firth im Norden.


Die Küche im Erdgeschoss des Bürogebäudes öffnet sich mit Eckverglasung zum Parkplatz. © Henry Woide
Oben Holz, unten Beton
Das Gebäude ist als Holzständerbau mit Bodenplatte aus Beton konstruiert. Vor allem in der Küche im Erdgeschoss kommt diese Materialkombination in Form eines polierten Betonfußbodens und rötlich-brauner Deckenpaneele aus Holz deutlich zur Geltung. Im Obergeschoss dominieren dagegen weiße Decken und Wände aus Gipskarton.


Die Büros liegen im Obergeschoss unter dem Giebeldach des Bürogebäudes. © Henry Woide


Das Wohnhaus folgt mit seinem Split-Level der Geländetopografie. © Henry Woide
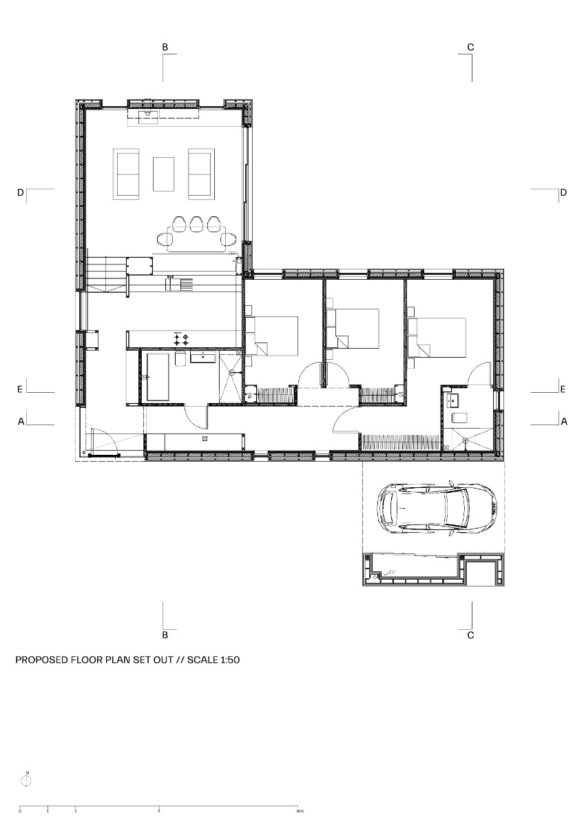
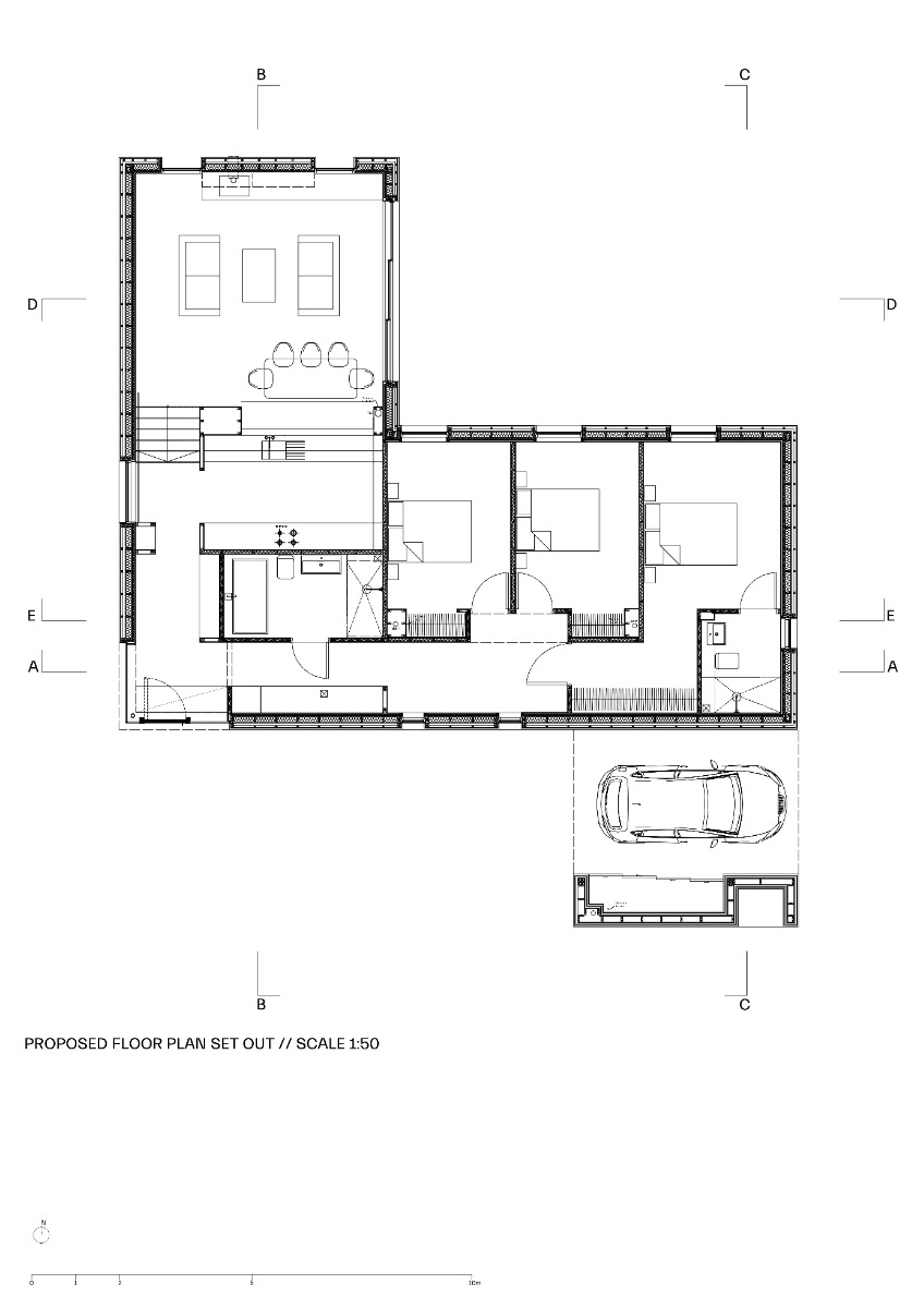
Wohnlandschaft auf zwei Ebenen
Das Wohnhaus steht auf dem südwestlichen, höher gelegenen Teil des Grundstücks; auch das zweite soll hier entstehen. Mit einem Z-förmigen Grundriss und einem flach geneigten, Dach duckt sich das Haus in die Wiesenlandschaft. Seine größten Öffnungen liegen im Osten, mit Blick Richtung Wasser. Die Nordfassade und die Zufahrtsseite im Westen sind dagegen deutlich geschlossener. Charakteristisch an dem eingeschossigen Bau ist sein Split-Level-Grundriss mit tiefer liegendem Wohnraum.


Die Fassaden beider Häuser sind mit geflammter Lärche verkleidet. Im Detail lassen sich allerdings deutliche Unterschiede erkennen. © Henry Woide
Variationen in der Holzfassade
Die Fassaden des Wohnhauses unterscheiden sich subtil von der flachen Holzverkleidung des Bürogebäudes. Unterschiedlich breite, in mehreren Ebenen angebrachte Holzlatten verleihen ihnen Struktur und Tiefe. Ein in Bauchhöhe angebrachtes, bronzefarbenes Tropfblech gliedert die Hülle horizontal in drei Teile. Eine Solaranlage auf dem Dach und ein Batteriespeicher sorgen für einen minimalen Strombedarf aus dem Netz. Dieses Prinzip der Energieversorgung wollen Loader Monteith auch beim letzten der drei Gebäude beibehalten.
Architektur: Loader Monteith
Bauherren: Catherine Shearer + Euan Wilson, H&I Adventures
Standort: Bunchrew, Inverness IV3 8TA (GB)
Tragwerksplanung: Adam Hemmings Structural Solutions
Bauunternehmen: Aspen

























