Klein, aber fein
Wohnhausanbau in London von Bureau de Change
© Gilbert McCarragher
Lorem Ipsum: Zwischenüberschrift
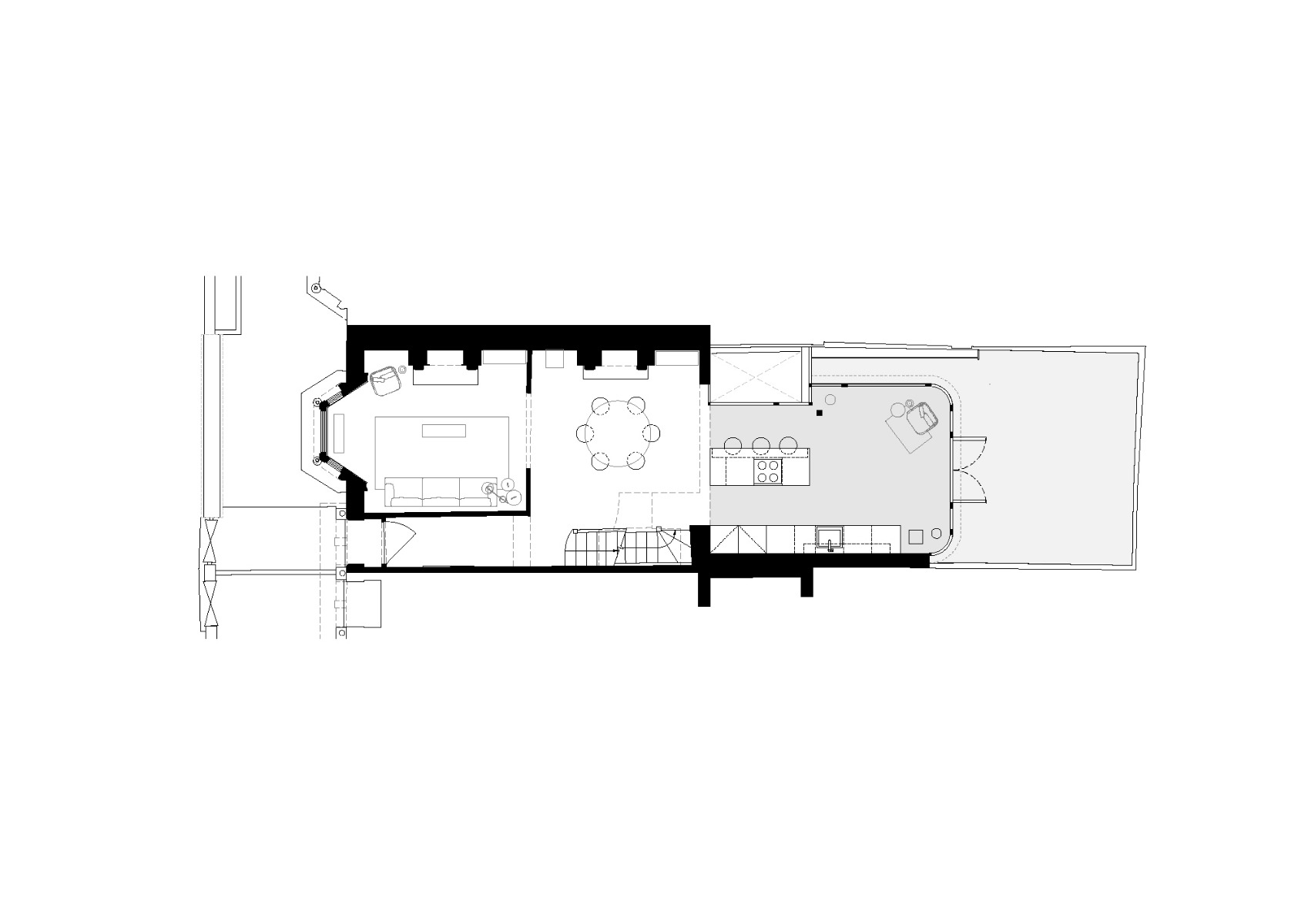
Das britische Architekturbüro Bureau de Change ergänzt im Londoner Stadtteil Stoke Newington ein Wohnhaus um einen verglasten Anbau, der nicht nur die Nutzfläche vergrößert. Der 112 m² große Pavillon verbindet Haus und Garten und soll die Übergänge zwischen Innen- und Außenraum neu definieren.


© Gilbert McCarragher
Lorem Ipsum: Zwischenüberschrift
Dafür orientieren sich die Planer an der Formensprache des Bestands im viktorianischen Stil und gestalten einen eingeschossigen Annexbau aus Glas. Er dockt in nördlicher Richtung zwischen einem Gästezimmer unten und einem Bad im ersten Stock an der Rückseite des Reihenhauses an und führt direkt in den anschließenden Garten. Die Form des Pavillons lässt genügend Platz für einen Lichtschacht, der die ausreichende Belichtung des Untergeschosses sicherstellt.
Lorem Ipsum: Zwischenüberschrift
Die raumhohen Verglasungen haben – den Stilelementen der Epoche des historischen Wohnhauses entsprechend – abgerundete Ecken und öffnen den Pavillon an zwei Seiten nach draußen. Um dies statisch zu ermöglichen, ist das Flachdach als Kragarm konzipiert. Dieser wird zusätzlich von einer dünnen Säule gestützt und scheint das Dach leicht über den Fensterflächen schweben zu lassen.


© Gilbert McCarragher
Lorem Ipsum: Zwischenüberschrift
Das geschwungene Glas hat nicht nur optische Gründe, sondern soll die Erweiterung dezent in die Umgebung einfügen. Auch die schwarzen Rahmen und das Gesims übernehmen eine spezielle Funktion und dienen als Verkleidung für die Entwässerung.


© Gilbert McCarragher


© Gilbert McCarragher
Lorem Ipsum: Zwischenüberschrift
Im Inneren schafft eine monochrome Materialpalette eine edle Atmosphäre und einen neutralen Hintergrund. Die seitliche Küchenzeile ist mit ihren Schränken und Einbauten ganz in Weiß gehalten. Mitten im Raum steht eine dunkle Kochinsel, die zum Herzstück des Pavillons wird. Eine Sitzecke komplettiert das überschaubare Programm, bevor man hinaus in den neu angelegten Außenbereich gelangt. Dieser ist zwar klein, soll aber künftig mit einer bewachsenen Umzäunung das Gefühl vermitteln, von üppigem Grün umgeben zu sein. Der schlichte Terrazzoboden des Anbaus setzt sich bis ins Freie fort und lässt Haus und Garten fließend ineinander übergehen.
Architektur: Benthem Crouwel Architects
Bauherr: Privat
Standort: London (GB)
Tragwerksplanung: SimpleWorks













