Stadtregal mit Wasserblick
Wohnkomplex in Vilvoorde von Atelier Kempe Thill
Zum Brüssel-Schelde-Kanal öffnen sich die Wohnungen zu 3,5 m tiefen Terrassen aus Betonfertigteilen. © Ulrich Schwarz, Berlin
Die 45 000-Einwohner-Stadt Vilvoorde liegt knapp nördlich von Brüssel am Ufer des Seekanals Brüssel-Schelde. Wie in der belgischen Hauptstadt hat sich auch hier am Kanalufer eine interessante Mischung aus Gewerbe und Wohnen etabliert. Der Bauplatz, mit dem es Kempe Thill hier zu tun bekamen, liegt in einem fragmentierten Umfeld: Im Westen der Kanal mit unverbaubarem Blick auf den historischen Landschaftspark De Drie Fonteinen, im Norden umgenutzte Industriebauten, im Osten Reihenhäuser und im Süden, nur 300 m entfernt, die Stadtautobahn auf einem Viadukt.


Reihenhäuser, Industrieanlagen und eine Stadtautobahn bilden das heterogene Umfeld für den Wohnkomplex im Norden von Brüssel. © Ulrich Schwarz, Berlin
Vorne urban, hinten kleinteilig
Entsprechend komplex waren die Anforderungen, die der Masterplan des Büros BURR an den Wohnungsneubau von Kempe Thill stellte. Am Kanalufer sollte eine mindestens fünfgeschossige, geschlossene Gebäudekante mit achtgeschossigem Akzent im Norden sowie Läden oder Restaurants im Erdgeschoss entstehen. Richtung Osten waren dagegen möglichst kleinteilige Gebäudevolumen mit maximal vier Geschossen gewünscht.
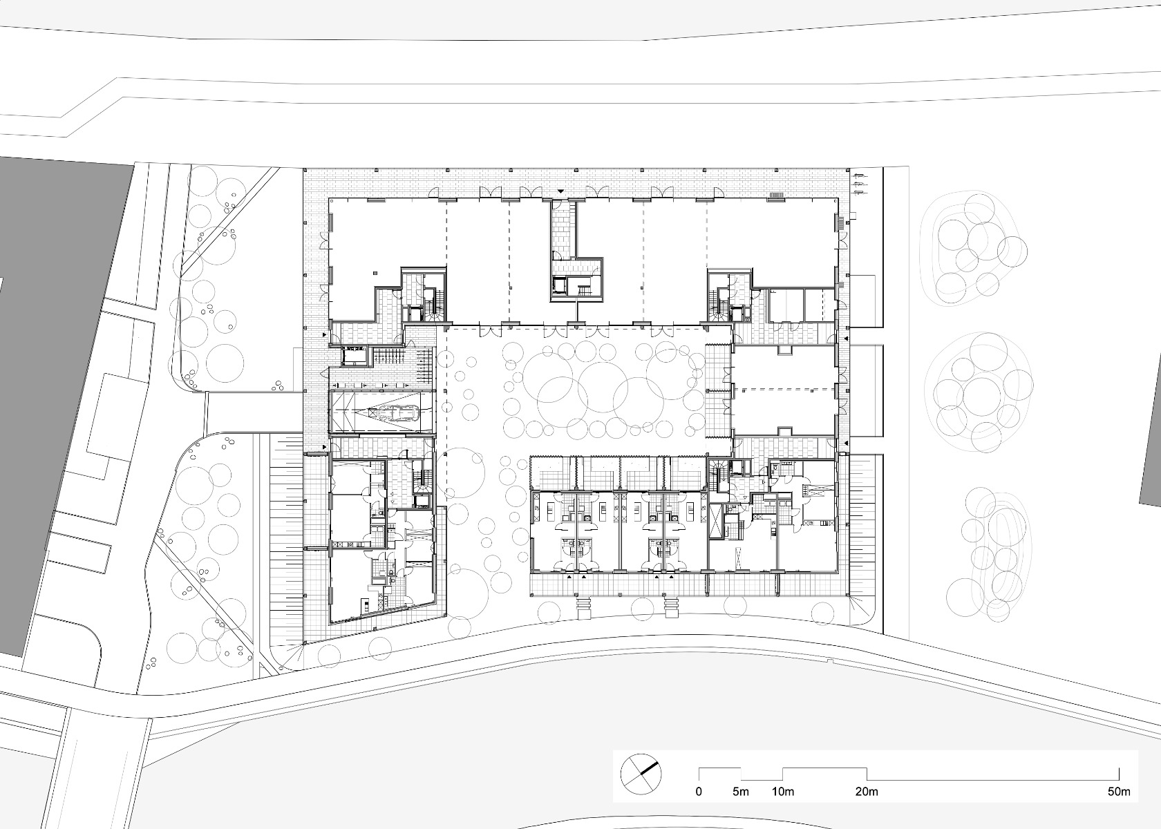
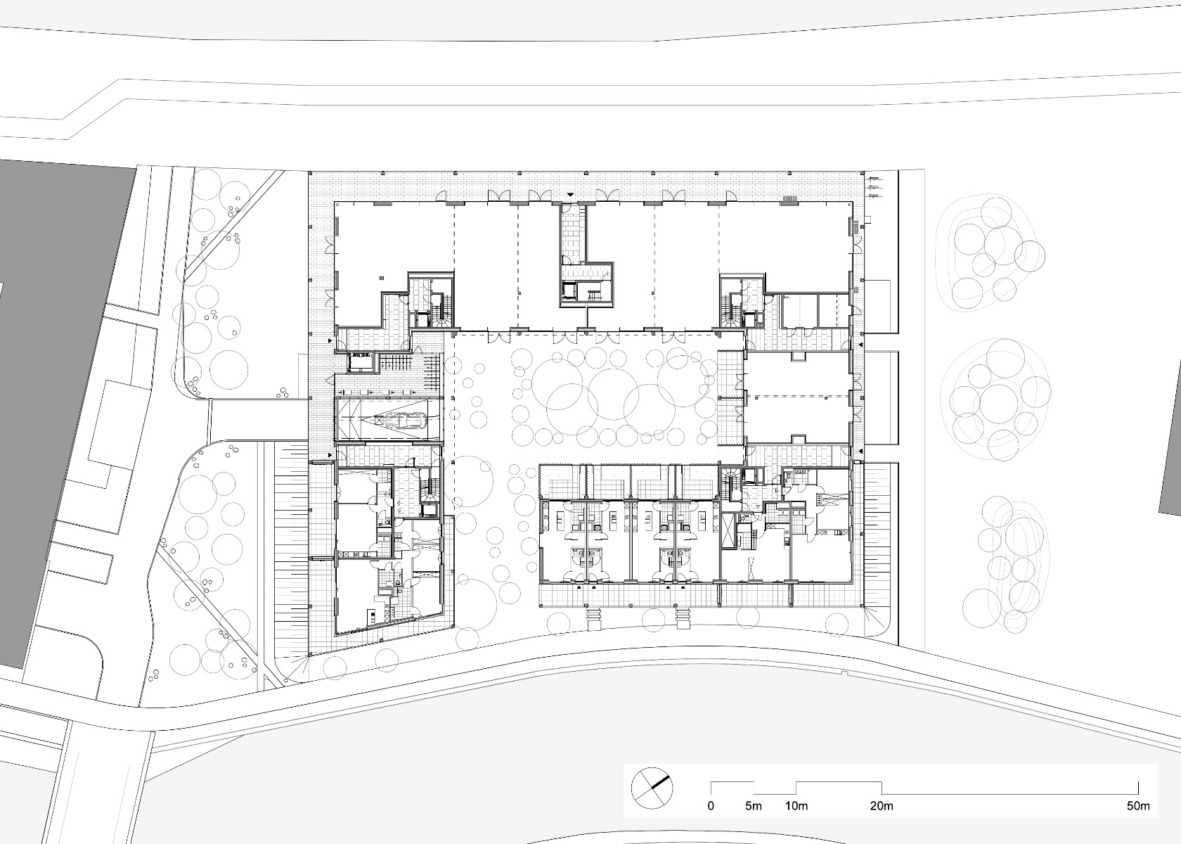
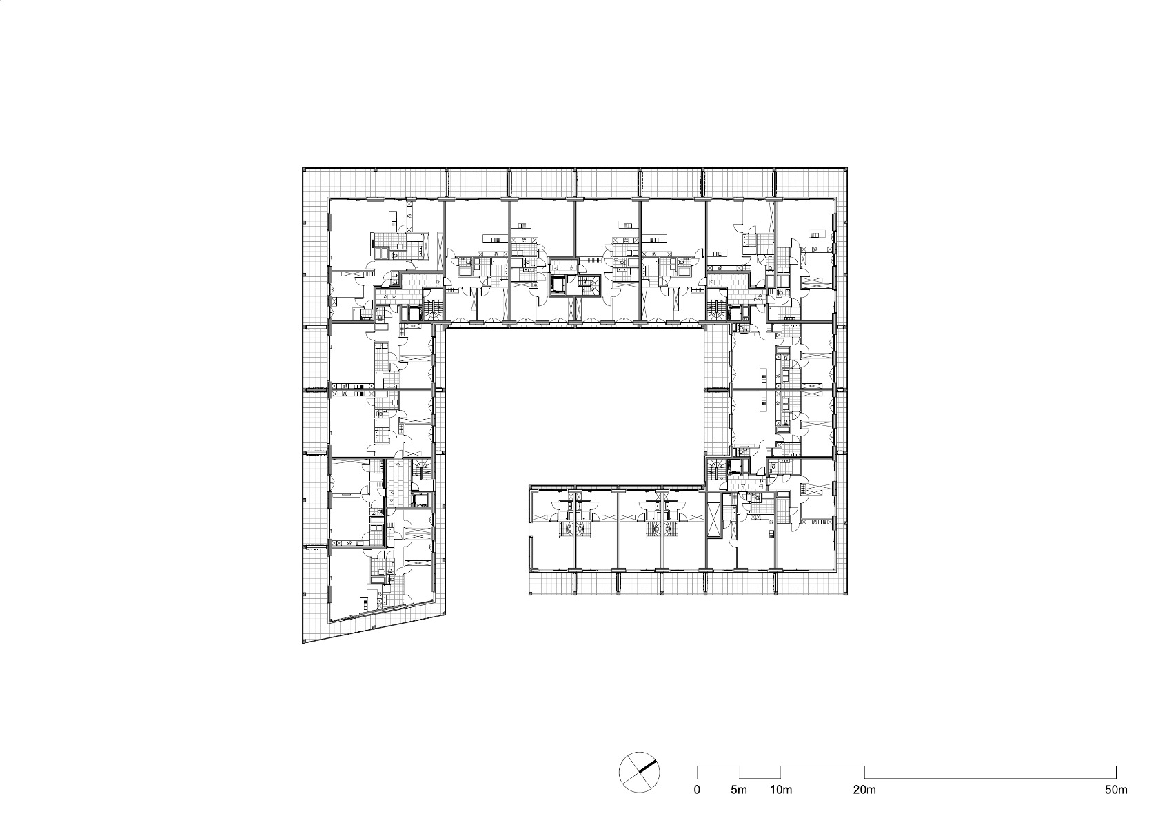
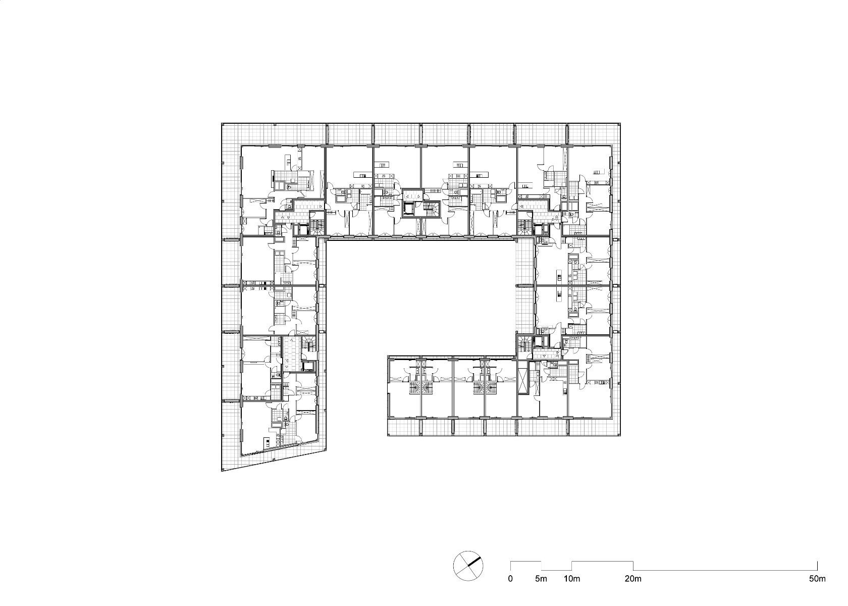
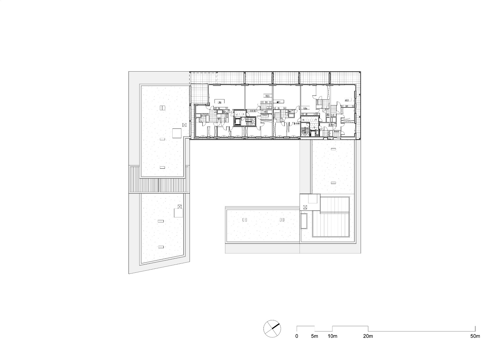
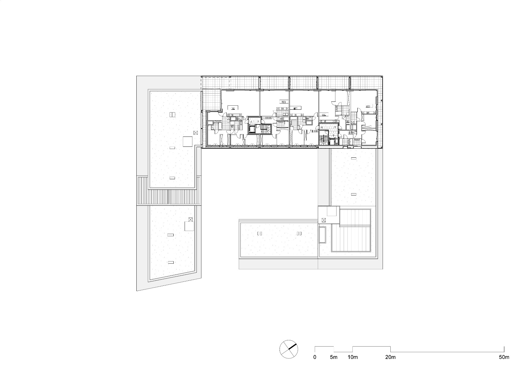
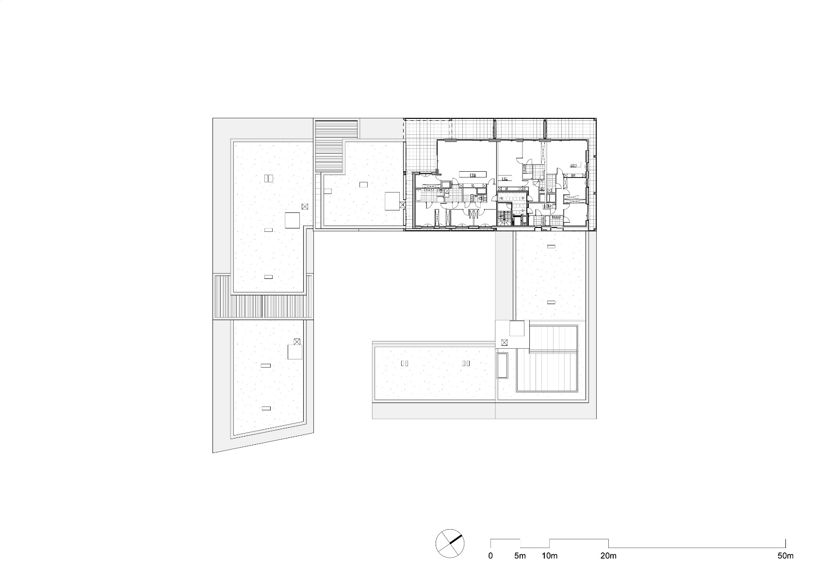
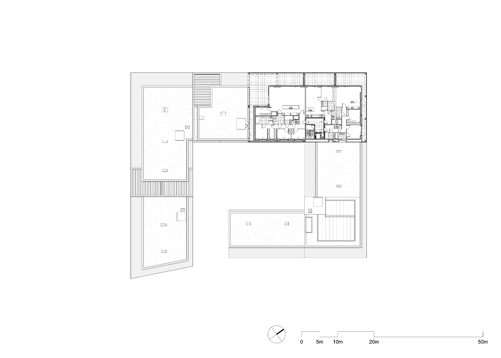
Geräumige Terrassen auf allen Seiten
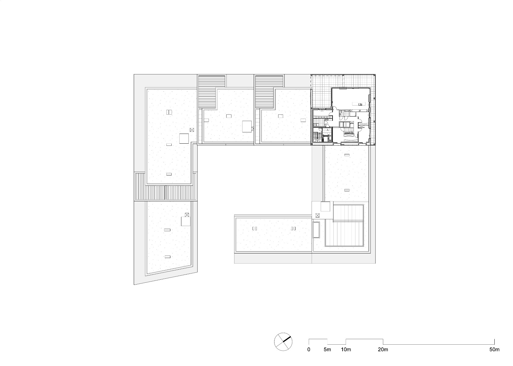
Die Verteilung der 68 Wohnungen entspricht ihrer Lage: Am Kanalufer gibt es überwiegend große und teure Wohnungen mit 3,5 m tiefen Terrassen, die in den obersten Etagen auf drei Seiten umlaufen. Richtung Osten, wo der kanalisierte Fluss Senne vorbeifließt, sind preiswertere mittelgroße Wohnungen und vier Reihenhäuser entstanden.


Auch im Innenhof setzt sich das Exoskelett der Gebäude aus Stahlbeton fort. © Ulrich Schwarz, Berlin
Gestaltprägendes Betonskelett
Zusammengefasst wird das heterogene Raumprogramm von einem markanten Exoskelett aus Betonfertigteilen, das sich auch im Innenhof der Anlage fortsetzt – wobei die Balkone hier deutlich weniger tief sind, um kein Gefühl der übergroßen nachbarschaftlichen Nähe entstehen zu lassen.


Eckwohnung mit Kanal- und Autobahnblick. Die Fassaden sind mit grauem Kalkstein verkleidet. © Ulrich Schwarz, Berlin
Grau in Grau: die Gebäudehülle
Das Fugenbild des Betonskeletts versinnbildlicht Tragen und Lasten. Nach außen hin verjüngen sich die vorgefertigten Elemente, um die Struktur auch bei geringen Spannweiten möglichst schlank erscheinen zu lassen. Im gleichen Grauton – angepasst an den flämischen Himmel – wählten Kempe Thill auch die Kalksteinverkleidung für die geschlossenen Fassadenflächen. Hinzu kommen Fenster in bronzefarben eloxierten Aluminiumrahmen sowie Glasbrüstungen in bronzefarbener Stahlfassung.
Architektur: Atelier Kempe Thill
Bauherr: Matexi
Standort: Steenkaai, 1800 Vilvoorde (BE)
Tragwerksplanung: Group D engineering
Landschaftsarchitektur: LAND landschapsarchitecten
TGA-Planung: Ingenium / Industrium
Städtebau: BUUR – urban platform – evr architecten
Generalunternehmen: MBG





























