// Check if the article Layout ?>
Wohnquartett: Mehrfamilienhaus in Wermatswil
Foto: Sabrina Scheja
Vor der traumhaften Kulisse der Schweizer Bergwelt könnte die Lage malerischer nicht sein. Während im Süden die weitere Bebauung anschließt, bieten die übrigen Richtungen atemberaubende Ausblicke. Sämtliche Außenräume werden auf dem großen Grundstück bewusst inszeniert, individuelle Gärten bilden einen privaten Naherholungsort. Die Erschließung des Neubaus erfolgt über eine ostseitige Straße. Sie führt schräg auf dem Niveau des Untergeschosses vorbei und schließt direkt an die zu jeder Wohnung gehörenden Garagenplätze an.
Trotz seiner Dimension wirkt das Mehrfamilienhaus nahezu leicht. Die quaderförmigen Baukörper artikulieren sich als locker angeordneter Wohnbau, die erst gemeinsam ein funktionales Ganzes ergeben. Sie vollziehen ein geschicktes Spiel aus Vor- und Rücksprüngen. Sämtliche Fassaden sind in vertikaler Holzlattung ausgeführt. Das Holz weist eine verkohlte Optik auf, die es im Zuge eines von den Architekten mitentwickelten Verfahrens erhält. Dabei wird der Werkstoff durch Erhitzung fäulnis- und insektenresistent. Gemeinsam mit großflächigen Verglasungen ergibt sich eine wechselnd offen und geschlossene Hülle. Lediglich das Untergeschoss hebt sich designtechnisch ab. Wie ein massiver Sockel wird es zum einenden Element, auf dem sich die Wohnungen formieren. Auch die Garagentore, komplett in hellem Beige, scheinen die vertikale Betonung der Fassadengestaltung wiederaufzunehmen. Nach hinten versetzt und seitlich begrenzt durch die Abstellplätze, finden die Zugänge zu den Wohnungen einen geschützten Platz.
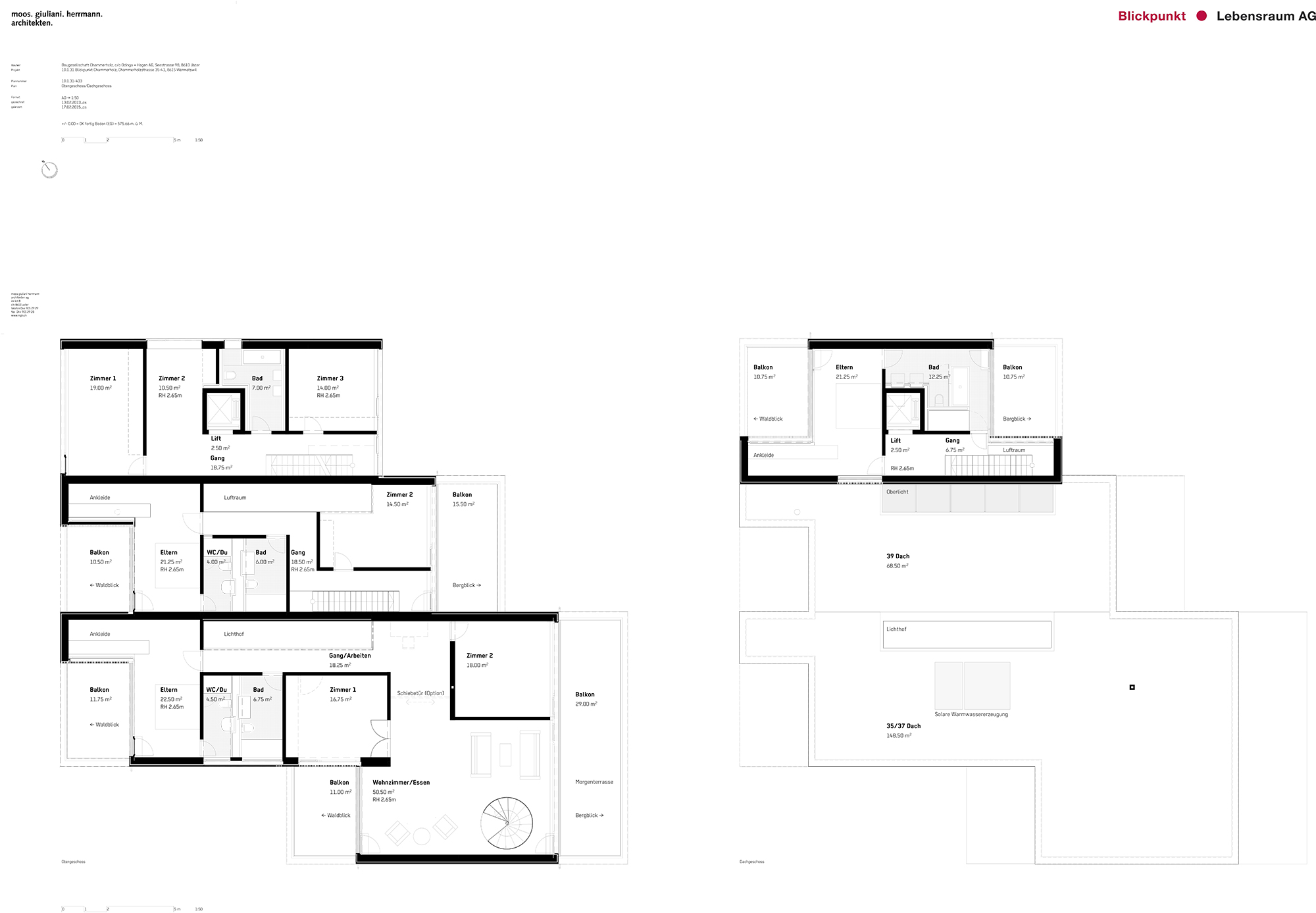
Die südlichste Wohnung ist gleichzeitig die längste in Ost-West-Richtung. Nach Norden springen die Einheiten immer weiter zurück, wodurch eine raffinierte Staffelung entsteht. Ihre Anordnung ist schottenähnlich. Die streifenartigen Grundrisse schaffen ideale Belichtungsverhältnisse. Differierende Breiten gleichen sich durch Verschachtelungen und unterschiedliche Geschosszahlen wieder aus. So umfasst die nördlichste Wohnung vier Stockwerke, während die südlichste im Obergeschoss die Fläche ihres Nachbarn einnimmt.
Die drei südlichen Wohnungen verfügen über einen zentralen Lichthof. Dieser sorgt für helle Innenräume und beinhaltet in den beiden mittleren Einheiten außerdem den Wohnungszugang. Generell sind die Grundrisse sehr großzügig gestaltet. Neben Hobby- und Technikraum im Untergeschoss gibt es jeweils zwei Bäder. Ess- und Wohnbereich sind zwar offen gehalten, aber dennoch unabhängig voneinander angeordnet. Eigentliches Highlight stellen die großen Terrassen- und Balkonflächen dar. Das Designkonzept folgt einer klaren Linie: Schlichtes Weiß kombiniert mit Holz ergibt ein ruhiges, einheitliches Bild. Es scheint, als würde das Interieur gegenüber dem Ausblick in den Hintergrund treten und ihm den Vortritt überlassen.


















