Farbakzent an der Ausfallstraße
Wohnquartier in der Champagne von Philippe Gibert
© Sergio Grazia
Lorem Ipsum: Zwischenüberschrift
Archetypische Formen und leuchtende Farben kennzeichnen die sechs Mehrfamilienhäuser mit Sozialwohnungen, die Philippe Gibert im ostfranzösischen Châlons-en-Champagne entworfen hat.


© Sergio Grazia
Lorem Ipsum: Zwischenüberschrift
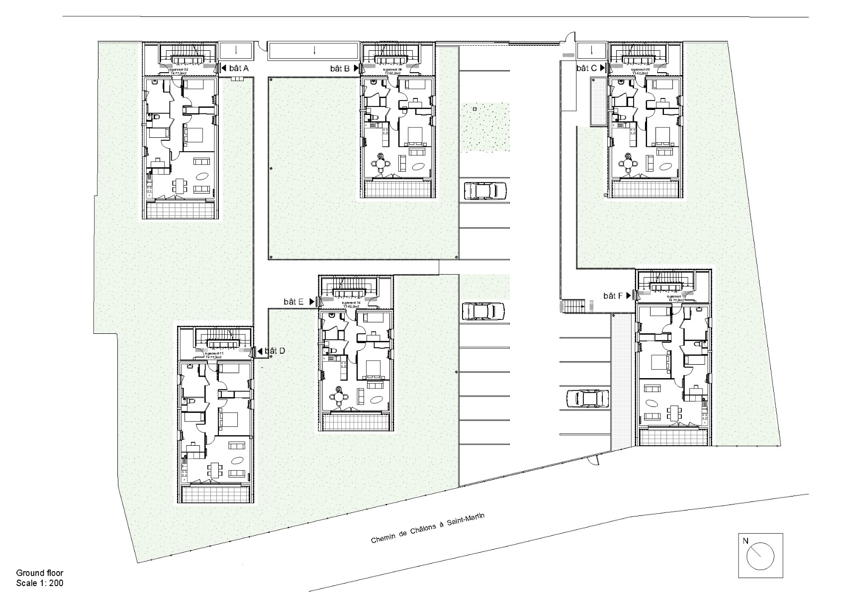
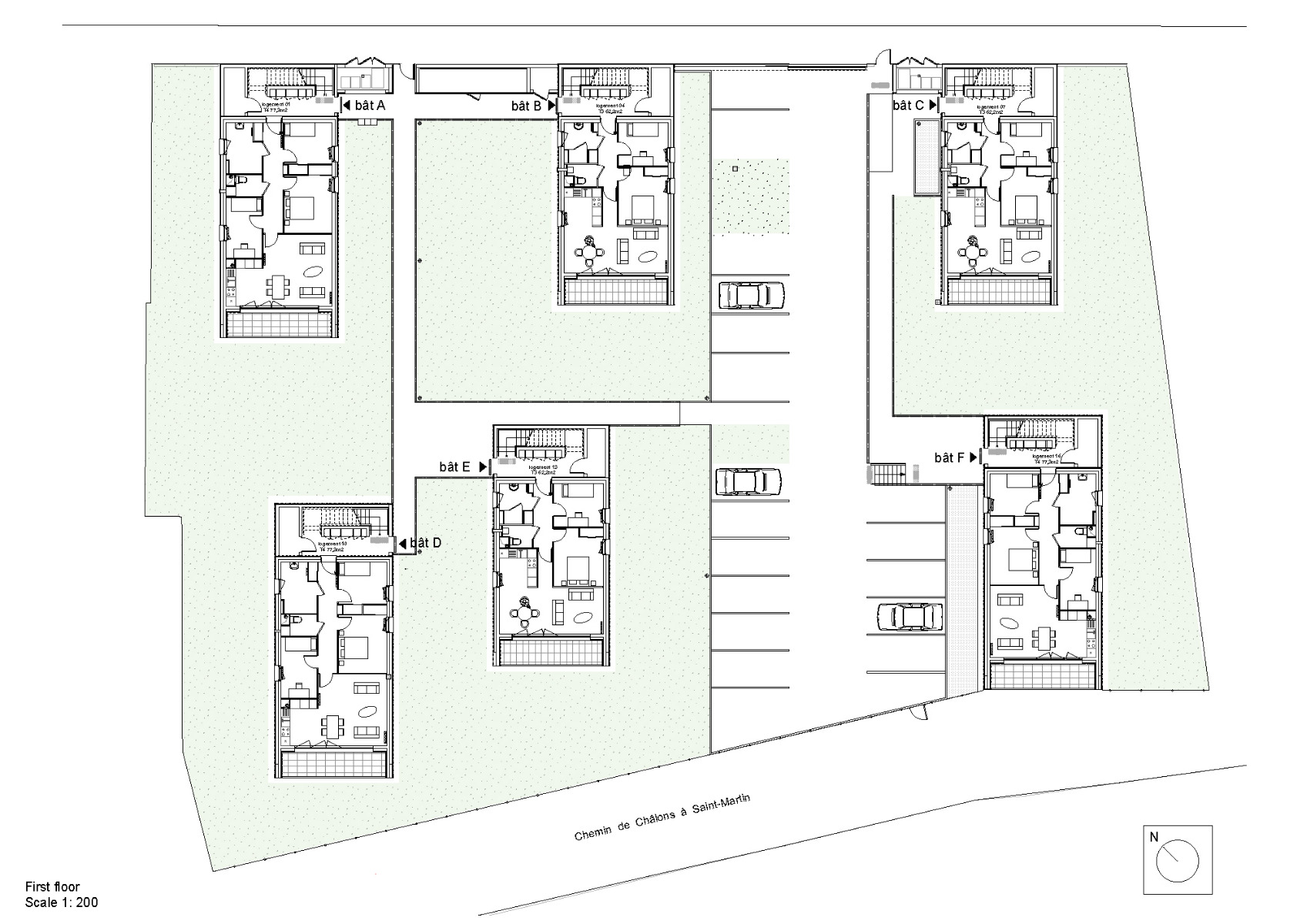
Das ehemals industrielle Areal liegt etwas nordwestlich des Stadtzentrums zwischen einer Ausfallstraße und einem Kanal, der sich parallel zum Fluss Marne durch die 44 000-Einwohner-Stadt zieht.
Lorem Ipsum: Zwischenüberschrift
Von der Straße im Osten schottet sich das Grundstück durch eine geschosshohe Wand aus dunkelrotem Trapezblech ab – Ton in Ton mit den Fassaden der Häuser, die hier direkt an die Grundstücksgrenze anstoßen. Schallschutz bieten hier die außen liegenden Treppenhäuser, die hinter der gelochten Blechverkleidung schemenhaft zu erkennen sind.


© Sergio Grazia
Lorem Ipsum: Zwischenüberschrift
Zum Canal Saint-Martin und dem Grünraum im Südwesten dagegen öffnen sich die sechs Gebäude mit gebäudebreiten Loggien, deren weiße Innenverkleidung mit der sonst monochrom roten Gebäudehülle kontrastiert. Auch das Grundstück gibt sich zum Kanal deutlich offener – nur ein Zaun trennt es vom verkehrsberuhigten Uferweg.


© Sergio Grazia


© Sergio Grazia
Lorem Ipsum: Zwischenüberschrift
Die historischen Häuser im Zentrum von Châlons hätten für die Farbwahl der Neubauten Pate gestanden, sagt Philippe Gibert. In ihrem unmittelbaren Umfeld setzen diese jedenfalls einen überaus knalligen Akzent.


© Sergio Grazia
Lorem Ipsum: Zwischenüberschrift
Pro Geschoss gibt es in den Häusern je eine Drei- bis Vierzimmerwohnung – Erstere mit 62 m², Letztere mit 77 m² Fläche, alle auf drei Seiten ins Grüne geöffnet, was ihnen fast die Qualitäten von Einfamilienhäusern verleiht.
Architektur: Philippe Gibert
Bauherr: Nov’ Habitat
Standort: 61 rue du Faubourg Saint Antoine, 51000 Châlons-en-Champagne (FR)






















