Wohnschach am Pazifik: Ferienhaus in Morrillos
Foto: Tomás Rodríguez
Selten begegnet man einem Haus, das von der Grundrissstruktur über das Konstruktionssystem bis zur Fassadengestaltung bruchlos aus einer einzigen Logik errichtet wurde. In der Regel entstehen solche Gebäude nur bei hinreichend einfachem Raumprogramm und auf Bauplätzen, die der viel zitierten »tabula rasa« entsprechen.
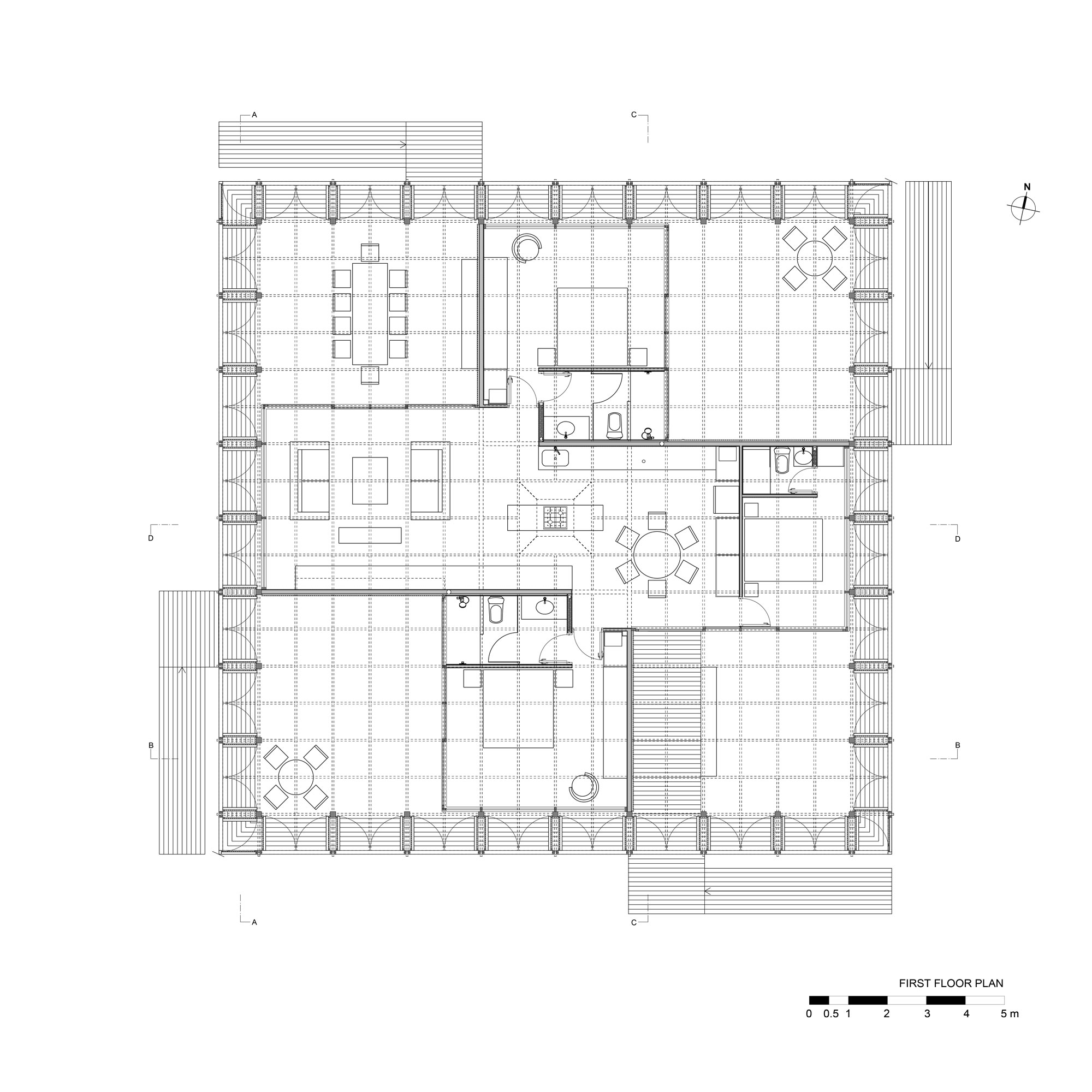
Beides war bei dem Ferienhaus gegeben, das der Architekt Cristián Izquierdo in den Dünen an der chilenischen Pazifikküste geschaffen hat. Bis zu drei Paare finden in dem Gebäude Platz – das heißt: Schlafzimmer mit Doppelbett, Bad und eigener, vorgelagerter Patio. Hinzu kommen eine geräumige Gemeinschaftsfläche mit Küche, Ess- und Wohnbereich sowie ein vierter Patio.
Die vier unterschiedlich bemessenen Teile des Raumprogramms sind im Grundriss windmühlenflügelartig zusammengefügt, wobei die vier Patios jeweils an den Gebäudeecken zu liegen kommen. Von oben gesehen gleicht das Haus somit einem 122 Quadratmeter großen Kreuz, das einem 208 Quadratmeter großen Quadrat einbeschrieben ist. Umgeben ist das Ganze von gebäudehohen, sich einwärts öffnenden Klappläden aus hell lasiertem Kiefernholz. Eingefügt sind sie in eine Art Verandenzone, die den auf strengem Quadratraster basierendem Grundriss außen umläuft.
Die Tragstruktur des Dachs sowie der Verandenzone bestehen einheitlich aus schlanken Brettschichtholzträgern mit 5 x 25 cm Querschnitt, die teils in zwei Ebenen übereinander angeordnet sind, um auf Verbindungselemente aus Metall komplett verzichten zu können. Genau genommen umfasst das Dach vier unterschiedlichen Trägerrosten – für jeden der vier Schlaf- und Wohnbereiche einen. Sie liegen auf den Innenwänden sowie auf Holzstützen in der Fassadenebene auf. Zwischen den Trägerrosten fügten die Architekten ein Oberlicht ins Dach ein, das den Küchenblock von oben mit Tageslicht versorgt.



















