Wohnscheune mit Solardach: Doppelhaus in Chantepie von Haddock Architecture
Foto: Charles Bouchaib
Erst landwirtschaftlich genutzte Scheune inmitten von Feldern, dann Teil eines Gewerbebetriebs und heute ein Doppelhaus mit 215 m2 Geschossfläche: Das Gebäude, das Haddock Architecture im bretonischen Ort Chantepie umgebaut haben, hat schon viele Nutzungen hinter sich. Nebenbei lässt sich an seiner Geschichte ablesen, wie sich die heute 10.000 Einwohner zählende Gemeinde über die Jahrzehnte vom Dorf zum Wohnvorort der bretonischen Hauptstadt Rennes gewandelt hat. Der Eigentümer versprach sich durch die jüngste Umnutzung einen finanziellen Zugewinn nach dem Eintritt ins Rentenalter. Als Arbeitsplatz benötigte er die Halle fortan nicht mehr.
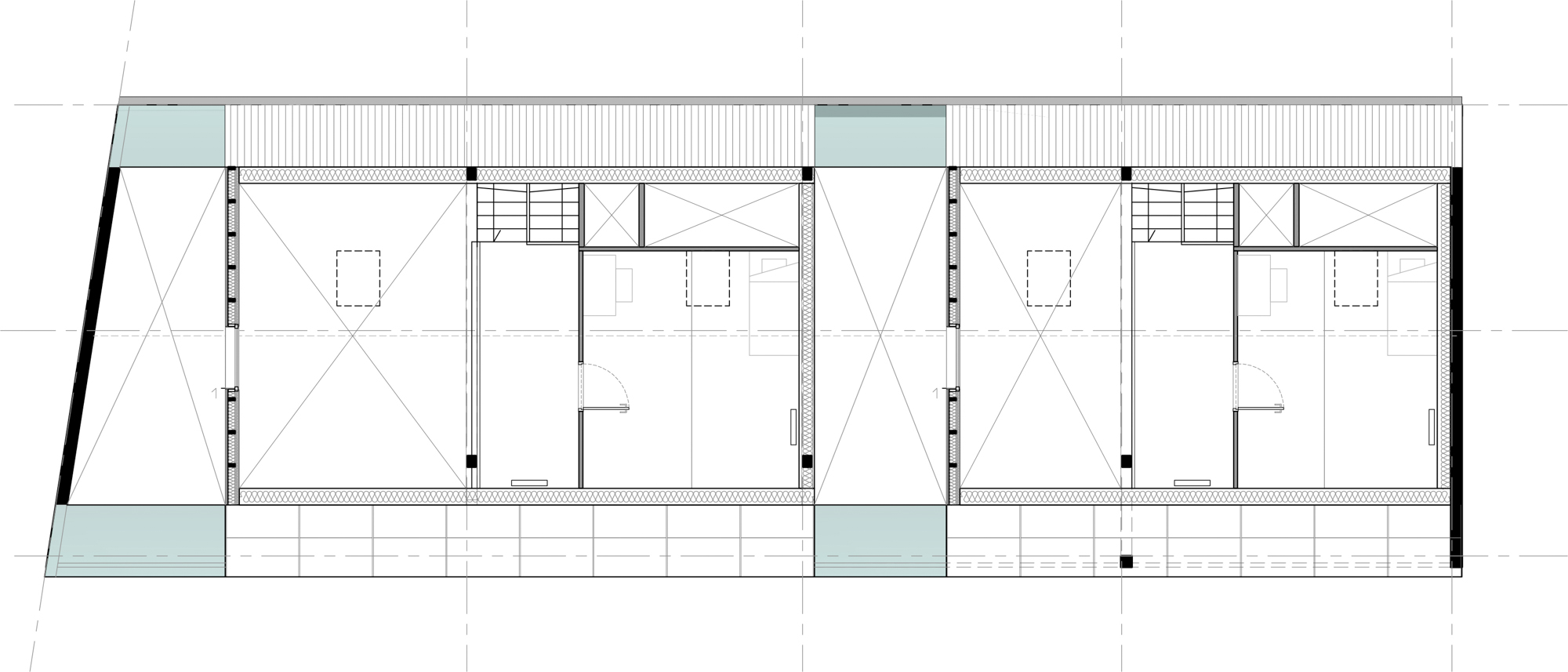
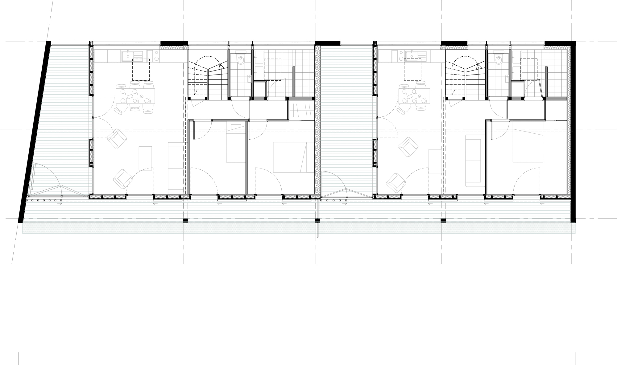
Erhalten geblieben ist von dem Altbau lediglich das stabile Eichenholzskelett, die Giebelwände und Teile der Rückwand aus Mauerwerk. Die Innenwände und die Eingangsfassade im Süden ergänzten die Architekten als Holzrahmenkonstruktion und versahen die Eingangsfront mit einer Kastanienholzverschalung, in der sich raumhohe, durch Schiebeläden verschließbare Glastüren und opake Fassadenbereiche abwechseln. Die neue Fassade ist gegenüber der alten zurückgerückt, sodass ein überdachter Vorbereich entsteht, und die südliche Dachhälfte darüber ist vollflächig mit Fotovoltaik-Modulen eines Schweizer Herstellers bedeckt, die es auf eine Spitzenleistung von 11 kWp bringen. Einzige Ausnahme: zwei Wintergärten mit Dächern aus Polycarbonat-Stegplatten, die über die gesamte Gebäudetiefe verlaufen und zugleich als Eingangsbereiche zu den Häusern fungieren. Beheizt werden diese Zwischenräume allein aus der Wärmerückgewinnung der Lüftungsanlagen in den beiden Häusern. Von hier aus gelangt man überdies zu zwei angebauten Schuppen an der Gebäuderückseite mit zwei je 300 l fassenden Sammeltanks für das vom Dach ablaufende Regenwasser. Durch das Solardach und die effiziente Energienutzung unterschreitet das Haus den zur Bauzeit geltenden französischen Energiestandard RT2012 um die Hälfte.
Die Doppelhaushälften sind für je drei- bis vierköpfige Familien ausgelegt und haben ähnliche, aber nicht exakt identische Grundrisse. Im Erdgeschoss befinden sich jeweils ein zweigeschossiger Wohnraum mit offener Küche, ein bis zwei Schlafzimmer und ein Bad. Über Douglasienholztreppen, die mit dem Küchenblock eine gestalterische Einheit bilden, gelangt man ins Obergeschoss. Dort kommen in jedem Haus eine offene Galerie und ein weiteres, geräumiges Schlafzimmer hinzu. Weil die unteren, horizontalen Dachbinder hier etwa auf Hüfthöhe verlaufen, verwendeten die Architekten sie zugleich als Brüstung für die Galerie. Darunter bilden Drahtseilnetze die nötige Absturzsicherung zum Wohnraum hin.
Weitere Informationen:
Geotechnik: CBTP Géotechnique
Bauunternehmen: Thézé Construction, CEB, Barpélec, Coupé Couverture, Bétin, HD Décors, Atelier Palam
Photovoltaikmodule: Megaslate
Dachfenster: Velux
Fliesen: Mosa



























