// Check if the article Layout ?>
Wohn(t)raum: Einfamilienhaus mit Elektroauto bei Stuttgart
Foto: Brigida Gonzalez
Das Grundstück, ein überschaubares Fleckchen Konversionsfläche mit Abmessungen von 11 x 18 m, bietet bescheidene Rahmenbedingungen. Von der westseitigen Straße betrachtet gliedert sich der Bau in zwei Volumina, die über eine einheitliche Fassadengestaltung miteinander verschmelzen. Linker Hand befindet sich das Wohnhaus, das über drei Geschosse in die Höhe wächst und laut Bauamt direkt an die Nachbarparzelle im Norden angrenzen darf. Zur Rechten gibt es einen einstöckigen Teil, der die Garage beinhaltet. Die Fassade folgt den Fluchten der Nachbarbebauungen, bevor sie im zweiten Obergeschoss um zwei Meter zurückspringt und schließlich mit einem Flachdach abschließt.
Schwarzgraues Wellblech kleidet sämtliche Außenansichten. So erhält der Bau einen uniformen Charakter, der von der industriell geprägten Vergangenheit des Standorts zeugt und sich gleichzeitig deutlich von seinen Nachbarn abhebt. Die Fenster haben quadratische Formen und lockern, in verschiedenen Größen ausgeführt, über ihre unregelmäßige Positionierung die Hülle auf. Ihre schmalen Rahmen sind in der Fassade leicht nach innen versetzt und runden das schlichte Gesamtbild des Baus perfekt ab.
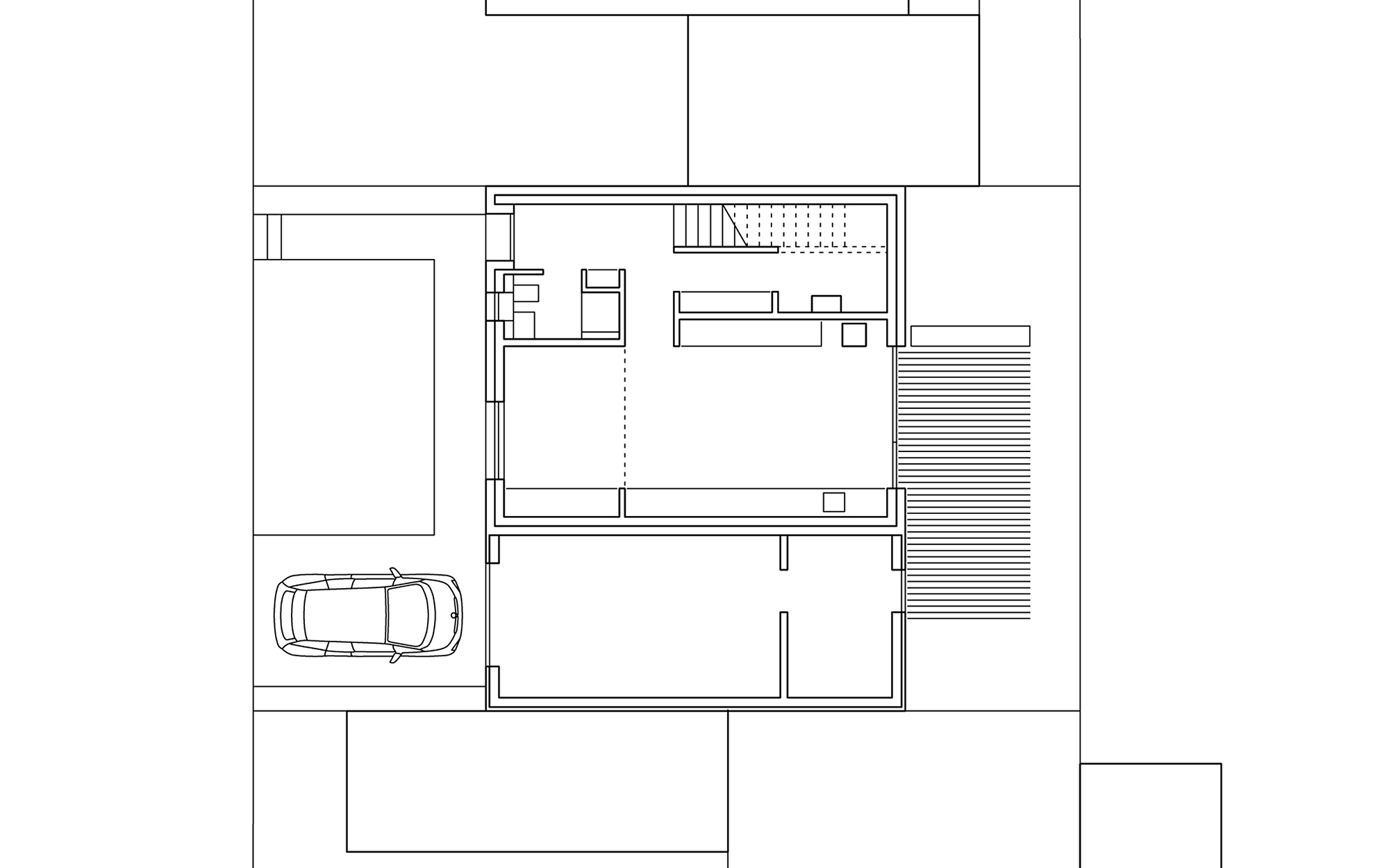
Im Inneren befinden sich Treppenhaus und versorgende Räume durchgehend an der Nordseite. Das Wohnen ist nach Süden ausgerichtet. Das Eingangsniveau besteht aus Wohn-, Essküche und Arbeitsbereich, der mittels Vorhang abgetrennt werden kann. Von hier gelangt man außerdem auf eine kleine Terrasse. Über die Treppe geht es weiter in den ersten Stock, wo die Schlafzimmer untergebracht sind. Den Abschluss bildet das oberste, offen gehaltene Niveau, mit kleinem Balkon und Platz zum Entspannen und Arbeiten.
Die Gestaltung der Innenräume kontrastiert mit der dunklen Außenhülle. Weiße Oberflächen und helles Holz sorgen für einen freundlichen, wohnlichen Charakter. Sie finden sich in sämtlichen Räumen sowie in den Einbauten wieder. Zum besonderen Hingucker wird die Treppe, deren Absturzsicherung mit knallgelben Seilen zwar simpel, aufgrund ihrer Farbgebung und der unterschiedlichen Spannrichtungen aber lebendig und auflockernd wirkt.
Auch aus energetischer Sicht überzeugt das kleine Wohnhaus: Es verfügt über ein Lüftungs- und Wärmerückgewinnungssystem und wird durch Photovoltaikmodule auf dem Dach, die das Elektroauto speisen, abgerundet.


















