// Check if the article Layout ?>
Wohnturm à la Bauhaus: Richard Meier baut in Tel Aviv
Foto: Roland Halbe
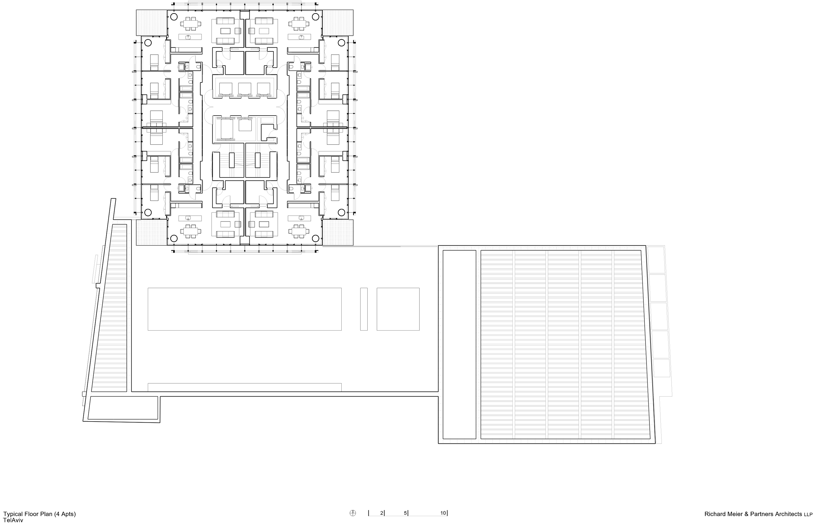
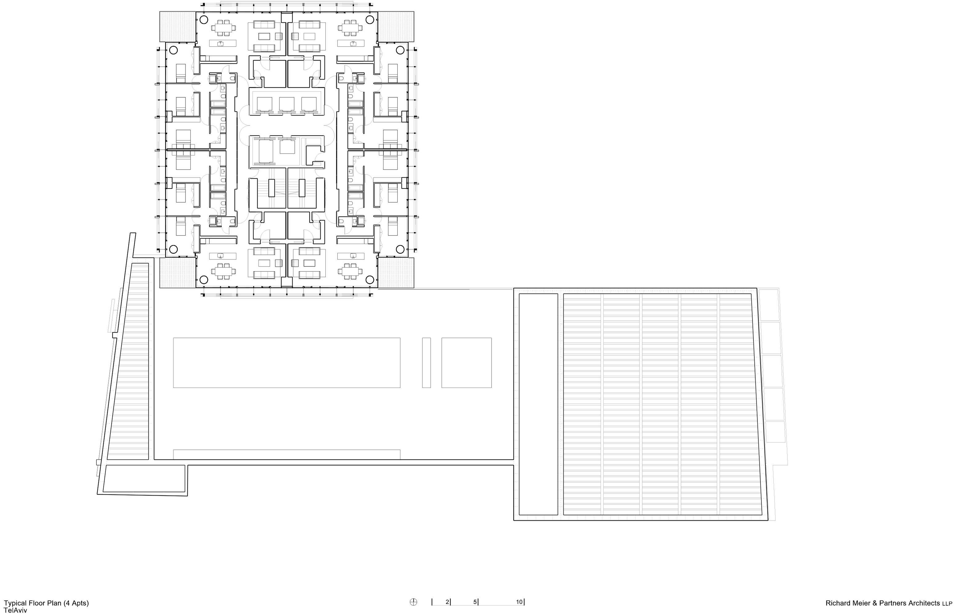
Der Wohnturm auf dem Rothschild Boulevard ist das erste Projekt von Richard Meier in Israel und sein erstes Wohnhochhaus außerhalb der USA. »Sderot Rotshild« ist eine der Hauptachsen der am Reißbrett entworfenen White City von Tel Aviv und inzwischen eine der teuersten Straßen der Stadt. Inspirieren ließ sich der Architekt, der für seine modernistischen weißen Architekturen bekannt ist, von den Gestaltungsprinzipien der Bauhaus-Bewegung in Tel Aviv.
Auf 42 Geschossen sind insgesamt 147 Apartments untergebracht. Ein wichtiges Merkmal der Luxuswohnungen im weißen Hochhaus ist der atemberaubende Blick auf die Stadt und das Meer. In direkter Nachbarschaft stehen berühmte Bauhaus-Bauten, die zwischen den 1930er und 1950er-Jahren von deutsch-jüdischen Architekten errichtet wurden. Das Hochhaus mit einer stattlichen Höhe von 154 Metern soll durch seinen mehrschichtigen Fassadenaufbau ein Bild der Leichtigkeit und Transparenz vermitteln; es bleibt jedoch fraglich, ob die gewünschte Wirkung sich bei solchen Dimensionen einstellen mag.












