Im Bauch des Walfischs
Wohnungsbau Jonas in Amsterdam von Orange Architects
Wohnungsbau Jonas in Amsterdam, © Sebastian van Damme
Der Neubau im Zentrum von Amsterdam-IJburg steckt voller Landschaftsbezüge: vom Strand auf dem Dach über die holzverkleidete Schlucht im Atrium bis zum höhlenartigen Gemeinschaftsraum für die Bewohner.


Dachterrasse, © Sebastian van Damme
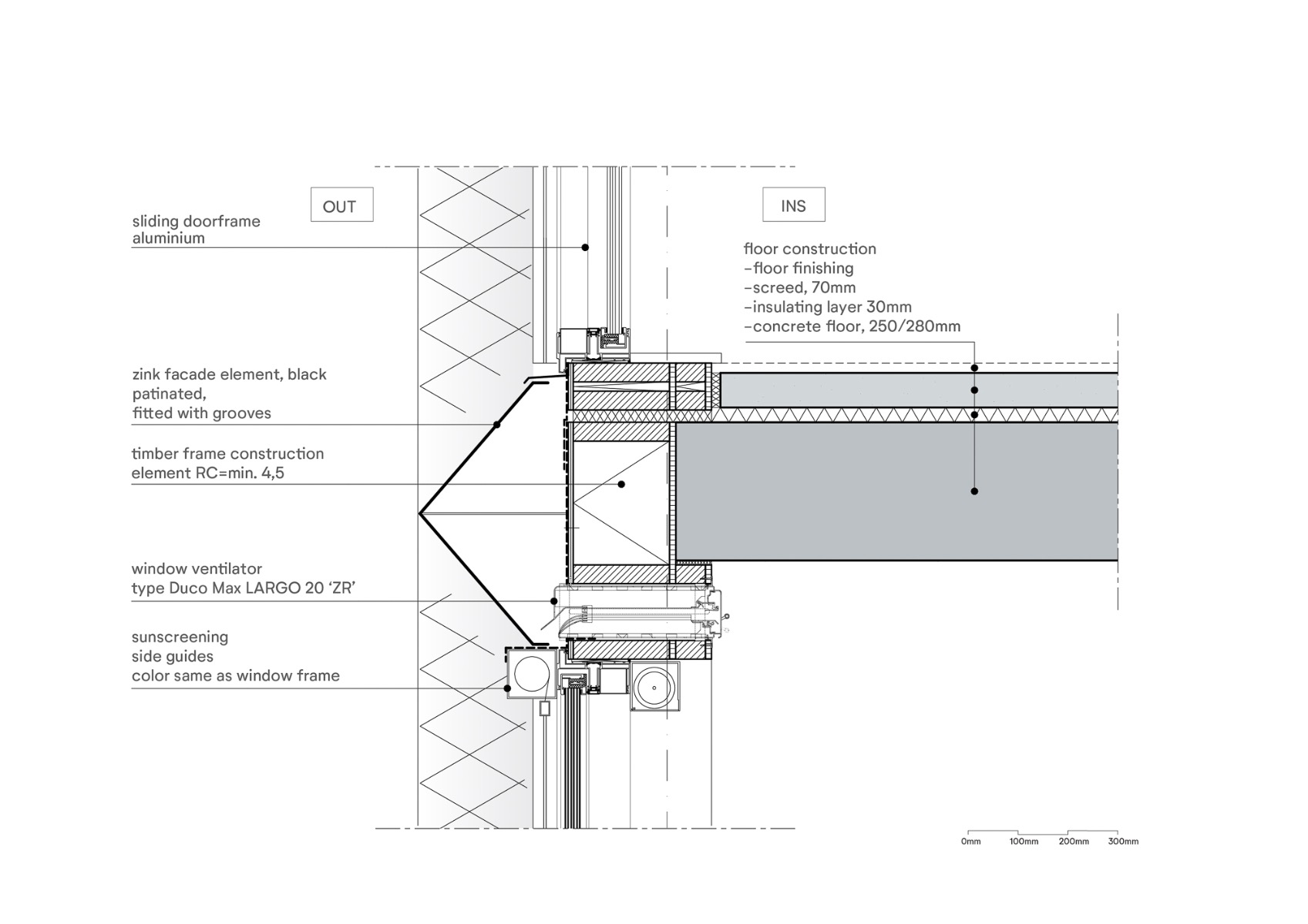
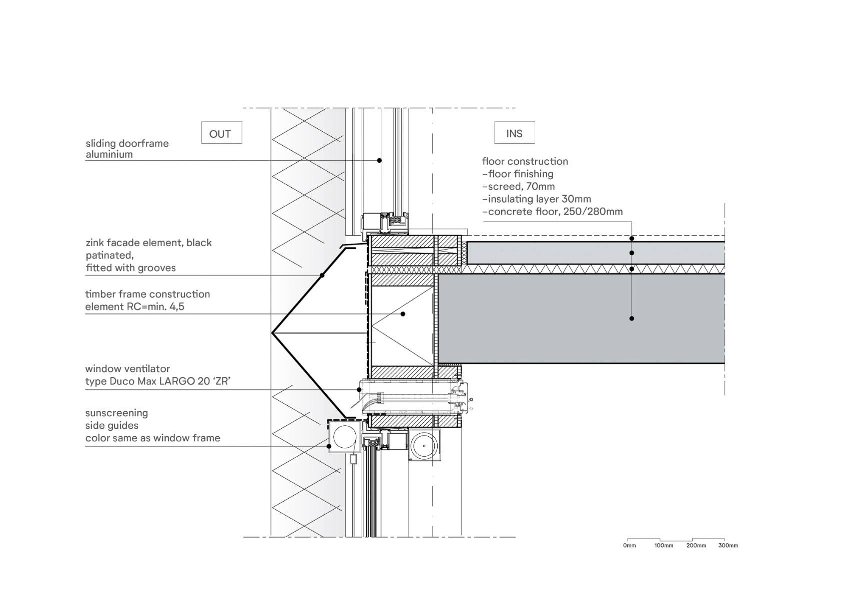
Ein Musterbeispiel für nachhaltiges, gemeinschaftliches Wohnen wollten der Investor Amvest und Orange Architects auf dem letzten freien Grundstück am Hafen des Neubauviertels Amsterdam-IJburg errichten. Äußerlich weist darauf nur wenig hin: Ein regelmäßiges Raster aus großen Lochfenstern, voneinander getrennt durch profilierte Zinkblechverkleidungen, überzieht den langgestreckten Neubauriegel, der sich auf beiden Seiten zum Wasser öffnet. Nur auf einer Seite erlaubt ein Gebäudeeinschnitt den Blick in einen holzverkleideten Innenhof – den „Wald“ in der Diktion des Bauherrn und seiner Architekten.
Pilotprojekt für gemeinschaftliches Wohnen
Im Inneren von Jonas sind 273 Wohnungen in sehr unterschiedlichen Größen entstanden – 190 davon vermietet, der Rest Eigentum. Hinzu kommen eine Art gemeinschaftliches Wohnzimmer mit Kaffeebar, ein Filmvorführraum, zwei Gästezimmer, Arbeitsräume und eine Dachterrasse, die die Architekten etwas euphemistisch „Strand“ getauft haben. Der Name des Projekts bezieht sich auf die biblische Geschichte von Jona und dem Walfisch – und tatsächlich steckt das architektonische Riesentier hinter seiner dunklen, rauen Blechhaut voller räumlicher Überraschungen.


Gemeinschaftliches Wohnzimmer, © Sebastian van Damme
Gleich hinter dem Gemeinschaftsraum am Stirnende des Erdgeschosses öffnet sich ein gebäudehohes Atrium mit umlaufenden, von Holzlamellen verdeckten Erschließungsgängen. Eine lange Rampe führt durch den schluchtartigen, von oben belichteten Raum empor. Über das Glasdach rinnt ein permanenter Wasserstrom als Kühlung für den Raum darunter und als zentrales Gestaltungselement für die Gemeinschafts-Dachterrasse.


Gebäudehohes Atrium, © Sebastian van Damme


Eine lange Rampe führt durch den schluchtartigen, von oben belichteten Raum empor. © Sebastian van Damme


Blick auf das Atrium, © Sebastian van Damme
Nullenergiegebäude mit Meerwasserkühlung
Mit Breeam Outstanding erreicht Jonas die höchste Bewertungsstufe in dem gleichnamigen britisch-niederländischen Zertifizierungssystem; nach Angaben der Architekten handelt es sich überdies um ein Nullenergiegebäude. Insgesamt 850 Photovoltaikmodule auf dem Dach liefern Strom. Die Wohnungen haben Fußbodenheizungen, die an das städtische Fernwärmenetz angeschlossen sind. Mithilfe des Meerwassers lassen sich die Räume überdies kühlen. Die Tragstruktur besteht zu 25 % aus Recyclingbeton. Im Untergeschoss gibt es einen 38 m³ großen Regenwassertank, dessen Inhalt für die Toilettenspülung in den öffentlichen Bereichen des Erdgeschosses genutzt wird. Auch in den Freianlagen setzt sich das Nachhaltigkeitskonzept nahtlos fort – etwa in Form künstlich angelegter Muschelbänke im Hafenbecken oder einer eigens gebauten Nistwand für Uferschwalben. Sie sind in der Region eigentlich heimisch, geraten durch die intensive Neubautätigkeit aber zunehmend unter Druck.
Architektur: Orange Architects
Bauherr: Amvest
Standort: Krijn Taconiskade 1 - 567, Eva Besnyöstraat 1-9, Amsterdam (NL)
Ingenieurbüros und Fachplaner: ABT, Felixx Landscape Architects, Bureau Stadsnatuur, Pubblik&Vos, Site Urban Development, JMJ Bouwmanagement, Floor Ziegler, SmitsRinsma Bauunternehmen: Ballast Nedam West






























