Räumliches Experiment
Wohnungsumbau in Genf von Bureau
Trennwände aus Seekiefersperrholzplatten betonen die expressive Gestaltung der Maison Molaire. © Dylan Perrenoud
Lorem Ipsum: Zwischenüberschrift
In Genf haben Bureau eine ehemalige Zahnarztpraxis in ein experimentelles Raumgefüge verwandelt, das austestet, was gestalterisch und funktional im Wohnungsbau möglich ist.


Die loftartige Wohnung wird durch Glaswände mit Rahmen aus Esche unterteilt. © Dylan Perrenoud
Möbeldesign, Rauminstallation und Architektur vereint
Hinter dem generischen Begriff Bureau stehen Daniel Zamarbide, Carine Pimenta und Galliane Zamarbide. Der Name ist insofern irreführend, weil es sich hier nicht um ein klassisches Architekturbüro handelt. Stattdessen verstehen sich Bureau als Plattform, die an der Schnittstelle von Möbeldesign, Rauminstallation und Architektur agiert.
Offene und flexible Raumzonierung
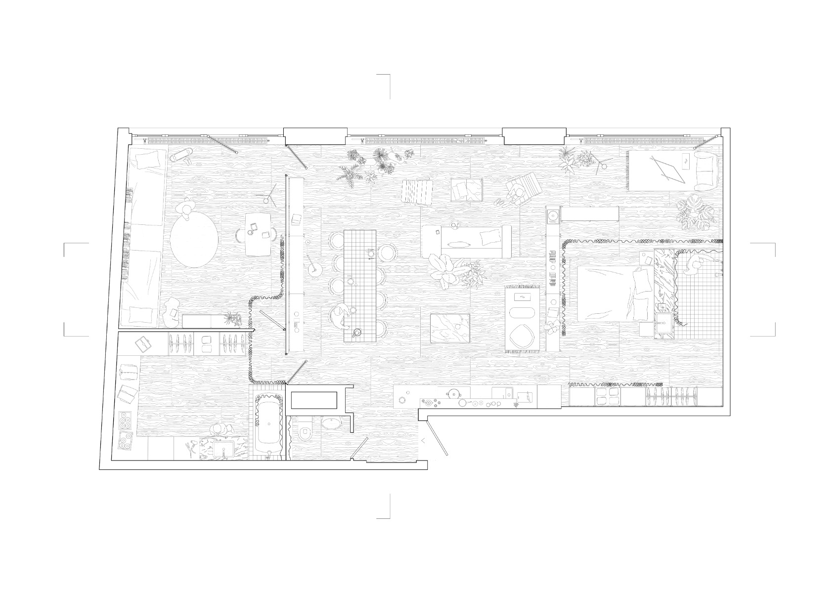
Die neu gestaltete Wohnung mit dem Namen Maison Molaire befindet sich im Zentrum von Genf. Sie umfasst 120 m² und öffnet sich über bodentiefe Fenster nach draußen. Zusätzliches Tageslicht bringen zwei Oberlichter, die pyramidenförmig in Querrichtung verlaufen. Bureau nutzten die Räumlichkeiten als eine Art Leinwand zur freien Gestaltung. So sorgen hier verschiedene Möbel für eine offene und flexible Zonierung.


Vorhänge ermöglichen aufgrund ihrer Anordnung und Farbigkeit verschiedene Raumsequenzen. © Dylan Perrenoud
Wohnen zwischen öffentlich und privat
Die loftartige Wohnung wird durch Glaswände mit Rahmen aus Esche unterteilt. Hinzu kommen Vorhänge, die aufgrund ihrer Anordnung und Farbigkeit verschiedene Raumsequenzen ermöglichen. Sie erzeugen eine mitunter eigentümliche Form der Privatheit – etwa bei dem hinter dem Duschbereich versteckten WC, das sich über ein Fenster zum Raum dahinter öffnet. Als Sichtschutz dient hier ein rosafarbener Vorhang, der wie an einer Wäscheleine auf halber Fensterhöhe aufgehängt ist.


Über bodentiefe Fenster öffnet sich die Wohnung nach draußen. © Dylan Perrenoud
Lorem Ipsum: Zwischenüberschrift
Die Maison Molaire weist dabei einen spielerischen Charakter auf, der sich nicht nur aus der expressiven Farbigkeit mit Rosa- Blau- und Rottönen, sondern aus den Referenzen auf die vorherige Nutzung ergibt. So verwendeten Bureau etwa quadratische Kacheln, die in ihrer klinischen Nüchternheit den größtmöglichen Kontrast zum expressiven Mobiliar bilden. Ein Beispiel ist die offen im Raum stehende Badewanne oder der Duschbereich, die jeweils von einem rosafarbenen Duschvorhang umrandet werden.


Die Maison Molaire weist einen spielerischen Charakter auf. © Dylan Perrenoud


Quadratische Kacheln bilden einen Kontrast zum heterogenen Mobiliar. © Dylan Perrenoud
Spielerisches Interior
Weitere Referenzen an die ehemalige Zahnarztpraxis sind die Küche aus Edelstahl und der Esstisch. Seine Tischplatte ist ebenfalls mit Kacheln verkleidet, was ihn zur räumlichen Skulptur inmitten der Wohnung macht. Teil der expressiven Gestaltung sind auch die Einbaumöbel, Wandverkleidungen und der Bodenbelag aus Seekiefersperrholzplatten. Hinzu kommen weiße winkelförmig angeordnete Sideboards. Sie sorgen für eine zusätzliche räumliche Unterteilung und unterstützen so das offene Raumgefühl.
Architektur: BUREAU (Daniel Zamarbide, Carine Pimenta, Galliane Zamarbide)
Bauherr: Daniel und Galliane Zamarbide
Standort: Av. Wendt, Genf (CH)



















