Zeitloser Bau
Wuxi Meili Museum in China von Atelier Diameter
Wuxi Meili Museum in China, © Yang Chen
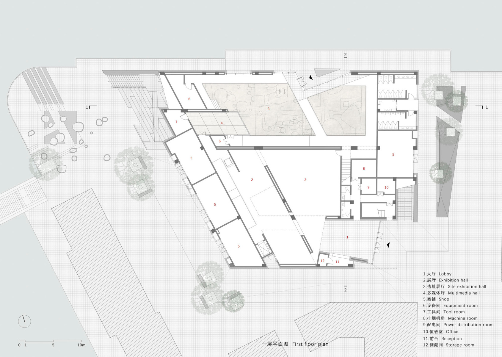
Das Archäologiemuseum in der Millionenstadt Wuxi bei Shanghai ist Ausstellungsort und sozialer Treffpunkt in einem. Damit unterscheidet es sich deutlich von den pseudohistorischen Gewerbebauten in der Nachbarschaft.


Das Archäologieuseum liegt in Wuxi bei Shanghai. © Yang Chen
Nicht alles in China, was alt heißt und alt aussieht, ist es auch: Die Meili Ancient Town im Osten der Sieben-Millionen-Metropole Wuxi bei Shanghai ist ein Einkaufsviertel im Gewand historischer Wohnhausarchitektur des 15. bis 19. Jahrhunderts. Im Untergrund jedoch befinden sich Gebäudereste aus dem 2. und 1. Jahrtausend vor unserer Zeit, die unlängst bei Ausgrabungen zutage traten. Sie gaben Anlass für den Bau eines Archäologie- und Geschichtsmuseums am Südufer des Bodu-Flusses. Die Pläne dazu lieferte Atelier Diameter gemeinsam mit seinen Partnerarchitekten von der China Architecture Design & Research Group.
Kleiner, vielseitiger Neubau
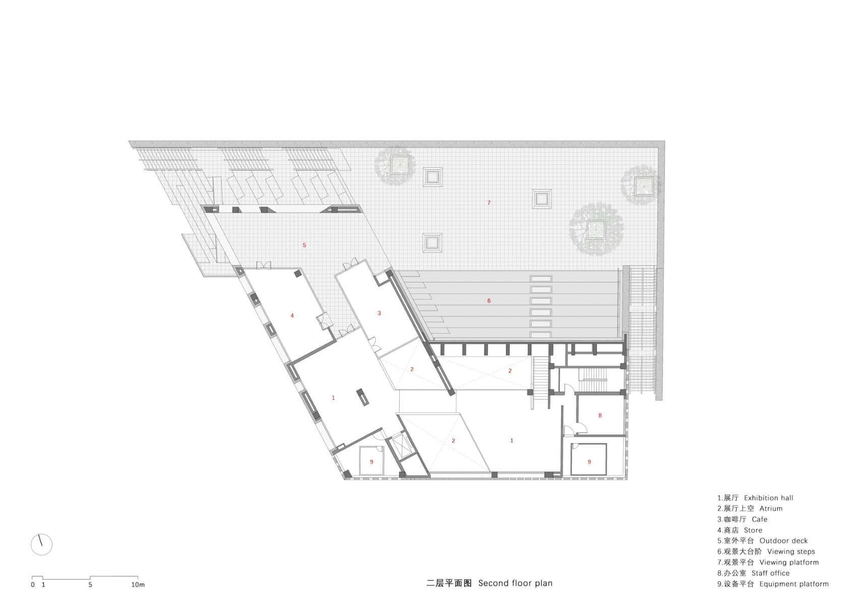
Mit 2000 m² Fläche – davon die Hälfte für Ausstellungen – ist das Museum relativ klein. Sein Eingang liegt auf der flussabgewandten Seite am Hauptplatz des Quartiers. Von hier aus führt der Rundgang zunächst durch mehrere Themenräume, in denen die Regionalhistorie inszeniert wird, und schließlich in eine große Ausstellungshalle mit den archäologischen Funden auf der Flussseite. Dazwischen passieren die Besucher einen Multimedia-Raum mit Wänden aus elektrochromem Glas, das sich während der Filmvorführungen verdunkeln und danach wieder transparent schalten lässt. Im Obergeschoss des Museums sind Büros, Lagerräume und ein Café untergebracht.


Ausstellungsraum des Archäologiemuseums, © Yang Chen
Dachterrasse mit Flussblick
Außerdem hat man hier Zugang zu einer teils überdachten Dachterrasse mit Blick über den Fluss. Sie steht auch Besucherinnen ohne Eintrittskarte rund um die Uhr offen. Zwei breite Außentreppen führen vom Straßenniveau hier herauf. Große Oberlichter im Flachdach bringen nicht nur Tageslicht in die Ausstellungshalle, sondern erlauben vom Dach auch den Blick hinunter auf die archäologischen Funde.


Die Dachterrasse bietet Sicht auf den Fluss und ins Museum. © Yang Chen
Geologisch inspirierte Travertinfassaden
Ganz bewusst entschieden sich die Architekten bei der Gestaltung des Neubaus gegen jegliche historischen Zitate. Allenfalls lässt sich der Baukörper mit seinen horizontalen Fensterschlitzen und unterschiedlich farbigen Mauerschichten mit einer Abfolge geologischer Schichten vergleichen. Die Außenwände sind mit dunkelgrauem Travertin verkleidet. Unterschiedliche Farbabstufungen und Oberflächenbehandlungen sowie drei verschiedene Steinformate geben ihnen eine lebendige Textur.
Konzeptentwurf, Innenarchitektur, Ausstellungsgestaltung: Institute of Architectural History, China Architecture Design & Research Group
Ausführungs- und Detailplanung, Landschaftsarchitektur: Atelier Diameter
Bauherr: Dienstleistungszentrum für die Gemeinde Meicun, Distrikt Xinwu
Standort: Meili Ancient Town, Xinwu District, Wuxi (CN)
Fassadenplanung: Shanghai Geometry Archi-Design Consulting
Bauunternehmen: Wuxi Juntai Real Estate Development























