Bürointerieur im entkernten Bestandsgebäude
Yeahka Headquarters von JSPA Design in Shenzhen
© Shengliang Su
Ein wenig Spektakel darf schon sein in der Finanzwelt: Für den chinesischen Zahlungsdienstleister Yeahka schuf JSPA Design ein Bürointerieur mit dreistöckiger Eingangshalle und schwebenden Besprechungsräumen.


© Shengliang Su
Lorem Ipsum: Zwischenüberschrift
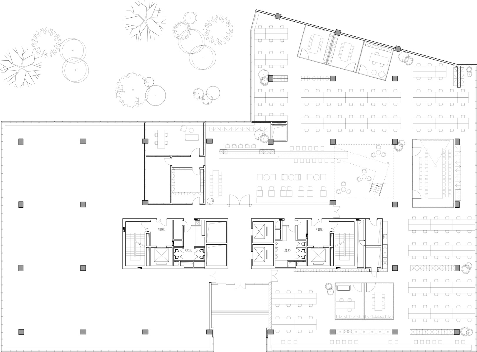
6000 m² Fläche stehen dem Unternehmen damit künftig in seinen drei Büroetagen zur Verfügung. In einem ersten Schritt ließen die Architekten alle Verkleidungen von den Raumoberflächen abnehmen und führten den Betonskelettbau auf sein Traggerüst zurück.
Lorem Ipsum: Zwischenüberschrift
Der Haupteingang zum Yeahka-Headquarter liegt auf der mittleren Ebene, und mit ihm alle weiteren öffentlichen Bereiche: ein Café, ein Veranstaltungsbereich und eine Ausstellungsfläche für Produkte.


© Shengliang Su
Lorem Ipsum: Zwischenüberschrift
Über die gesamte Gebäudelänge, von Fassade zu Fassade, reicht dieser Teil der Räume, zu dem Besucher Zugang haben. Ein langer, hinterleuchteter Empfangstresen aus Profilglas flankiert ihn. Dahinter bildet ein kleiner Kakteenwald einen Sichtfilter nach draußen.


© Shengliang Su


© Shengliang Su
Über dem Eingangsbereich kragen fünf gläserne Besprechungskuben in die Halle aus. Mit ihrer feingliedrigen Gestaltung bilden sie den passenden Gegenpol zum rauen Beton der Stützen und Träger sowie dem Betonpflaster auf den Fußböden. Die Besprechungsräume sollen Besuchern einen Teil der Betriebsamkeit im Haus vor Augen führen, in die diese sonst keine Einblicke erhalten.


© Shengliang Su
Am Ende der Halle verbinden zwei L-förmige, sich kreuzende Treppenläufe die drei Ebenen miteinander. Die Büros sind als Großraumflächen organisiert, werden jedoch durch kleinere, eingestallte Besprechungskuben aus Glas in kleinere Einheiten gegliedert.
Architektur: JSPA Design - Johan Sarvan, Florent Buis
Bauherr: Yeahka
Standort: 4F, Building A4, Kexing Science Park, Nanshan, Shenzhen (CN)
Nutzungsfläche: 6000 m²



















