// Check if the article Layout ?>
Zaans Medical Center von Mecanoo
Mecanoo architecten, Zaans Medisch Centrum, Silo Agency,
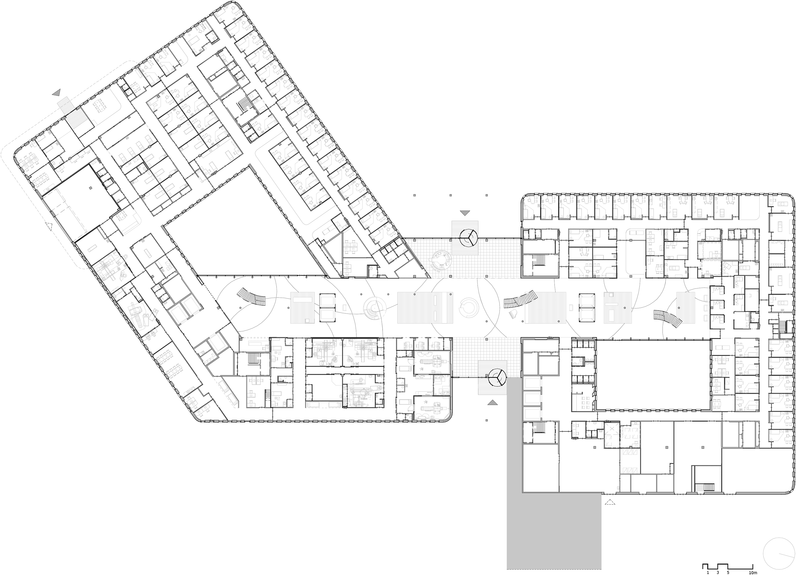
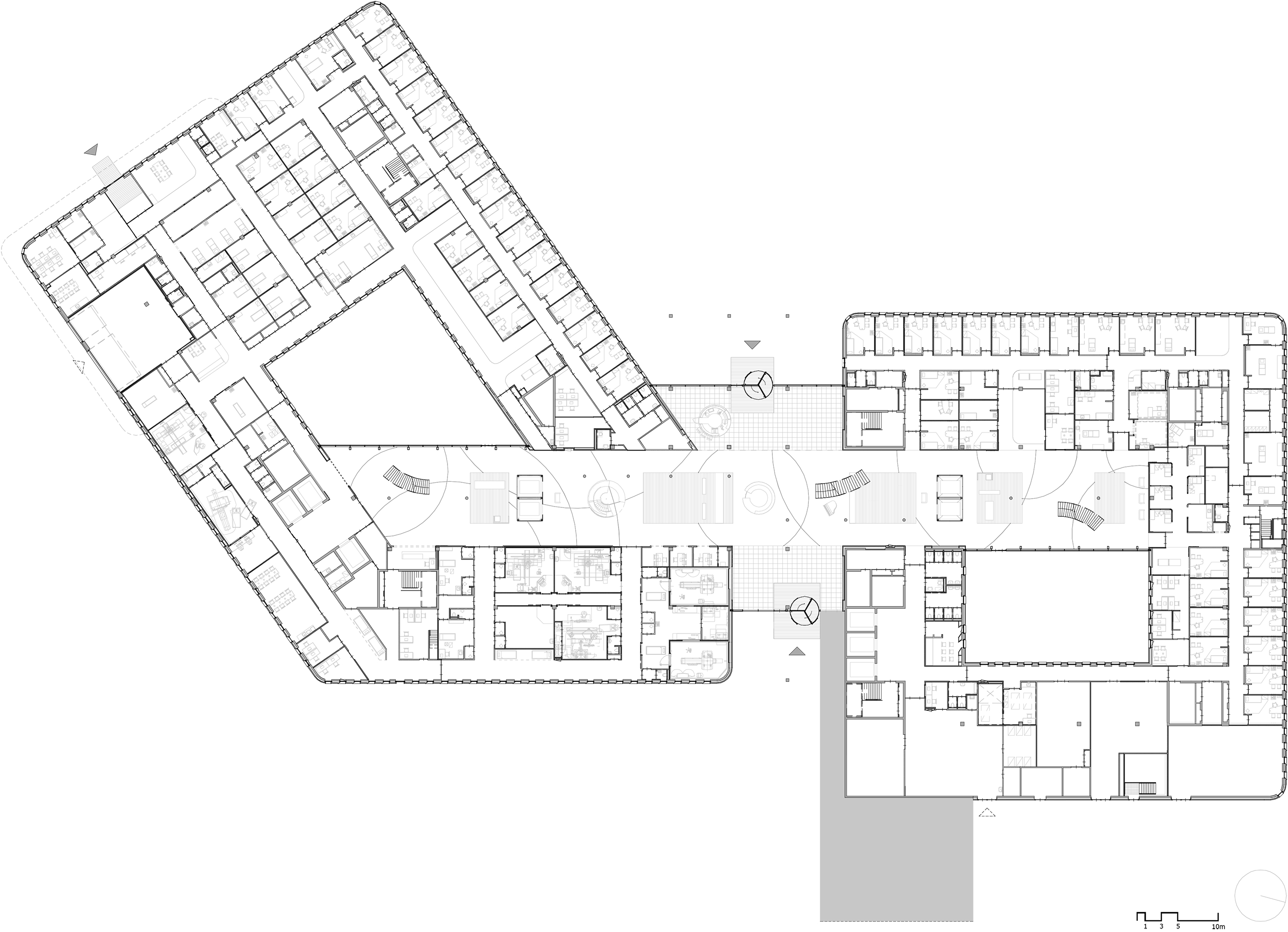
Zaans Medical Center ist als ein kompaktes Gebäude geplant. Die Architekten legen Wert auf eine klare Wegeführung, möglichst viel Tageslicht und die sogenannten »positiven Ablenkungen«. Von außen wirkt die Klinik mit einer repetitiven Fensterfront verhältnismässig verschlossen, im Inneren entfaltet sich eine ungewöhnliche Raumsequenz.
Zwei untere Geschosse sind für ambulante Behandlungen reserviert, in den darüber liegenden Geschossen befindet sich die Klinik. Eine wichtige Rolle bei dem Gestaltungsprozess spielten die Patientenängste. Deswegen unterscheidet sich das zweigeschossige Foyer mit mehreren halbkreisförmigen Einschnitten und Oberlichtern stark von den gewöhnlichen Krankenhausräumen. Hier herrscht eine angenehme Atmosphäre, die ablenkend wirkt und die Angst vor bevorstehenden Behandlungen mindert. Ein breiter Flur mit mehreren grosszügig geplanten Wartezonen verbindet alle Krankenhausabteilungen miteinander. Handgemachte Zeichnungen, in Zusammenarbeit mit dem Grafikbüro Silo Agency entstanden, tragen ebenfalls zu einer wohltuenden Umgebung bei.













