Ziegel für das Rosental: Doppelhaus von Arhitektura in Ljubljana
Foto: Miran Kambič
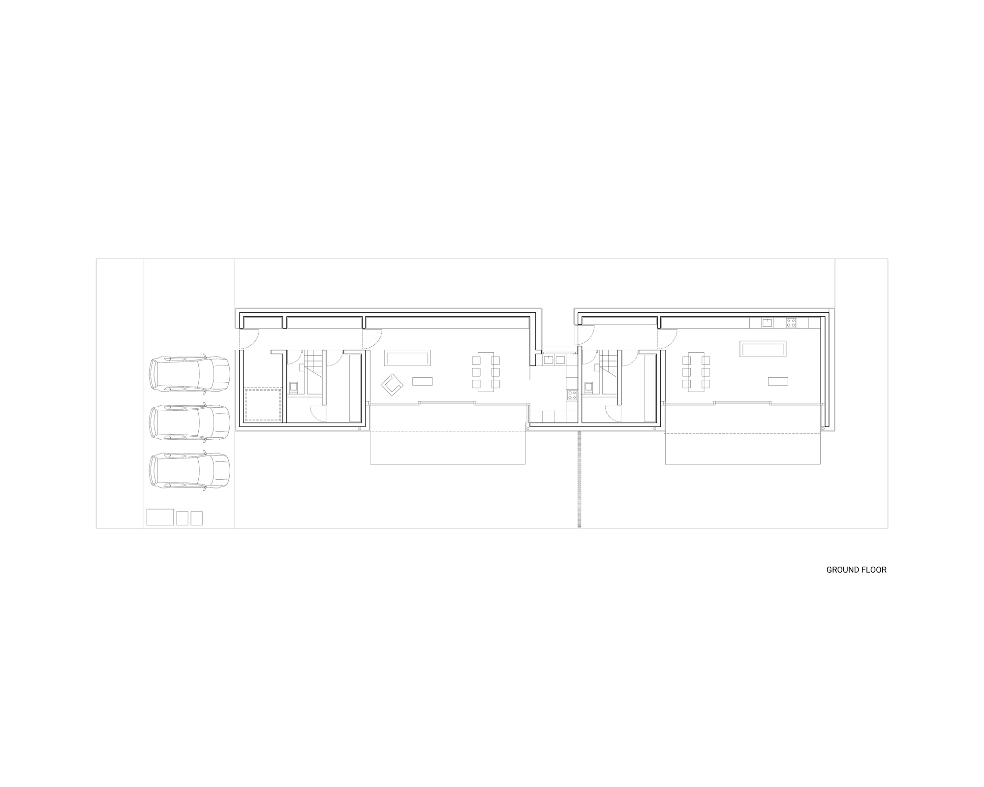
Früher war der Stadtteil Rožna dolina (wörtlich: Rosental) im Westen von Ljubljana ein wohlhabendes Villenviertel. An seinen Rändern jedoch entstanden seit den 1930er-Jahren zunehmend günstigere Wohnhäuser für eine weniger zahlungskräftige Klientel und ab den 60er-Jahren auch größere Wohnblocks. Auch das Doppelhaus, das Arhitektura für einen Investor entworfen haben, ist Teil dieses allmählichen Nachverdichtungsprozesses. Das schmale, zuvor von einem Einfamilienhaus bestandene Grundstück bestimmte die ungewöhnliche Gebäudeform mit 6 m Breite, 30 m Länge und Erschließung von der westlichen Stirnseite aus. Die beiden Hauseingänge führen von Norden ins Haus, im Süden öffnen sich die Wohnräume zu schmalen Terrassen.
Mit seinem monolithischen Äußeren aus dunkelbraunen Ziegeln nimmt das Haus eine Sonderrolle unter den zumeist verputzten Nachbarn ein. An der westlichen Stirnseite ist das Erdgeschoss mit einer Lärchenholzschalung abgesetzt. Aus dem gleichen Holz bestehen auch die Fensterrahmen. An der Nordseite unterbrechen nur wenige, große Fensteröffnungen die Ziegelhülle. Im Süden sind die Panoramafenster der Wohnräume in den Baukörper zurückgesetzt. Darüber betont eine lange Reihe schmaler, hoher Fenster die Horizontale.
Die Hausgrundrisse sind weitgehend identisch und mit je 170 m2 Nutzfläche für größere, fünfköpfige Familien ausgelegt. Im Erdgeschoss befindet sich ein großer Wohnbereich mit angeschlossener Küche. Im Obergeschoss befinden sich die Kinderzimmer, deren Bäder und ein Arbeitszimmer. Die Elternschlafzimmer mit Nebenräumen im Dachgeschoss haben Zugang zu zwei großen Dachterrassen, die nach dem Verlauf der Häuser noch mit individuellen Bodenbelägen und Brüstungen versehen werden sollen.





















