Zukunftsgewandt: Konferenzzentrum von AZL Architects
Foto: Hou Bowen
Das Shitang Internet Conference Center befindet sich unweit einer ländlichen Gemeinde, im Südwesten der chinesischen Stadt Nanjing. Es wird von Norden her erschlossen und grenzt an einen kleinen See. Die enormen Dimensionen des Baus ergeben, gepaart mit der schlanken Konstruktionsweise, ein groteskes Bild inmitten der ländlichen Umgebung.
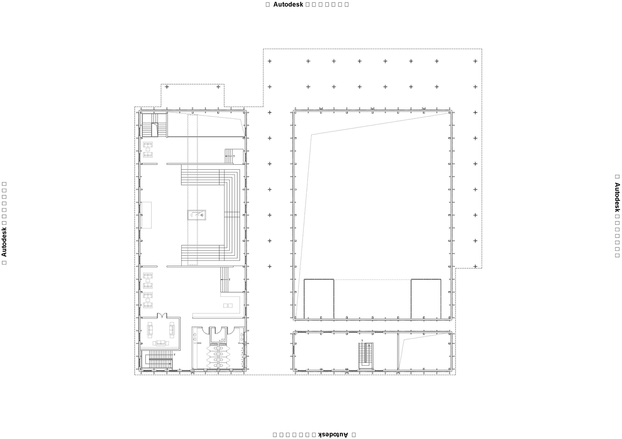
Das rund 3.000 m2 große Konferenzzentrum ist durch das Material Holz geprägt. AZL Architects gelingt es – inspiriert von Gewächshaustypologien – eine hochbelastbare Struktur mit minimalen Querschnitten zu entwickeln. Den nahezu quadratischen Grundriss überspannt ein auffälliges Dach. Seine Flächen ergeben ein ständiges Auf und Ab und folgen dem horizontalen Verlauf einer Zickzacklinie. Im vorderen Gebäudeteil wird das Dach von extrem schlanken Säulen getragen und bildet einen repräsentativen, geschützten Vorplatz. Ein dort anschließender außenliegender Gang teilt das Gebäude der Länge nach in zwei unterschiedlich große Trakte und gibt Einblicke in den konstruktiven Aufbau. Die vertikalen Holzlatten an den Fassaden werden lediglich unterbrochen durch rundum angeordnete, doppelflügelige Fenstertüren im unteren Bereich, sowie dreieckige Verglasungen zwischen Fassaden und Dachflächen.
Der östliche, dem See zugewandte Trakt des Konferenzzentrums umfasst einen riesigen Saal. Dieser reicht bis unter das Dach und kann für verschiedene Veranstaltungen, ob Konferenzen oder Gemeindetreffen, beliebig bespielt werden. Im anderen Teil finden Arbeitsbereiche und versorgende Installationen Platz. Eine zweite Ebene vergrößert die Nutzfläche und passt sich mit der niedrigeren Raumhöhe an den menschlichen Maßstab an.
Auch das Interior-Design besteht aus einer Kombination aus Holz und Stahl: Die Konstruktion bleibt unverkleidet, sodass man die Kräfte in den Zug- und Druckstäben nahezu mit bloßem Auge verfolgen kann.






















