// Check if the article Layout ?>
Zukunftstrend: Trendig Wohnen im Müll?
Foto: © Zooey Braun, Stuttgart
In den Favelas gehört das Wohnen im Müll seit jeher zum Alltag von Millionen von Slumbewohnern. Jetzt soll die Wiederverwertung von Baustoffen als vorgefertigte Raumzelle auch in den Nobelquartieren Einzug halten. Vorerst muss die Urban Mining and Recycling Unit UMAR allerdings in der Praxis getestet werden: In Kürze werden zwei Studenten in den Prototyp einziehen, der am 8. Februar in das Forschungsgebäude NEST eingesetzt wurde.
In der westlichen Welt sorgen sie immer noch für Unbehagen: die Bilder von Menschen, die Mülldeponien auf verwertbaren Abfall durchwühlen und sich mit gefundenen Plastikfolien, Wellblech-Teilen oder alten Autoreifen eine notdürftige Unterkunft zusammenzimmern. In Mumbai leben ganze Industriezweige von dieser Form des Recycling, das inzwischen als Urban Mining in den Sprachgebrauch der Urbanisten Einzug gehalten hat. Der Mensch ist nicht mehr nur Verbraucher, sondern auch Produzent von anthropogenen Wertstoffen.
Diese Wertstoffe zu heben und für einen qualitativ hochwertigen Wohnungsbau zu nutzen, ist das Ziel der Initiatoren von UMAR. Die bronzenen Türgriffe mit Patina stammen aus einem Brüsseler Hotel, die Wärmedämmung wurde aus zerrissenen Jeans gewonnen, und die Oberflächen aus Black Dapple könnten zum Marmor der postfossilen Gesellschaft werden: Es handelt sich um hoch verdichtete Polyethylenschnitzel von Schneidebrettern und Kunststoffverpackungen.
»Angesichts der rasant wachsenden Weltbevölkerung müssen wir in Zukunft den Materialverbrauch für die einzelne Wohnung drastisch reduzieren.« Meint Werner Sobek, der gemeinsam mit Dirk E. Hebel und Felix Heisel die UMAR entwickelt hat. Und mehr noch: Nach Ablauf seiner Lebenszeit, sollen auch die Bestandteile des UMAR wieder in den Wertstoffkreislauf zurückfließen. Deshalb sind sämtliche Verbindungen einfach lösbar ausgebildet, lautet das Motto stecken statt kleben.
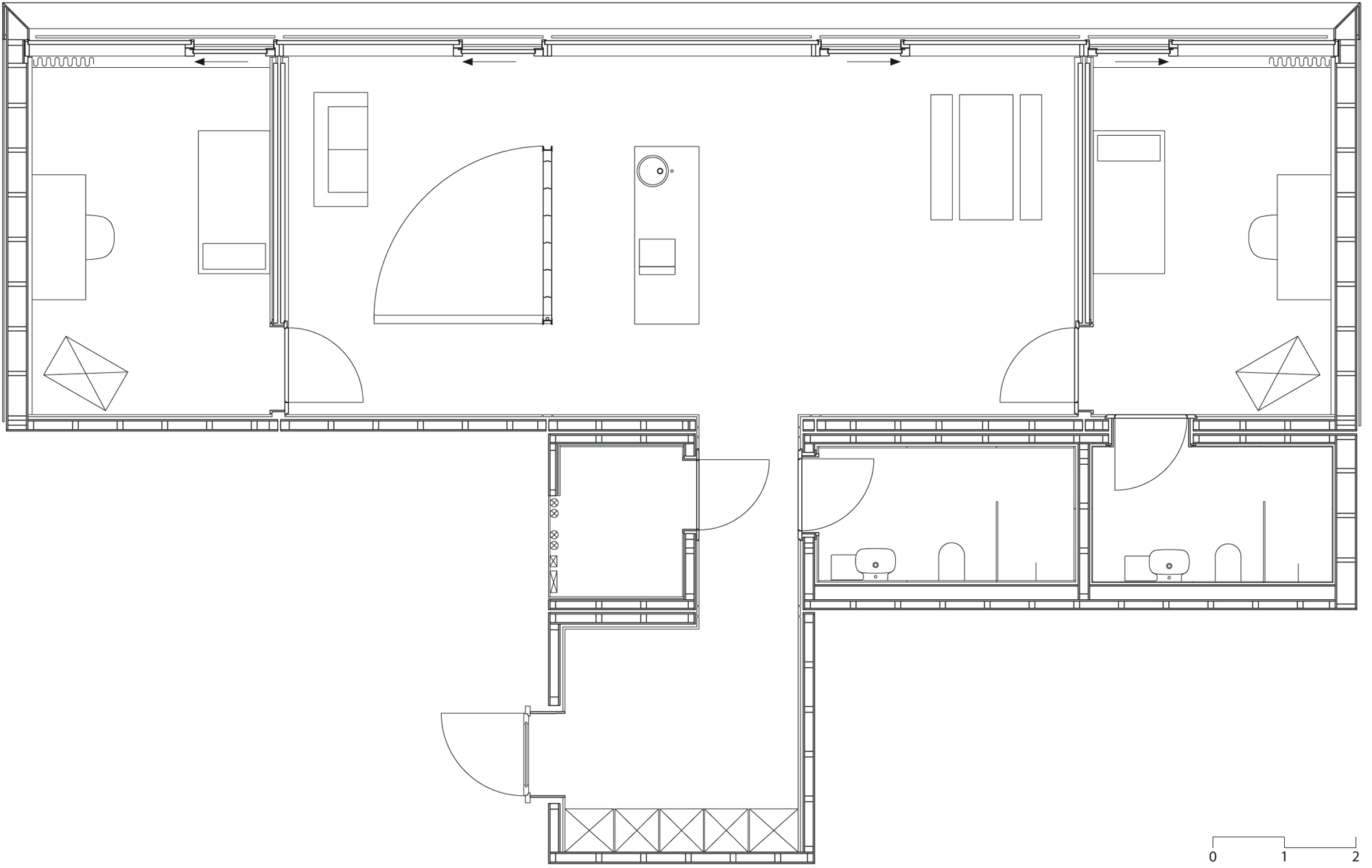
Die UMAR ist nur eine von bisher 10 Units, die in das modulare Forschungs- und Innovationsgebäude NEST der Empa und Eawag in Dübendorf, im Norden Zürichs eingesetzt werden. Sie hat eine Nutzfläche von 125 m2. Die anderen Units im NEST Next Evolution in Sustainable Building Technologies arbeiten mit nachführbaren Panelen aus hocheffiziente Dünnschicht Photovoltaikzellen, innovativen Betonschalen, neuartigen Holzwerkstoffen oder Assistenzsystemen, die alten Menschen ermöglichen trotz zunehmender Gebrechlichkeit so lange wie möglich in ihrer Wohnung zu bleiben. Da Testpersonen in den Units wohnen und arbeiten ist es ein »Living Lab«, ein kombiniertes Wohn-Büro und Laborgebäude.
Bemerkenswert am UMAR ist außerdem die Zusammenarbeit der Eidgenössischen Materialprüfanstalt Empa auf internationaler Ebene: Mit den Partnern Werner Sobek Group, der Universität Stuttgart (Werner Sobek) und dem KIT Karlsruhe (Dirk E.Hebel. und Felix Heisel) reicht das Forschungsprojekt weit über die Schweizer Landesgrenzen hinaus.
Wer sich persönlich einen Eindruck verschaffen möchte, kann an einer der einstündigen Führungen vor Ort teilnehmen. Weitere Informationen erhalten Sie hier.
In der westlichen Welt sorgen sie immer noch für Unbehagen: die Bilder von Menschen, die Mülldeponien auf verwertbaren Abfall durchwühlen und sich mit gefundenen Plastikfolien, Wellblech-Teilen oder alten Autoreifen eine notdürftige Unterkunft zusammenzimmern. In Mumbai leben ganze Industriezweige von dieser Form des Recycling, das inzwischen als Urban Mining in den Sprachgebrauch der Urbanisten Einzug gehalten hat. Der Mensch ist nicht mehr nur Verbraucher, sondern auch Produzent von anthropogenen Wertstoffen.
Diese Wertstoffe zu heben und für einen qualitativ hochwertigen Wohnungsbau zu nutzen, ist das Ziel der Initiatoren von UMAR. Die bronzenen Türgriffe mit Patina stammen aus einem Brüsseler Hotel, die Wärmedämmung wurde aus zerrissenen Jeans gewonnen, und die Oberflächen aus Black Dapple könnten zum Marmor der postfossilen Gesellschaft werden: Es handelt sich um hoch verdichtete Polyethylenschnitzel von Schneidebrettern und Kunststoffverpackungen.
»Angesichts der rasant wachsenden Weltbevölkerung müssen wir in Zukunft den Materialverbrauch für die einzelne Wohnung drastisch reduzieren.« Meint Werner Sobek, der gemeinsam mit Dirk E. Hebel und Felix Heisel die UMAR entwickelt hat. Und mehr noch: Nach Ablauf seiner Lebenszeit, sollen auch die Bestandteile des UMAR wieder in den Wertstoffkreislauf zurückfließen. Deshalb sind sämtliche Verbindungen einfach lösbar ausgebildet, lautet das Motto stecken statt kleben.
Die UMAR ist nur eine von bisher 10 Units, die in das modulare Forschungs- und Innovationsgebäude NEST der Empa und Eawag in Dübendorf, im Norden Zürichs eingesetzt werden. Sie hat eine Nutzfläche von 125 m2. Die anderen Units im NEST Next Evolution in Sustainable Building Technologies arbeiten mit nachführbaren Panelen aus hocheffiziente Dünnschicht Photovoltaikzellen, innovativen Betonschalen, neuartigen Holzwerkstoffen oder Assistenzsystemen, die alten Menschen ermöglichen trotz zunehmender Gebrechlichkeit so lange wie möglich in ihrer Wohnung zu bleiben. Da Testpersonen in den Units wohnen und arbeiten ist es ein »Living Lab«, ein kombiniertes Wohn-Büro und Laborgebäude.
Bemerkenswert am UMAR ist außerdem die Zusammenarbeit der Eidgenössischen Materialprüfanstalt Empa auf internationaler Ebene: Mit den Partnern Werner Sobek Group, der Universität Stuttgart (Werner Sobek) und dem KIT Karlsruhe (Dirk E.Hebel. und Felix Heisel) reicht das Forschungsprojekt weit über die Schweizer Landesgrenzen hinaus.
Wer sich persönlich einen Eindruck verschaffen möchte, kann an einer der einstündigen Führungen vor Ort teilnehmen. Weitere Informationen erhalten Sie hier.
Projektteam «Urban Mining & Recycling»
Bauherrschaft: Empa, Eidg. Materialprüfungs- und Forschungsanstalt, Dübendorf, Schweiz
Konzeption, Entwurf und Objektplanung: Werner Sobek mit Dirk E. Hebel und Felix Heisel, Stuttgart und Karlsruhe, Deutschland
Tragwerksplanung und Generalunternehmer: Kaufmann Zimmerei und Tischlerei GmbH, Reuthe,
Österreich
HLSKE und MSR: Amstein-Walthert AG, Zürich, Schweiz
Sprinkler: NBG Ingenieure AG, Bern, Schweiz; JOMOS Feuerschutz AG, Balsthal, Schweiz
Brandschutz: Balzer Ingenieure AG, Chur, Schweiz
Bauphysik: Weber Energie und Bauphysik, Schaffhausen, Schweiz
Bauherrschaft: Empa, Eidg. Materialprüfungs- und Forschungsanstalt, Dübendorf, Schweiz
Konzeption, Entwurf und Objektplanung: Werner Sobek mit Dirk E. Hebel und Felix Heisel, Stuttgart und Karlsruhe, Deutschland
Tragwerksplanung und Generalunternehmer: Kaufmann Zimmerei und Tischlerei GmbH, Reuthe,
Österreich
HLSKE und MSR: Amstein-Walthert AG, Zürich, Schweiz
Sprinkler: NBG Ingenieure AG, Bern, Schweiz; JOMOS Feuerschutz AG, Balsthal, Schweiz
Brandschutz: Balzer Ingenieure AG, Chur, Schweiz
Bauphysik: Weber Energie und Bauphysik, Schaffhausen, Schweiz
















