// Check if the article Layout ?>
Zuwachs unter Londons Dachaufbauten: Umbau eines Wohnhauses
Der Wohnraum in London ist teuer, daran hat sich nichts geändert. Das Projekt von Nicholas Szczepaniak Architects vereint jetzt zwei der Lösungsansätze der Stadtbewohner, um trotz steigender Preise in der Stadt wohnen zu können. Dachaufstockungen sind bereits eine erprobte Maßnahme, um den eigenen Wohnraum in die Höhe zu erweitern. Gleichzeitig hat sich eine große Gemeinschaft an Hausbootbewohnern gebildet, die auf den Kanälen der Stadt umherfahren, einerseits, weil sie sich die Mieten auf dem Festland nicht leisten können, andererseits, weil sie damit einen bestimmten Lebensstil verbinden. Der neue Dachaufbau ist von den Booten auf dem Kanal vor der Haustür inspiriert mit einem Innenausbau aus Eichen- und Eschenholz und segmentierter Konstruktion.
Raue Decke trifft zarte Rillen
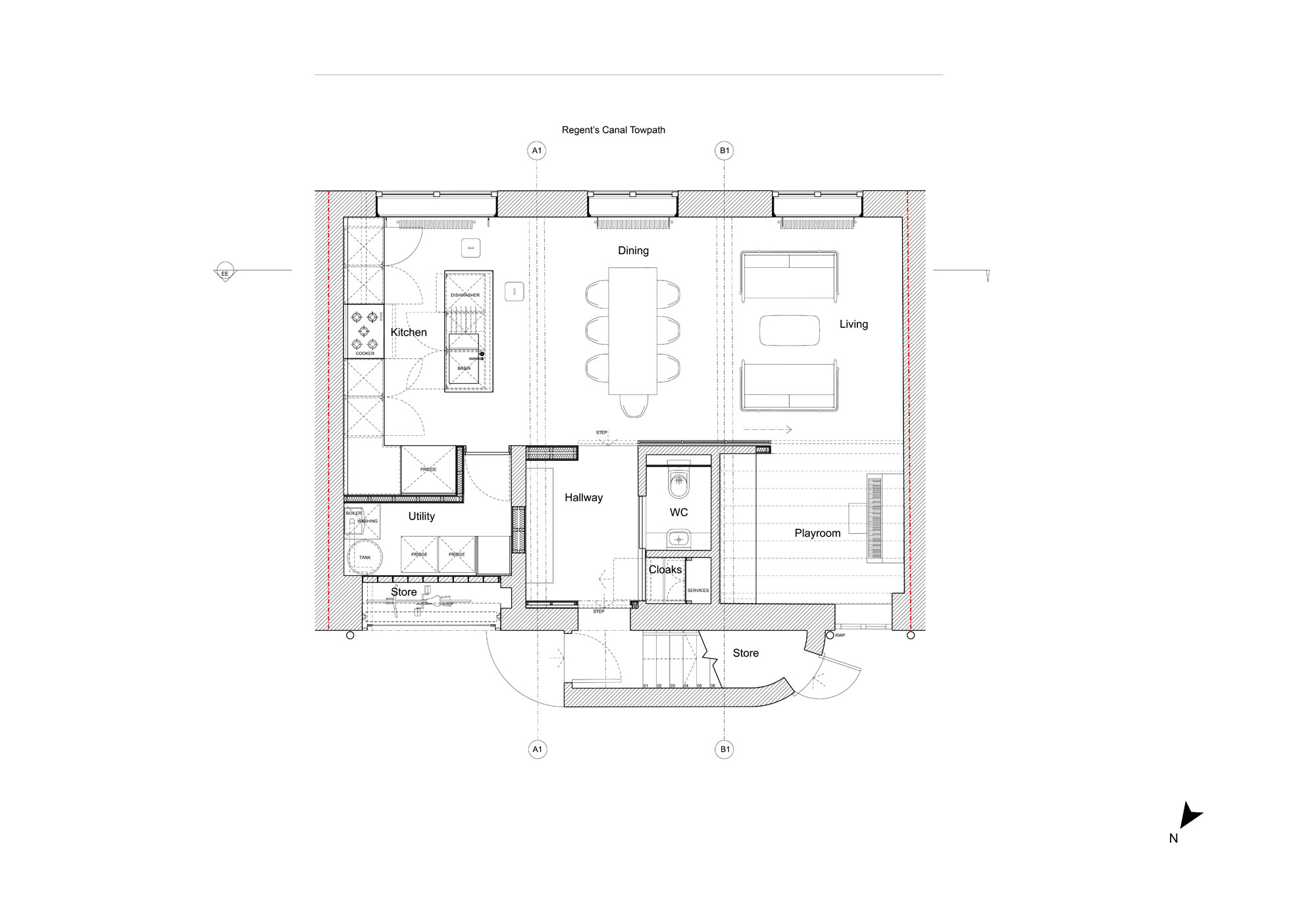
Im Erdgeschoss gehen Küche, Esszimmer und Wohnraum fließend ineinander über. Da sie nach Süden orientiert sind, gelangt durch die drei Fensteröffnungen reichlich Tageslicht ins Innere. Die Fenster – jeweils bestehend aus drei mit Rillenglas gefüllten Schwingflügeln – sind ein guter Sichtschutz zum Kanal hin, ohne die natürliche Lüftung einzuschränken. Auch als Raumtrenner kommt Rillenglas zum Einsatz. In Schiebetüren eingesetzt dient es dazu, das Spielzimmer je nach Bedarf zum Wohnzimmer dazuzuschalten oder es abzutrennen. Die Rohbaudecke der alten Fabrik, die mit all ihren Spuren im Erdgeschoss sichtbar bleibt, ist ein letzter Zeuge der industriellen Vergangenheit des Grundstücks.
Im Erdgeschoss gehen Küche, Esszimmer und Wohnraum fließend ineinander über. Da sie nach Süden orientiert sind, gelangt durch die drei Fensteröffnungen reichlich Tageslicht ins Innere. Die Fenster – jeweils bestehend aus drei mit Rillenglas gefüllten Schwingflügeln – sind ein guter Sichtschutz zum Kanal hin, ohne die natürliche Lüftung einzuschränken. Auch als Raumtrenner kommt Rillenglas zum Einsatz. In Schiebetüren eingesetzt dient es dazu, das Spielzimmer je nach Bedarf zum Wohnzimmer dazuzuschalten oder es abzutrennen. Die Rohbaudecke der alten Fabrik, die mit all ihren Spuren im Erdgeschoss sichtbar bleibt, ist ein letzter Zeuge der industriellen Vergangenheit des Grundstücks.
Ablesbare Konstruktion
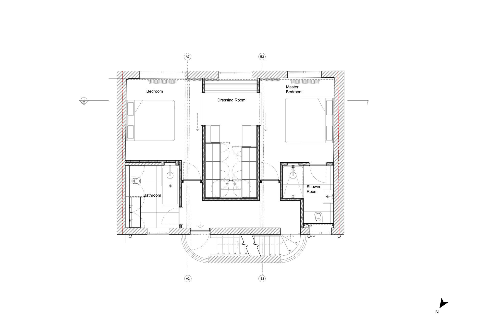
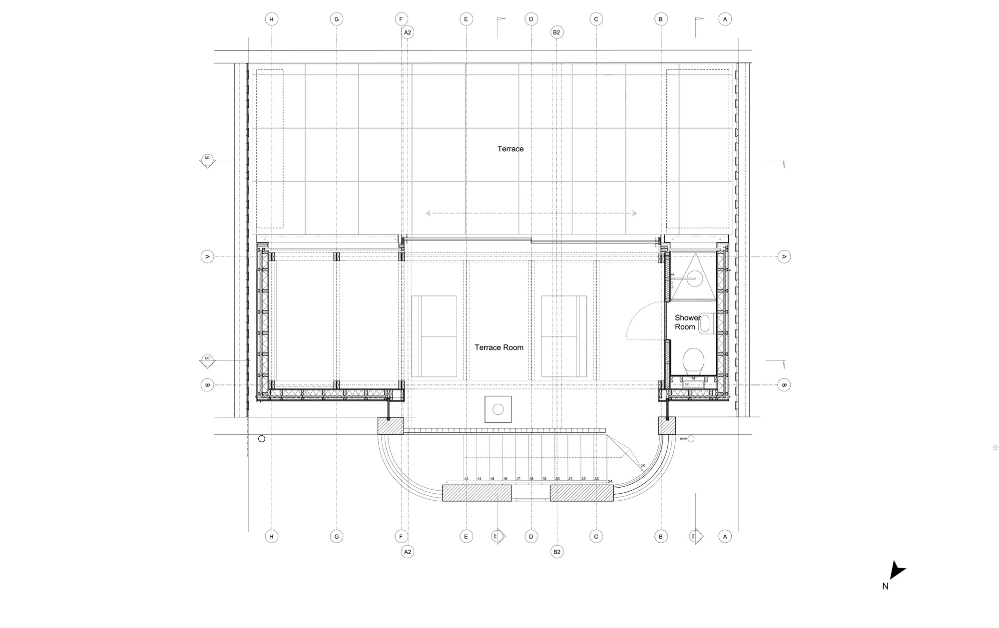
Vorbei am ersten Obergeschoss mit den privaten Schlafzimmern und Bädern führt die Treppe aufs Dach. Nur der Treppenraum mit seinen großflächigen Feldern aus Glasbausteinen ist weiß verputzt; der Wintergarten besteht aus einer segmentierten Konstruktion aus Eichenständern und Stahlseilen, die in enger Zusammenarbeit mit den Ingenieuren entwickelt wurde. Im Inneren sind alle Flächen mit Holz verkleidet, außen dominiert schwarzes Metall. Zur Dachterrasse gen Süden ist der Aufbau vollflächig verglast. Vor den Fixverglasungen spannen Stahlseile als Blendschutz über die gesamte Höhe. Mit einem kleinen, in den Aufbau integrierten Bad lässt sich das Geschoss sowohl als Gästeapartment, Lounge oder als Arbeitszimmer nutzen.
Vorbei am ersten Obergeschoss mit den privaten Schlafzimmern und Bädern führt die Treppe aufs Dach. Nur der Treppenraum mit seinen großflächigen Feldern aus Glasbausteinen ist weiß verputzt; der Wintergarten besteht aus einer segmentierten Konstruktion aus Eichenständern und Stahlseilen, die in enger Zusammenarbeit mit den Ingenieuren entwickelt wurde. Im Inneren sind alle Flächen mit Holz verkleidet, außen dominiert schwarzes Metall. Zur Dachterrasse gen Süden ist der Aufbau vollflächig verglast. Vor den Fixverglasungen spannen Stahlseile als Blendschutz über die gesamte Höhe. Mit einem kleinen, in den Aufbau integrierten Bad lässt sich das Geschoss sowohl als Gästeapartment, Lounge oder als Arbeitszimmer nutzen.


























