// Check if the article Layout ?>
Zweimal Alt zu einmal Neu: Umbau Ernen
Foto: Mark Niedermann
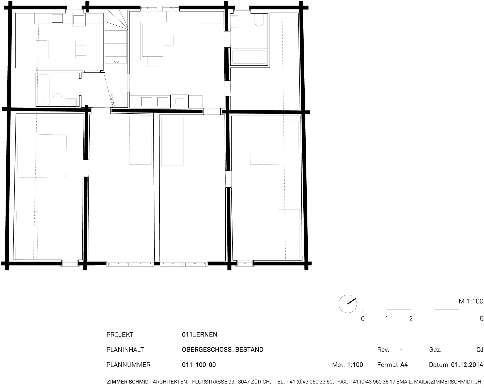
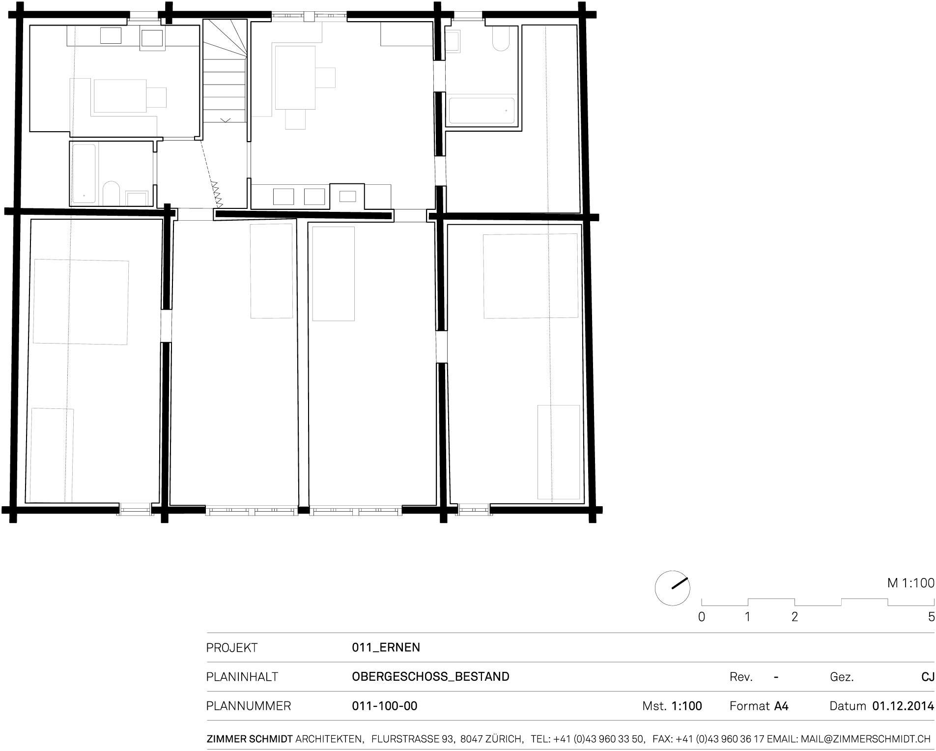
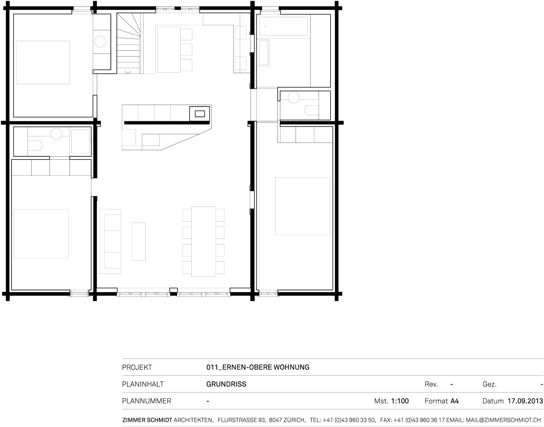
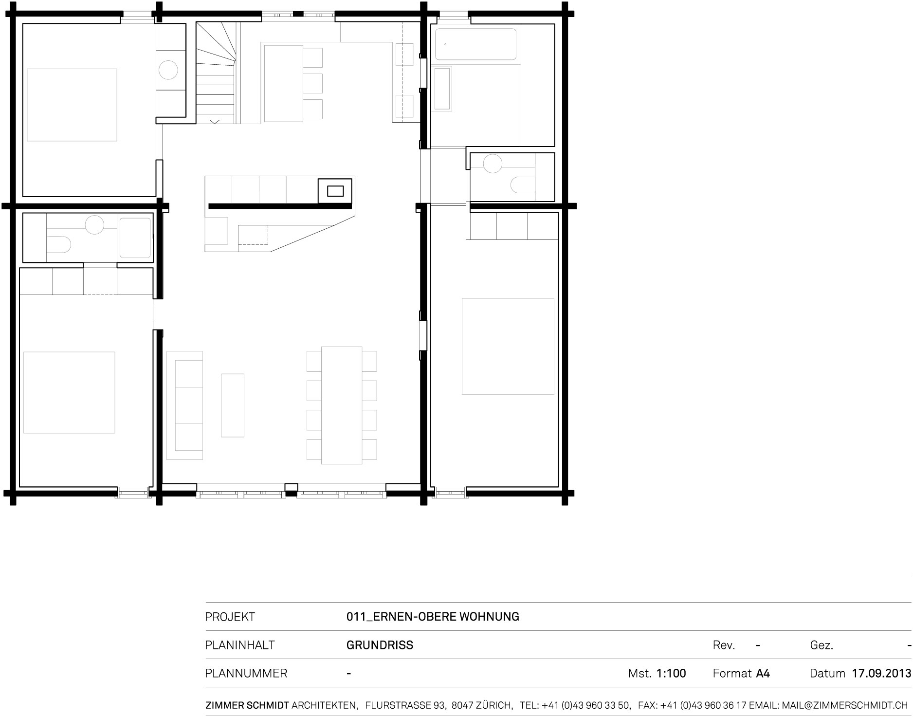
Ausgehend von zwei separaten Ferienwohnungen unter dem Dach des Hauses, greifen die Architekten die Lage und Orientierung des Gebäudes für den Entwurfsprozess des Umbaus auf und generieren eine Ferienwohnung, die durch einen großzügig gestalteten, durchgesteckten Wohn-Ess-Küchenbereich besticht. Ein neuer, zentral liegender Körper unterteilt die einzelnen Bereiche der Gemeinschaftszone: Auf der einen Seite befindet sich das Wohn-Esszimmer auf der anderen Seite die Küche mit Eckbank und einer weiteren Essgelegenheit. Sowohl die Küchenhochschränke, als auch die seitlichen Ablageflächen und der alte Kamin finden in dem neuen Raummöbel Platz und sorgen durch die weiße Oberfläche für eine farbliche Akzentuierung in den sonst vollständig mit Holz gestalteten Innenräumen. Um nicht stets den Bewegungen des alten Bodens ausgesetzt zu sein, wurde der mit sichtbar geschraubten Brandschutzplatten verkleidete Kamin an die dahinterliegende, durch das Raumelement versteckte, Blockwand gehängt. Die freigespielten Blockwände die von Osten nach Westen verlaufen bilden auf beiden Seiten des Gemeinschaftsbereiches eine Trennwand zu den seitlich angeordneten Schlafräumen und Badezimmern. Durch die Verlegung der Türen zu den einzelnen Räumen werden die nun nicht mehr benötigten Öffnungen als Nischen und als kleine Regale genutzt. Um die Materialpalette möglichst klein zu halten, wurde für alle neu ausgeführten Wand- und Bodenbeläge lokales Fichtenholz verbaut. Die Dielbaumbretter des ehemaligen Estrichbodens wurden wiederverwendet und finden sich jetzt in den Einbauten in Küche und Bad wieder. Aufgrund ihrer altersbedingten Härte und Widerstandsfähigkeit dienen diese Lärchenbretter als ideale Arbeitsoberfläche und als Möbel für die Sitzecke der Wohnküche. Ebenso finden sie als horizontale Ablageflächen in den Badezimmern Verwendung.
Weitere Informationen:
Architekten: Zimmer Schmidt Architekten
Mitarbeiter: Harry Diehl, Pascal Hentschel, Thomas Feider Tragwerksplaner und Holzbau: Holzbau Weger
Schreinerarbeiten: Imhasly AG
Heizung und Sanitär: Briw Heizung Sanitär AG
Elektrik: HIT Elektro AG
Kamin: Walter Schnyder Kaminbau
Malerarbeiten und Beschichtungen: Lagger + Walpen AG
Mitarbeiter: Harry Diehl, Pascal Hentschel, Thomas Feider Tragwerksplaner und Holzbau: Holzbau Weger
Schreinerarbeiten: Imhasly AG
Heizung und Sanitär: Briw Heizung Sanitär AG
Elektrik: HIT Elektro AG
Kamin: Walter Schnyder Kaminbau
Malerarbeiten und Beschichtungen: Lagger + Walpen AG














