// Check if the article Layout ?>
Zwillingstürme in Zhengzhou: Doppelt gesichert
Foto: Zeng Jianghe
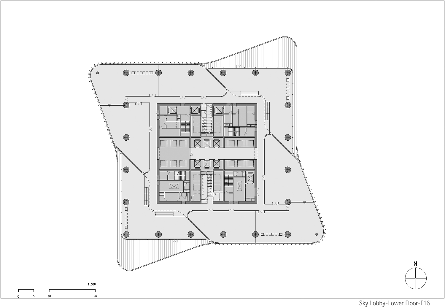
Der nach Plänen von gmp Architekten fertig gestellte Greenland Central Plaza-Komplex umfasst ca. 746 000 m² Bruttogeschossfläche (BGF). Die beiden Hochhäuser besitzen jeweils eine Nutzfläche von ca. 232 000 m², die sich auf 63 Geschosse mit ca. 4 000 m² verteilen. Auf hohe Flexibilität ausgelegt, können bis zu 15 Einheiten pro Ebene eingerichtet werden. Eine bauliche Trennung von Turm und Podiumsbau ermöglicht einen allseitigen, ungehinderten Zugang zu den eigentlichen Turmlobbys. Bis zu 12 000 Menschen betreten pro Tag und Turm diesen Bereich. Die Turmspitzen der Greenland Towers sind exklusiven Nutzungen vorbehalten. An das achtgeschossige »Sky Atrium« sind über drei weitere Geschosse das sogenannte »Sky Commerce« mit Restaurants, Geschäften und Spa angeschlossen. Im Nordturm sind zudem exklusive Clubräume untergebracht, im südlichen Zwilling gibt es hochpreisige Apartments.
Mehrfach redundantes Tragsystem
Bei beiden Türmen entwickeln sich die Grundrisse der Regelgeschosse aus Quadraten. Die charakteristische, windmühlenartig-amorphe Umfassungslinie resultiert aus Stahlauskragungen, die an diesen Kern montiert wurden. Die Rohbauten beider Türme sind Komposit-Konstruktionen aus einem sehr steifen Treppenhaus-Aufzugsgruppen-Kern in Beton und statisch »weicher« angelegten Geschossdecken in einer Stahl-Beton-Verbundkonstruktion. Diese Bauweise ergab ein statisch mehrfach redundantes Tragsystem, das die Türme widerstandsfähiger gegen schwere Erdbeben macht. Im Englischen wird von »vertical trusses« für die senkrechten Gebäudekerne und von »belt trusses« für die Geschossdecken gesprochen. Diese stützen sich gegenseitig (»outriggern«).
Das Prinzip einer redundanten Gebäudeaussteifung wird von der chinesischen Gesetzgebung wegen der generellen Erdbebengefahr gefordert. Die Regeln schreiben vor, dass auch die »weicheren« Aussteifungskonstruktionen einen Mindestanteil der Erdbebenlast aufnehmen müssen. Deshalb sind diese steifer ausgeführt, als eine klassische Bauteilbemessung es erfordern würde.
Mehrfach redundantes Tragsystem
Bei beiden Türmen entwickeln sich die Grundrisse der Regelgeschosse aus Quadraten. Die charakteristische, windmühlenartig-amorphe Umfassungslinie resultiert aus Stahlauskragungen, die an diesen Kern montiert wurden. Die Rohbauten beider Türme sind Komposit-Konstruktionen aus einem sehr steifen Treppenhaus-Aufzugsgruppen-Kern in Beton und statisch »weicher« angelegten Geschossdecken in einer Stahl-Beton-Verbundkonstruktion. Diese Bauweise ergab ein statisch mehrfach redundantes Tragsystem, das die Türme widerstandsfähiger gegen schwere Erdbeben macht. Im Englischen wird von »vertical trusses« für die senkrechten Gebäudekerne und von »belt trusses« für die Geschossdecken gesprochen. Diese stützen sich gegenseitig (»outriggern«).
Das Prinzip einer redundanten Gebäudeaussteifung wird von der chinesischen Gesetzgebung wegen der generellen Erdbebengefahr gefordert. Die Regeln schreiben vor, dass auch die »weicheren« Aussteifungskonstruktionen einen Mindestanteil der Erdbebenlast aufnehmen müssen. Deshalb sind diese steifer ausgeführt, als eine klassische Bauteilbemessung es erfordern würde.
Weitere Informationen:
Fassadenberatung: MAE, Meiss Architecture & Engineering Office
Projektmanagement: China Li Ling
Partnerbüro in China: TJADRI Group, Shanghai
Freianlagen: WES und Partner, Berlin
Lichtplanung: conceptlicht, Traunreut
Aufzugsberatung: Parsons Brinckerhoff Engineering, Peking
Fassadenberatung: MAE, Meiss Architecture & Engineering Office
Projektmanagement: China Li Ling
Partnerbüro in China: TJADRI Group, Shanghai
Freianlagen: WES und Partner, Berlin
Lichtplanung: conceptlicht, Traunreut
Aufzugsberatung: Parsons Brinckerhoff Engineering, Peking











