[Translate to en:] Thirteen Levels of Art: Munch Museum in Oslo
Foto: Adria Goula
Drei Angestellte und ein Rottweiler statt einer Alarmanlage: Für ein Museum von Weltrang ist das eine eher behelfsmäßige Personalausstattung. Doch so sahen vor knapp 60 Jahren die Anfänge des Munch-Museums im Osloer Stadtteil Tøyen aus. Platzmangel, Feuchteschäden und Kunstdiebstähle wegen eklatanter Sicherheitsmängel waren ständige Begleiter in der Geschichte des 1963 eröffneten Hauses.
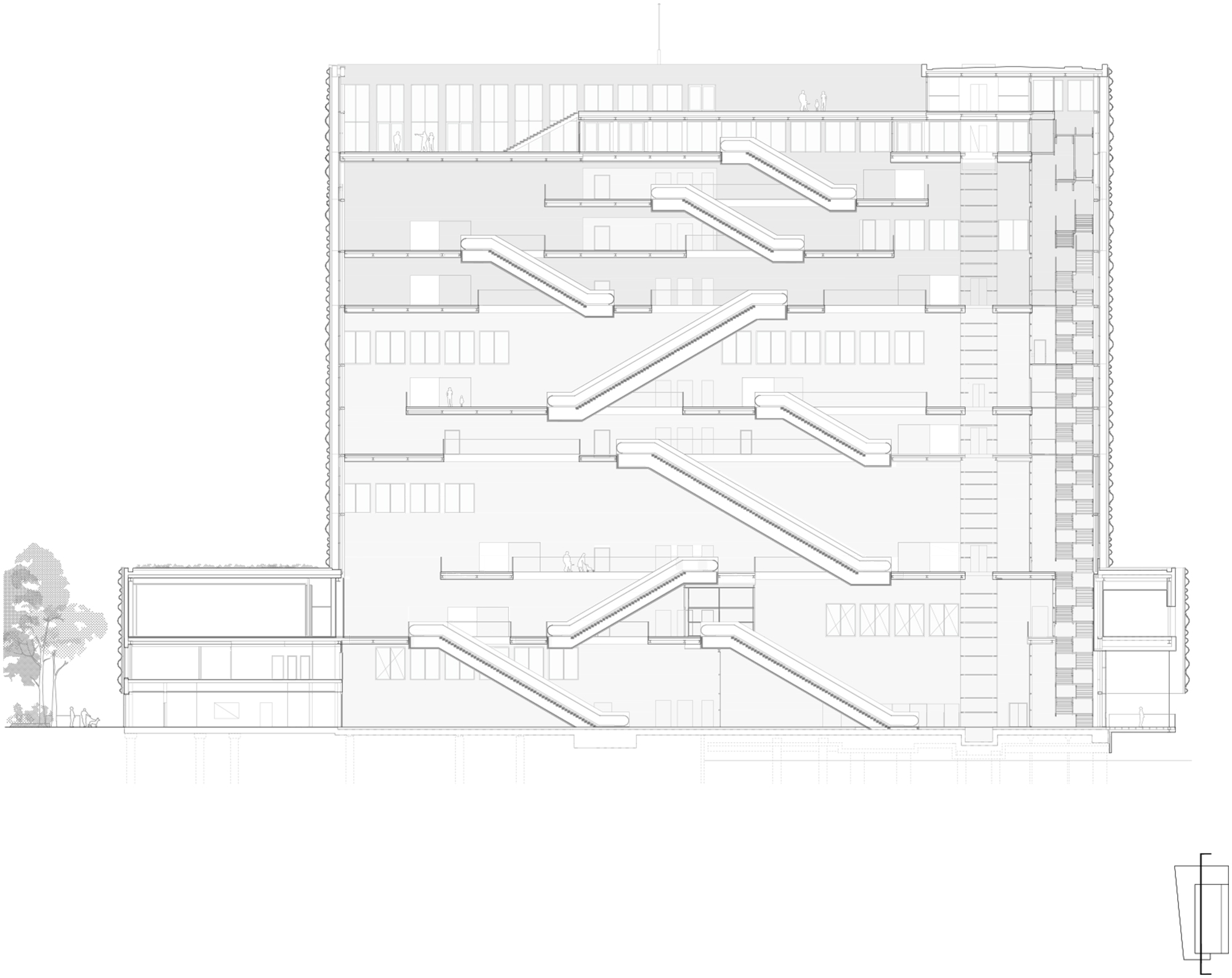
Kein Wunder also, dass viele in der Stadt dem Museumsneubau von Estudio Herreros am Ufer des Oslofjords entgegengefiebert haben. Erstmals soll der immense Museumsbestand von 28000 Objekten, den Munch bei seinem Tod 1940 der Stadt Oslo hinterließ, hier angemessen aufbewahrt und präsentiert werden können.
Gemeinsam mit der unlängst eröffneten Deichman-Bibliothek und dem Opernhaus bildet der hoch aufragende Neubau ein Trio bedeutender Kulturbauten im Stadtteil Bjørvika, das sich in den letzten 15 Jahren vom Hafenareal zum Wohn-, Büro- und Kulturstandort gewandelt hat. Schon 2009 hatten die Madrider Architekten den internationalen Architekten- und Planungswettbewerb für das Museum und das nördlich angrenzende Stadtquartier gewonnen. Baubeginn war erst 2015, nach langen politischen Debatten und einem dreijährigen Planungsstopp. Doch inzwischen ist das Haus außen und innen fertiggestellt und soll noch in diesem Jahr eröffnet werden.


















