// Check if the article Layout ?>
50 Shades of White: V+ and Rotor Compose Building Complex for MAD
Foto: Maxime Delvaux
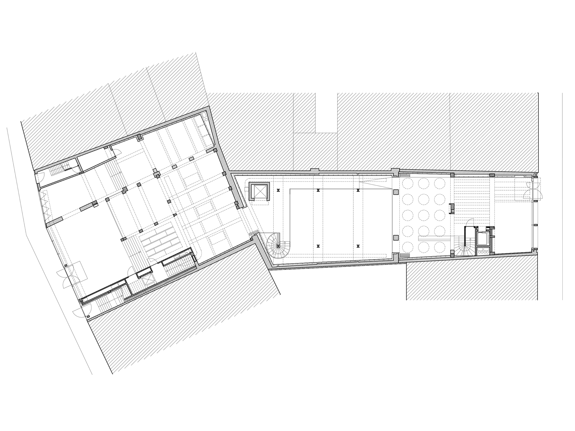
The framework conditions for the MAD Brussels Fashion and Design Platform are formed by several existing buildings in a block in the middle of Brussels. These could not differ more in terms of style, for they were built over a span of around 60 years. Instead of completely demolishing and rebuilding the ensemble, V+ and Rotor developed an exciting concept to painstakingly revitalize the given structures and shift their spatial qualities into the foreground. Apart from smaller, targeted interventions, the buildings have mostly remained as they were. The architects have succeeded in melding the individual components into a harmonious whole with a modern touch.
V+ and Rotor have translated the spirit of the organization MAD into an architectural language and created the perfect frame for this cultural centre devoted to fashion and design. Along with exhibition and event spaces, the ensemble has enough room for offices, a cafeteria and designers’ studios. Differences in room height, and open galleries, give the ensemble its lively character. In some places the rooms feature extensive glass fronts which open onto the surrounding neighbourhood; other areas benefit from skylights, and others seem quite closed off.
From chalk, pearl, cream – all the way to lily white – V+ and Rotor have taken advantage of the entire white palette for the interior design. These shades are combined with various materials. The result is a dynamic combination of haptics and optics which is both restful and unified; it also underscores the diversity of the spaces and the different buildings. In some places rough brick covers the walls; others have smooth, nearly reflective surfaces. The concept is rounded out by individual pops of colour such as tile or exposed-concrete elements and pipes open to view in bright red. The frequently occurring spiral stairways and columns provide subtle zoning. Inside, all these effects create the impression of a life-sized model where visitors can allow their gazes to pass through the halls. MAD has become an exciting place: at once familial, picturesque and provocative. The Dirty White Cube confronts users with rectilinearity and diversity, thus laying the foundation for creative processes in the cultural centre – entirely in the spirit of fashion and design.
V+ and Rotor have translated the spirit of the organization MAD into an architectural language and created the perfect frame for this cultural centre devoted to fashion and design. Along with exhibition and event spaces, the ensemble has enough room for offices, a cafeteria and designers’ studios. Differences in room height, and open galleries, give the ensemble its lively character. In some places the rooms feature extensive glass fronts which open onto the surrounding neighbourhood; other areas benefit from skylights, and others seem quite closed off.
From chalk, pearl, cream – all the way to lily white – V+ and Rotor have taken advantage of the entire white palette for the interior design. These shades are combined with various materials. The result is a dynamic combination of haptics and optics which is both restful and unified; it also underscores the diversity of the spaces and the different buildings. In some places rough brick covers the walls; others have smooth, nearly reflective surfaces. The concept is rounded out by individual pops of colour such as tile or exposed-concrete elements and pipes open to view in bright red. The frequently occurring spiral stairways and columns provide subtle zoning. Inside, all these effects create the impression of a life-sized model where visitors can allow their gazes to pass through the halls. MAD has become an exciting place: at once familial, picturesque and provocative. The Dirty White Cube confronts users with rectilinearity and diversity, thus laying the foundation for creative processes in the cultural centre – entirely in the spirit of fashion and design.
Further information:
Design: Rotor

























