// Check if the article Layout ?>
A Changeable Façade: School Gym by h4a architekten
Photo: Zooey Braun
This gym will make a meaningful contribution to the goal of spatial densification. However, it will also reinforce the character of the neighbourhood, which is known for its Wilhelminian buildings and boulevard-like plantings. The sports hall will be used by the adjacent Kepler and Humboldt Gymnasium, but by inner-city clubs as well. The structure’s prominent setting on the main street underscores its function as a building for public use.
The striking edifice is completely enclosed in silver-coloured, twisted aluminum slats which give the building a homogeneous, yet representative appearance. The dynamically shaped slats create a look in motion. According to the interior function at any given time, the curtain-like shell is open and light, or it can be closed off. The variable transparency allows passers-by discreet glimpses into the sports activities underway within the gym.
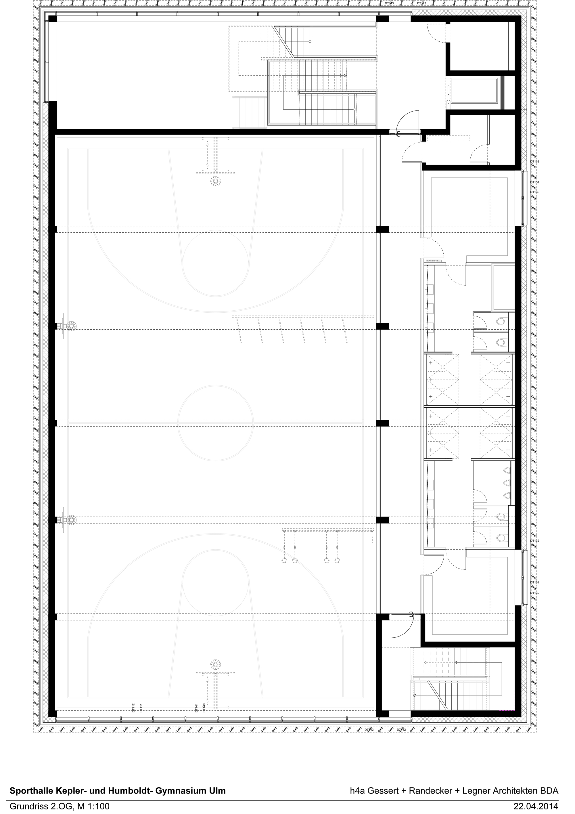
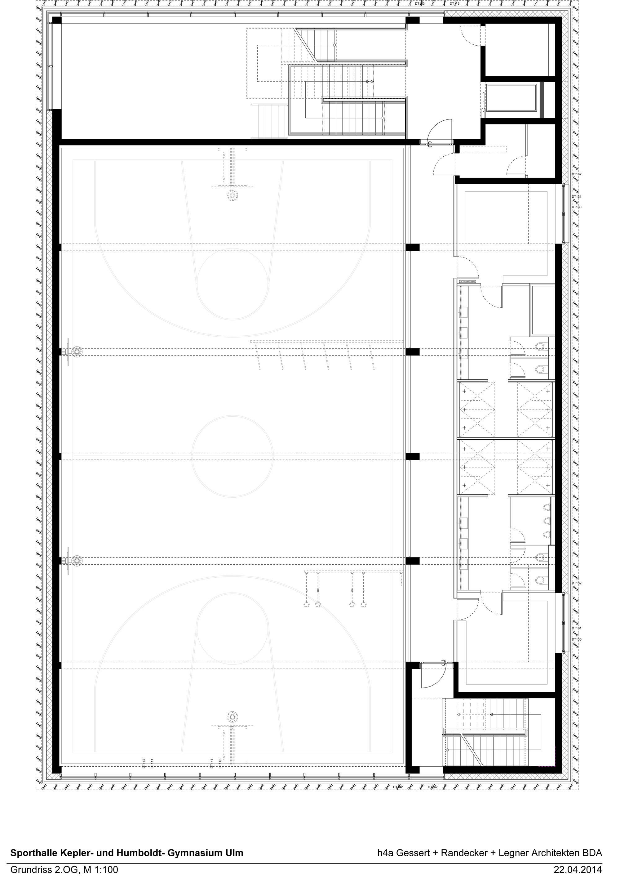
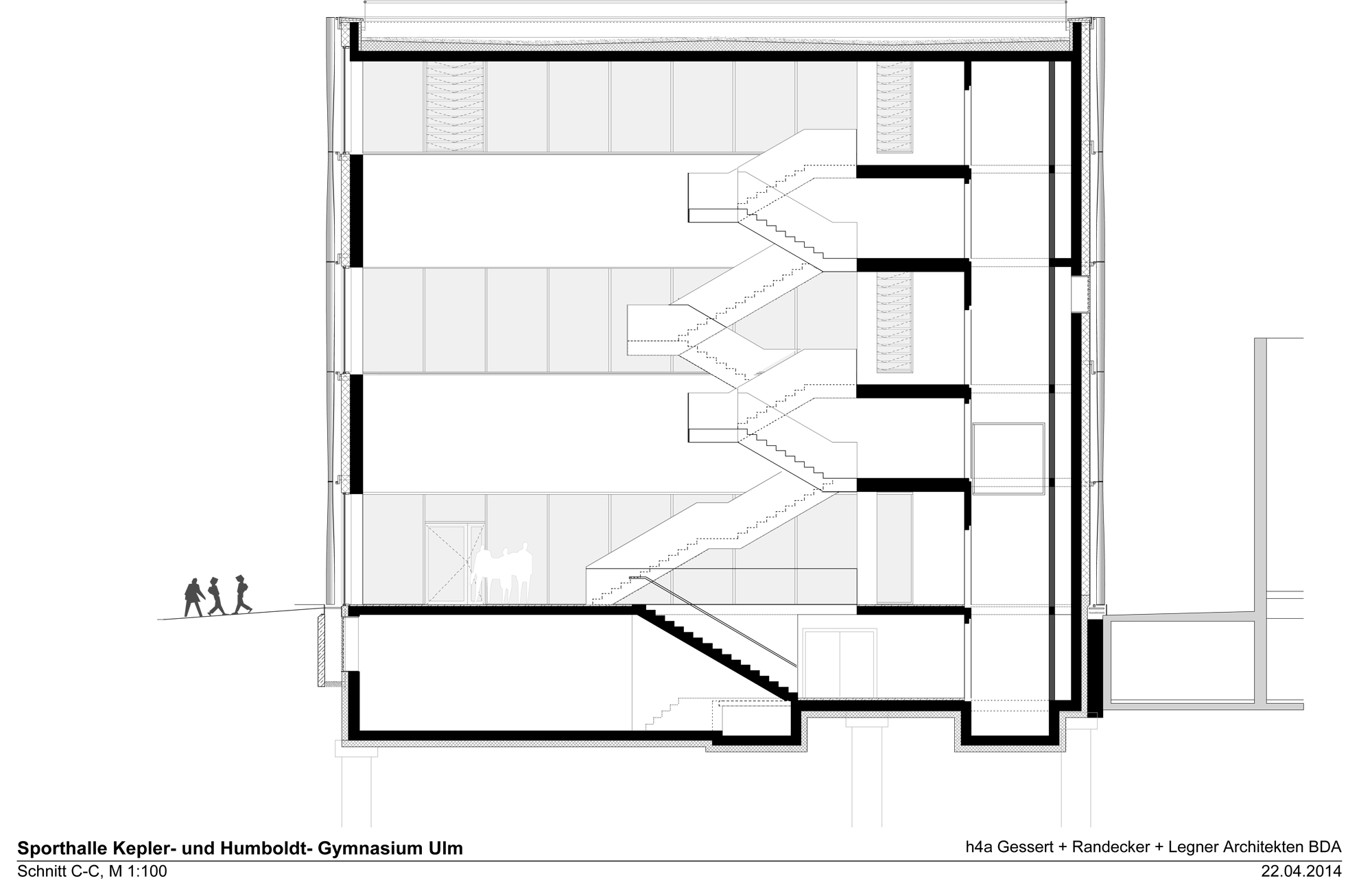
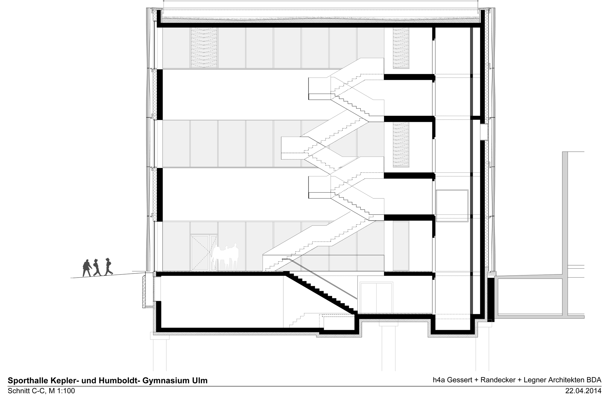
The interior, which features generous spaces and high-quality equipment, is just as impressive as the exterior. Once visitors have entered the gym, they find themselves in a three-storey atrium where a sculptural stairway winds its way up to the top floor. The stairway provides access to all three sports halls, which are stacked on each storey. The locker rooms are accommodated on the mezzanines; galleries offer diverse views of each corresponding hall.
The interior is determined by grey exposed-concrete surfaces and wooden details. The floors of the three sports halls are characterized by various coverings in red, blue or green. Ceiling-high windows flood the halls with daylight, although the slats of the façade add a moving play of light and shade to the floor. The overall result is a building whose interior qualities and urban-planning presence make it stand out. The gymnasium typology does not force it into the mould of a secondary structure. Rather, the structure functions as a self-assertive, public building which will become a lively meeting place for all sports enthusiasts in the next few years.
weitere Informationen:
Gross floor area: 2.695 m2
Competition: 1. Preis 2011
Start of planning: 2012
Completion: 2015


























