A Cultural Greenhouse: Paddenbroek Education Centre by Jo Taillieu Architecten (copy 1)
Photo: Filip Dujardin
In the Pajottenland, a region west of Brussels, orcharding enjoys a long tradition. However, large greenhouses are seldom seen in this region, particularly ones featuring a café and conference rooms where even the local council can meet.
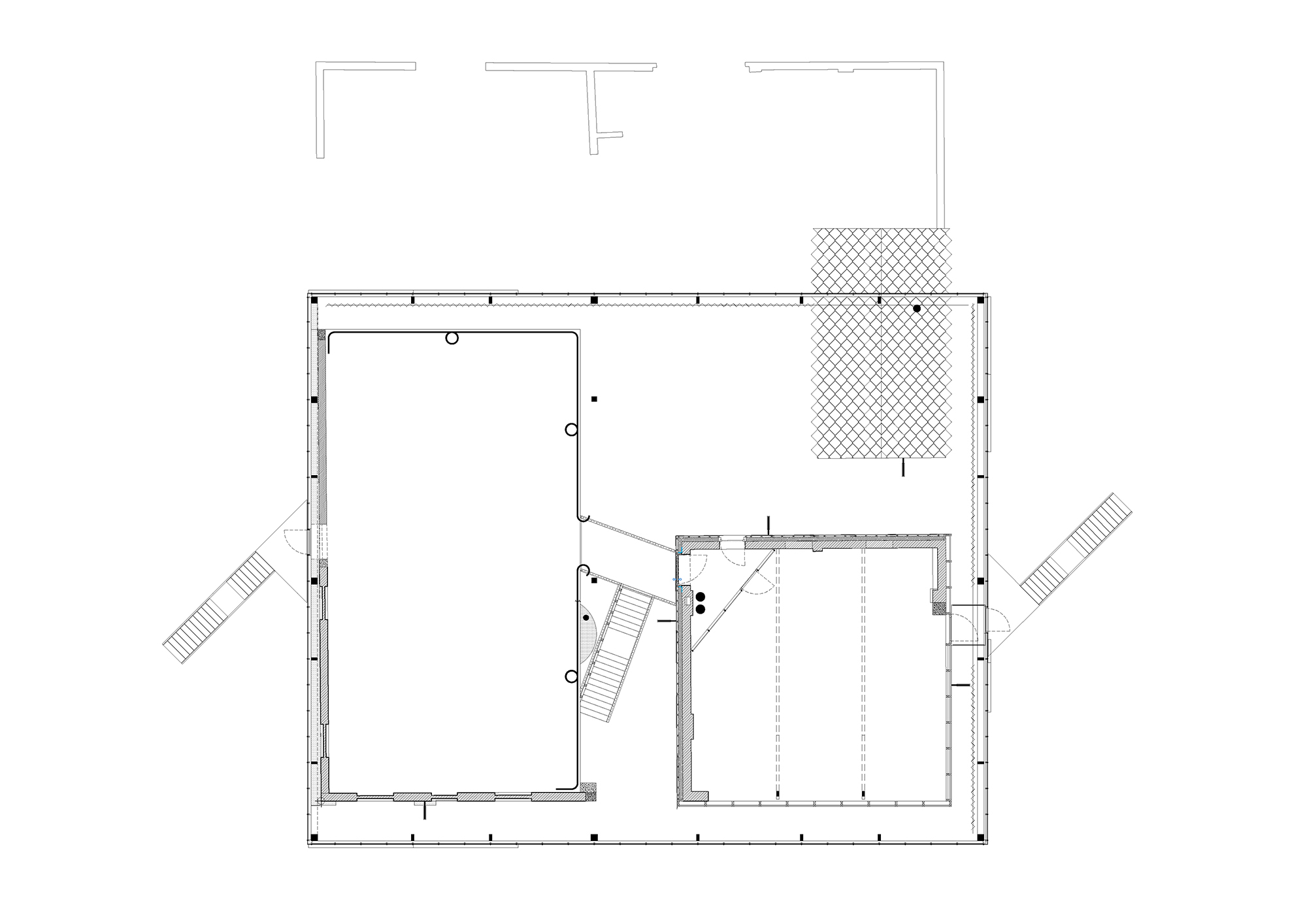
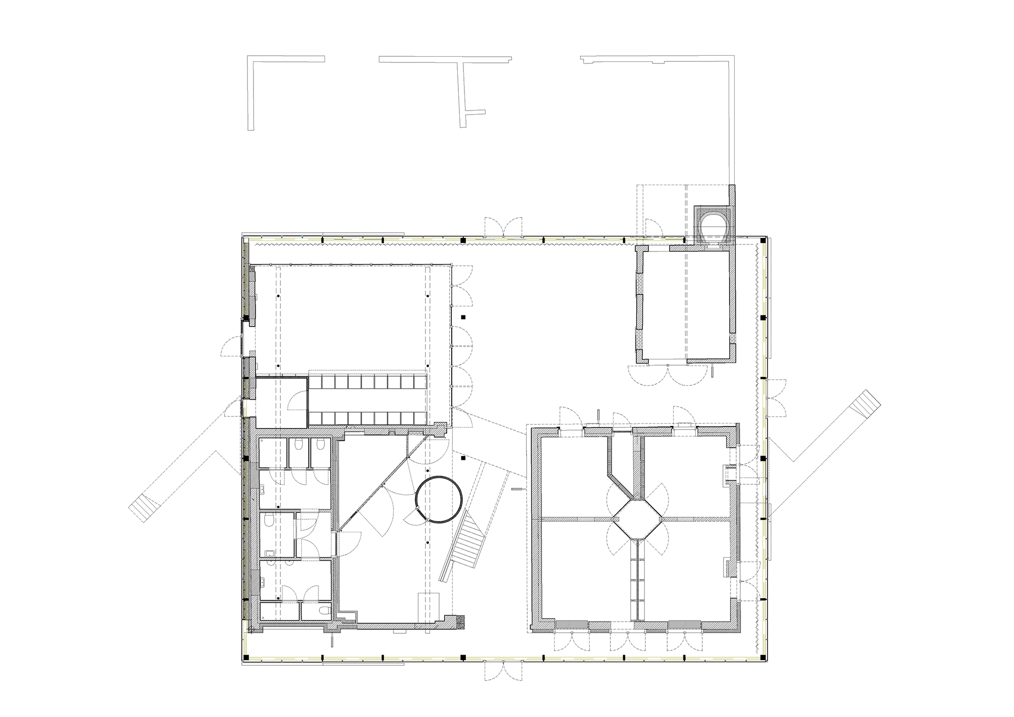
Jo Taillieu Architecten have erected just such a greenhouse structure for the town of Gooik, which numbers 1,800 inhabitants. In fact, they have integrated the remains of an abandoned orchard farmhouse situated around 1 km from the town centre into their design. The Paddenbroek Education Centre serves day trippers and local council meetings, but is above all an attraction for anyone who wants to know more about the surrounding cultural landscape, natural spaces and local agriculture.
The glass building is based on a standard greenhouse construction which has been reinforced to handle the spans, some of which are quite large. The fully glazed north façade of the education centre is also the entrance side of the building. The significantly lower south face opens onto the former farm garden, which still features some low remains of a surrounding wall. A rather curious relic is the old bakehouse, which penetrates the glass façade; the architects have left its dilapidated south side exposed to the elements.
Inside the hall, the brick walls of the old farmhouse remain visible to a large extent: they have been stabilized with supporting panels and ring beams of reinforced concrete. Moreover, these walls have been insulated, for in contrast to the “houses within the house”, the large space beneath the glass construction is not heated and acts as a thermal buffer. Large-scale, diagonally mounted fibre-cement shingles on the gable roofs and upper level of the farmhouse accentuate the patchwork character of the architecture, with which every element has its own life. As before, the open fireplaces on the upper floor of the old farmhouse are a real eye-catcher. Deprived of their function, they now act as objects trouvés in the centre’s conference rooms.
Eine ausführliche Print-Dokumentation finden Sie in unserer Ausgabe DETAIL 6/2021 mit dem Themenschwerpunkt “xxxx“.


















