// Check if the article Layout ?>
A Deceptive Shell: Old Commercial Building with a New Heart in Beijing
Photo: CreatAR Images(Luo Juncai)
The single-storey building with its round arches of stone and shabby red doors has taken on a patina. The collage that presents itself to the street is completed with electricity meters, fire extinguishers and streetlamps in the foreground and rooftop additions and apartment houses in the background. However, after the renovation, this façade is a mere backdrop. The windows are gone; even the roof has been removed. All that remains is a wall whose patina has deliberately been left as it is by the architects. Instead, modern details of transparent bricks give the first hint that new life has moved in behind the façade.
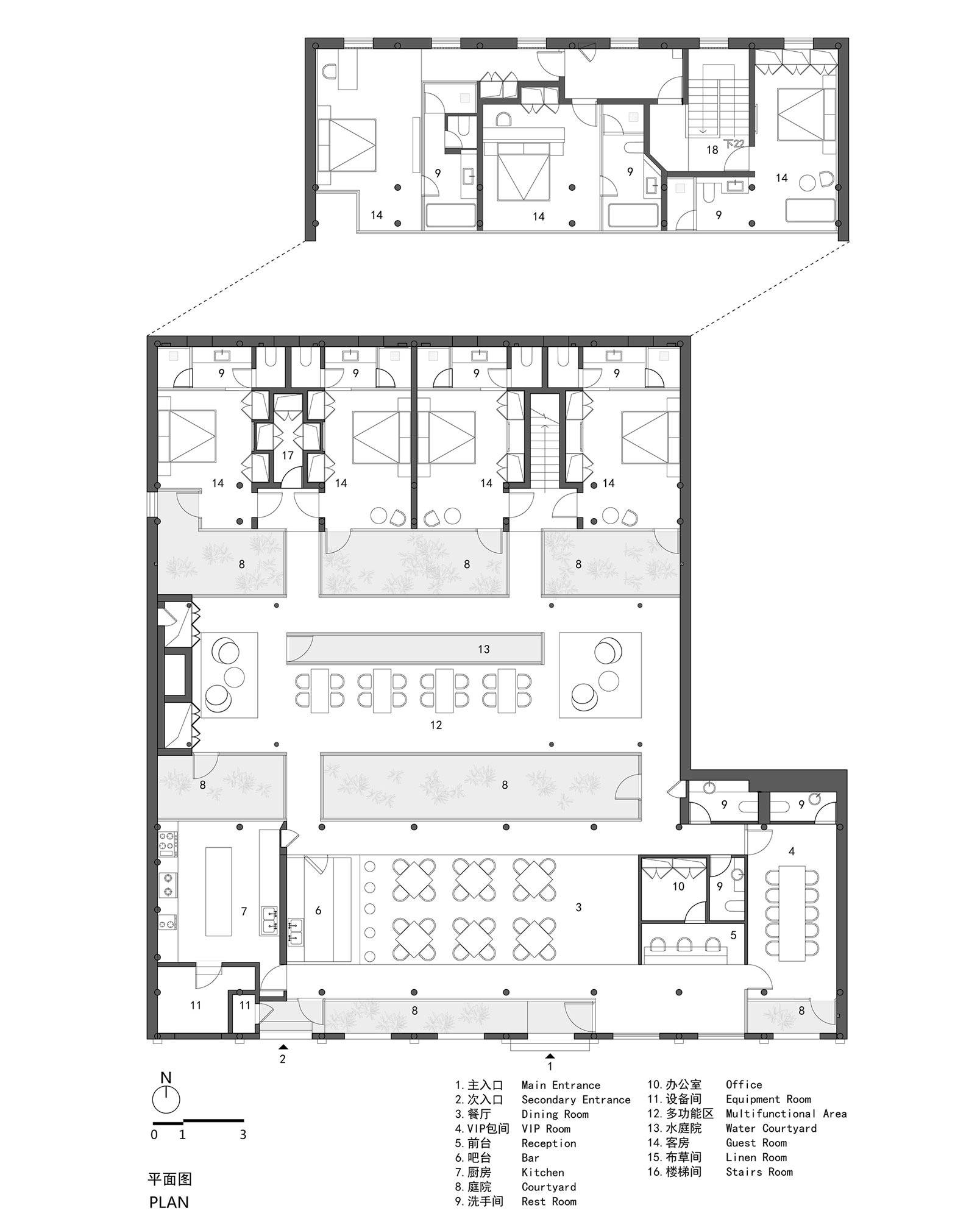
The business office used to consist of a rectangular courtyard delimited to the front and sides by one-storey volumes. Then as now, the rear of the lot was occupied by a two-storey tract. Following the refurbishment by Archstudio, the space is now divided into several zones which become more intimate as guests walk through them. Four narrow, glazed courtyards which run parallel to the road filter the traffic through the building; this inspired the name of the project: Layering Courtyard. The yards are planted with bamboo, glazed on all sides and allow daylight into the interior spaces.
The south side, directly behind the façade, is home to the reception for seven hotel rooms. In the same layer, kitchen, bar and public assembly space are arranged from west to east. The easternmost space is a room for private events. A courtyard spatially closes off this layer. Translucent furniture and polished stainless steel give the multifunctional space, which comes next, a light, almost ephemeral appearance. The multipurpose room is between two courtyards and has a water basin surrounded by glass walls. The many reflective and transparent materials blur the contours of the room.
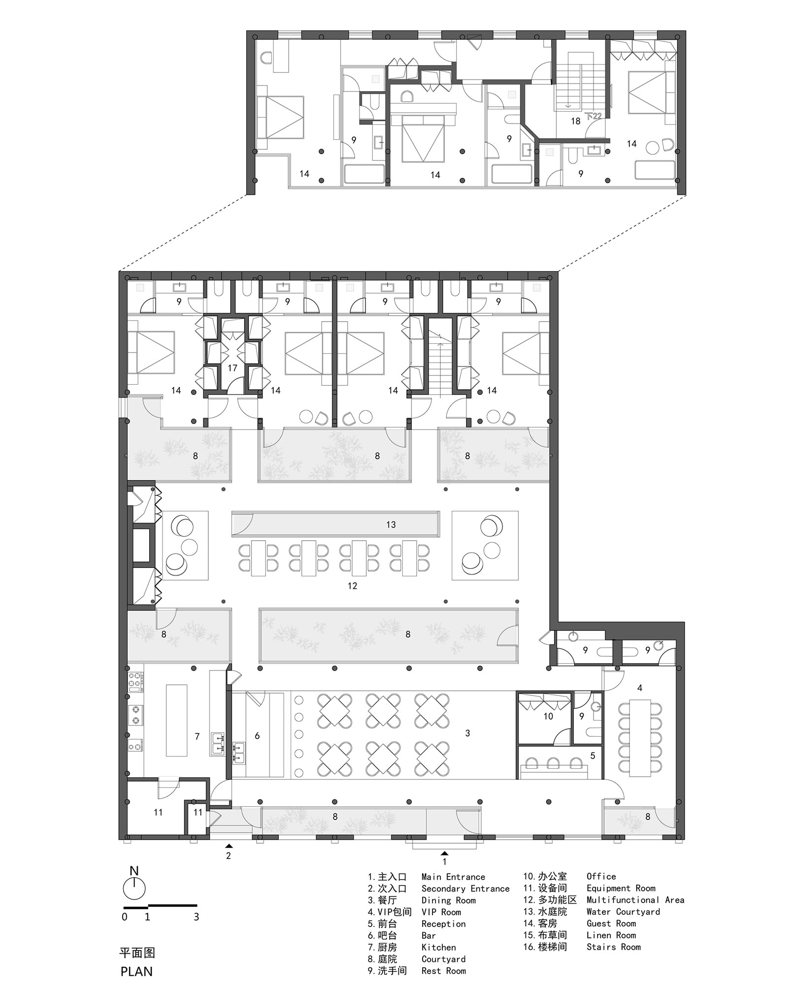
Through the last yard, guests come to the oak-clad corridor and stairways in front of the guest rooms. Each of the four rooms on the ground floor has its own access to the courtyards. The three rooms on the upper floor feature ceiling-high windows that ensure a view over the neighbouring roofs. Furthermore, the architects have preserved the old wooden structure as much as possible so that guests can now sleep under the artistically added roof truss.
The building with the courtyards will be a peaceful haven in the lively Hutong district. The assembly room at the south end is available as a public space for exhibitions or other events.
The business office used to consist of a rectangular courtyard delimited to the front and sides by one-storey volumes. Then as now, the rear of the lot was occupied by a two-storey tract. Following the refurbishment by Archstudio, the space is now divided into several zones which become more intimate as guests walk through them. Four narrow, glazed courtyards which run parallel to the road filter the traffic through the building; this inspired the name of the project: Layering Courtyard. The yards are planted with bamboo, glazed on all sides and allow daylight into the interior spaces.
The south side, directly behind the façade, is home to the reception for seven hotel rooms. In the same layer, kitchen, bar and public assembly space are arranged from west to east. The easternmost space is a room for private events. A courtyard spatially closes off this layer. Translucent furniture and polished stainless steel give the multifunctional space, which comes next, a light, almost ephemeral appearance. The multipurpose room is between two courtyards and has a water basin surrounded by glass walls. The many reflective and transparent materials blur the contours of the room.
Through the last yard, guests come to the oak-clad corridor and stairways in front of the guest rooms. Each of the four rooms on the ground floor has its own access to the courtyards. The three rooms on the upper floor feature ceiling-high windows that ensure a view over the neighbouring roofs. Furthermore, the architects have preserved the old wooden structure as much as possible so that guests can now sleep under the artistically added roof truss.
The building with the courtyards will be a peaceful haven in the lively Hutong district. The assembly room at the south end is available as a public space for exhibitions or other events.




























