// Check if the article Layout ?>
A Double Effect: Day Care and Crèche in Vétroz
Photo: Thomas Jantscher
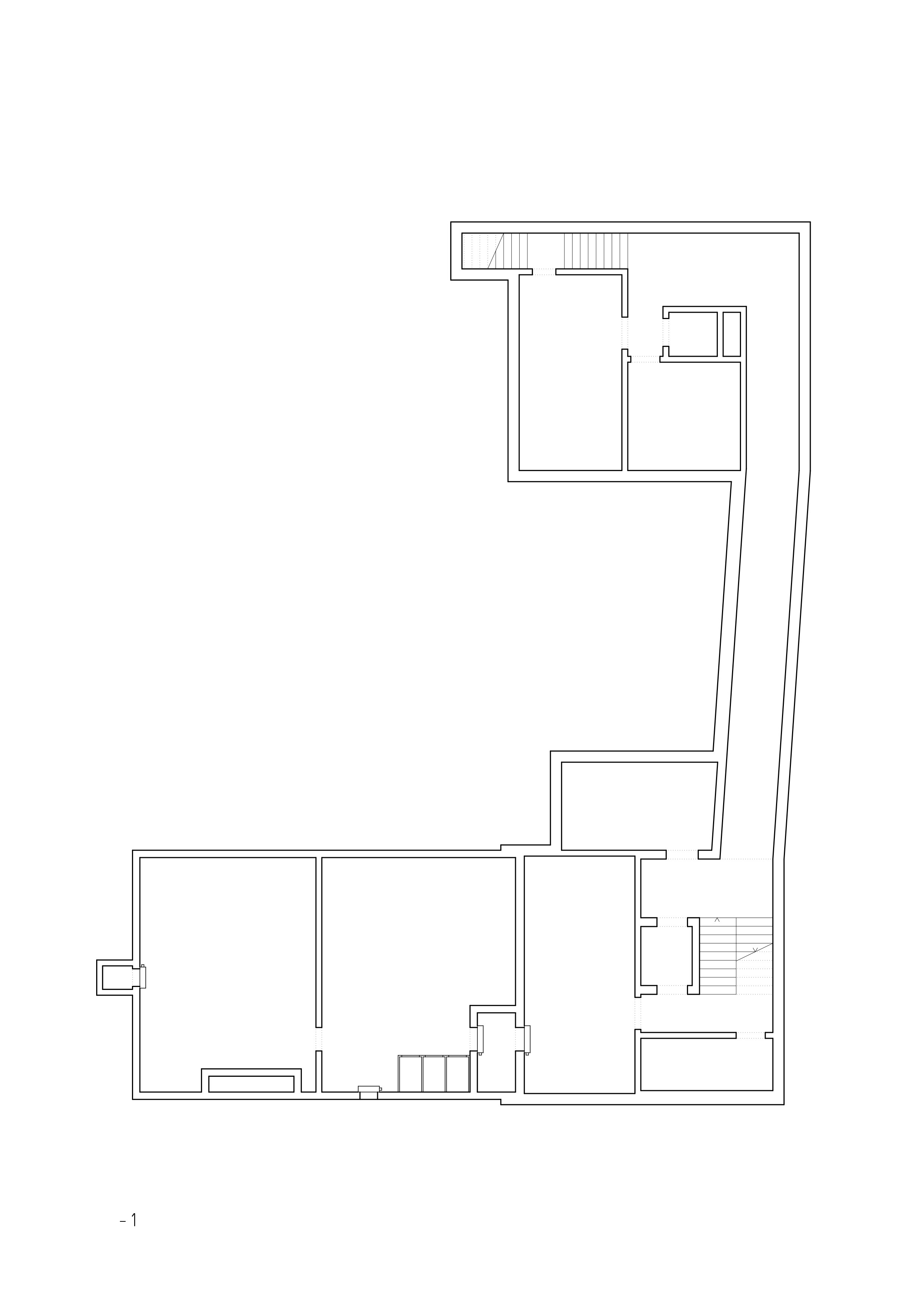
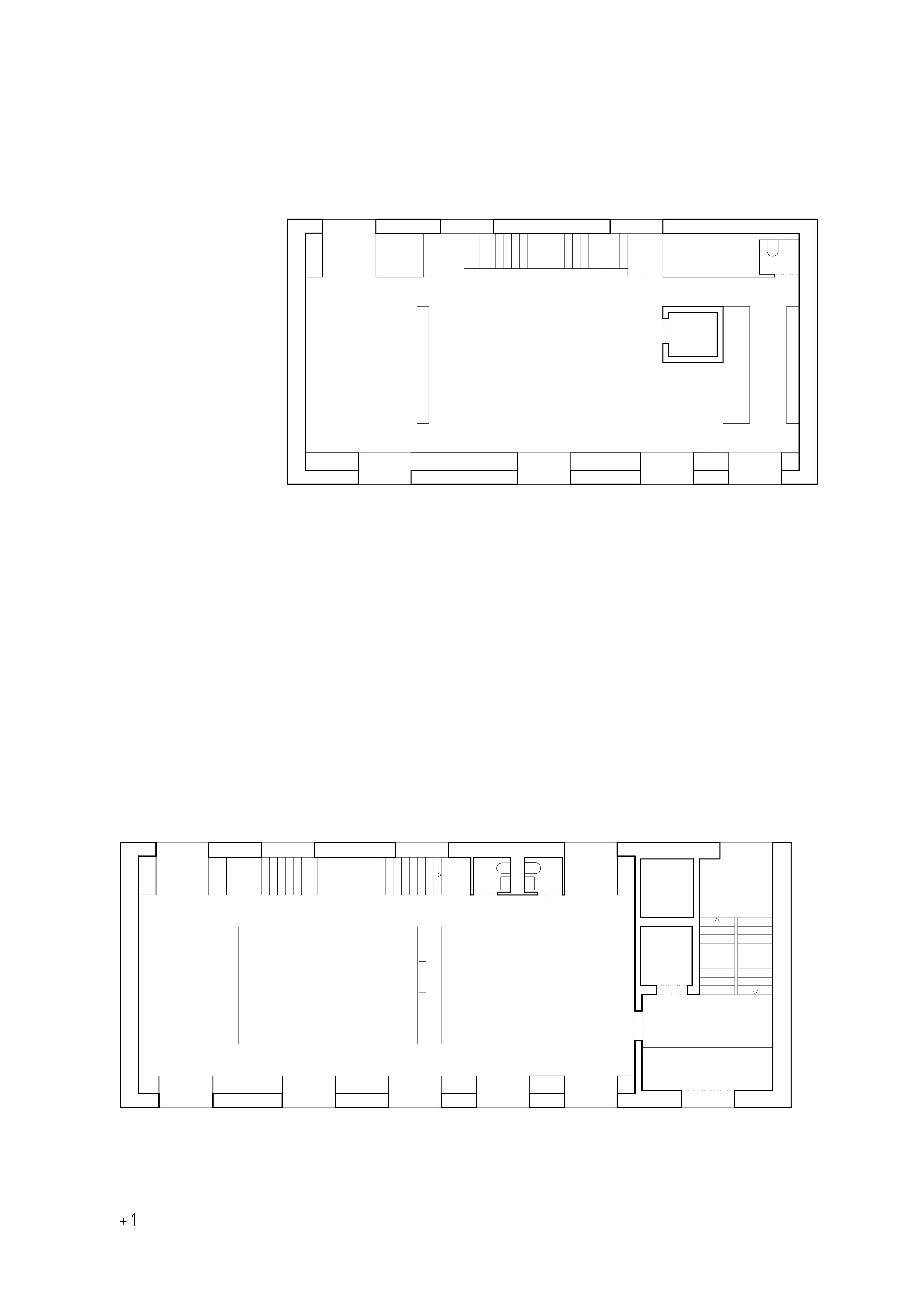
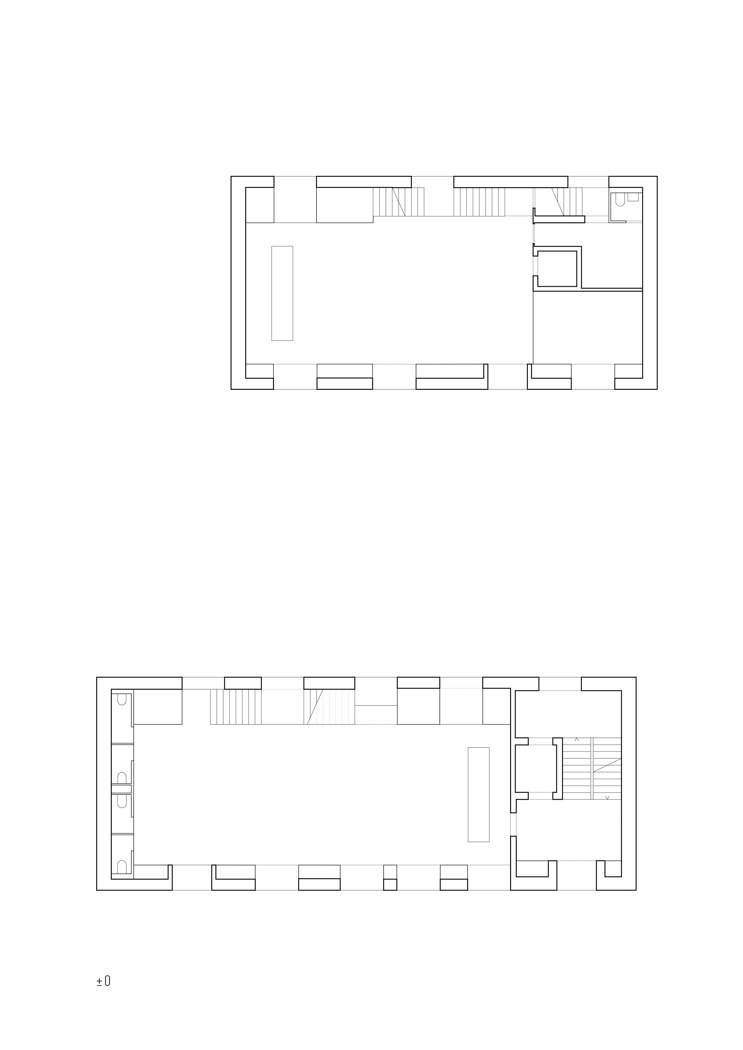
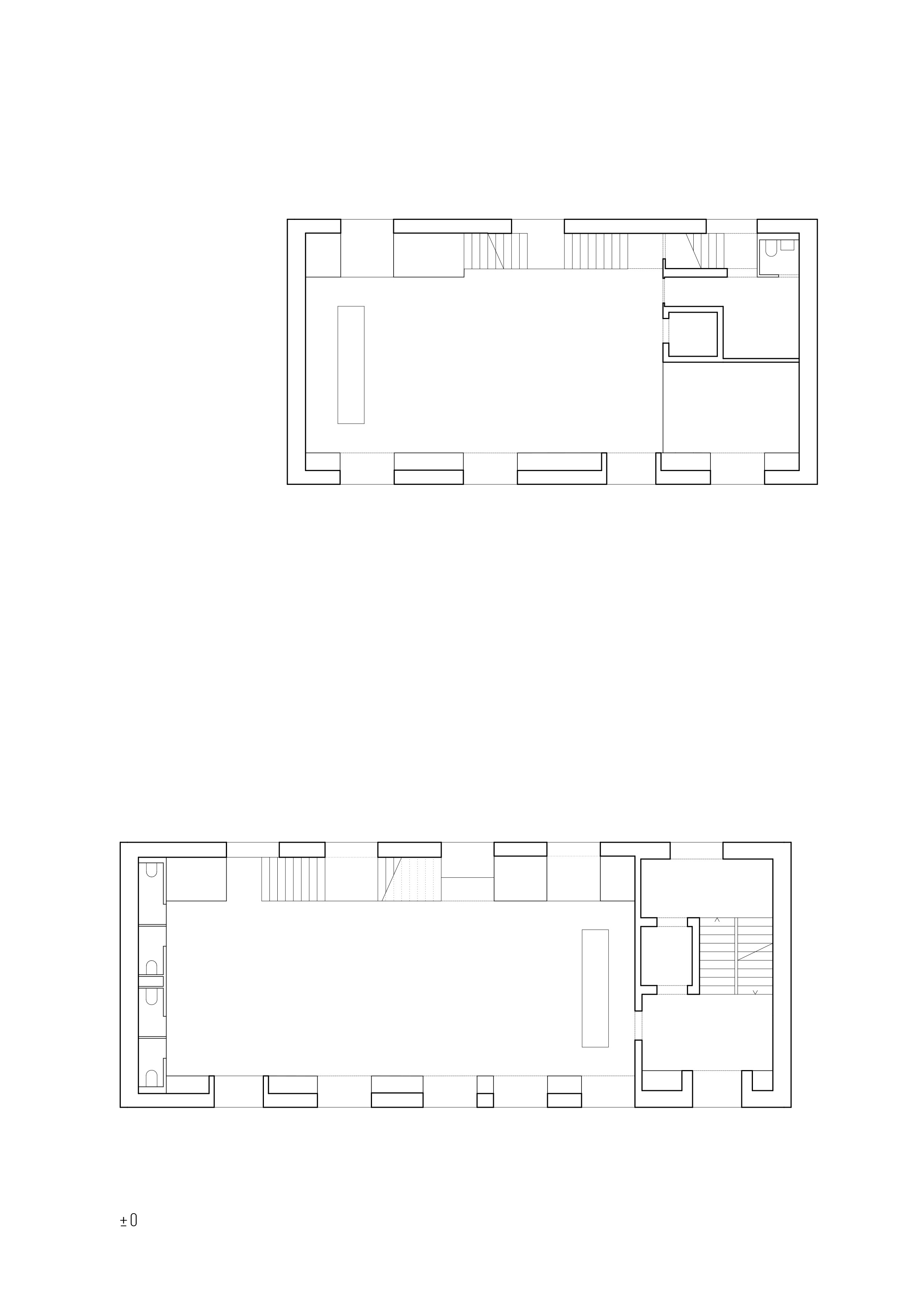
Rather than copying the architectural appearance of its neighbours, this structure, which is divided in two above ground, discreetly takes on the cubature of the other buildings. However, it asserts its individuality with a gleaming, reflective façade. As a spatial mirror, it seems to camouflage itself and reflect the atmosphere of the town. The two volumes are invisibly connected via a heated cellar construction whose main access ramp leads along the edge of the lot to the Rue du College. While the south volume is home to a day-care centre and a hall for newborns, the north building accommodates a crèche for children up to the age of three.
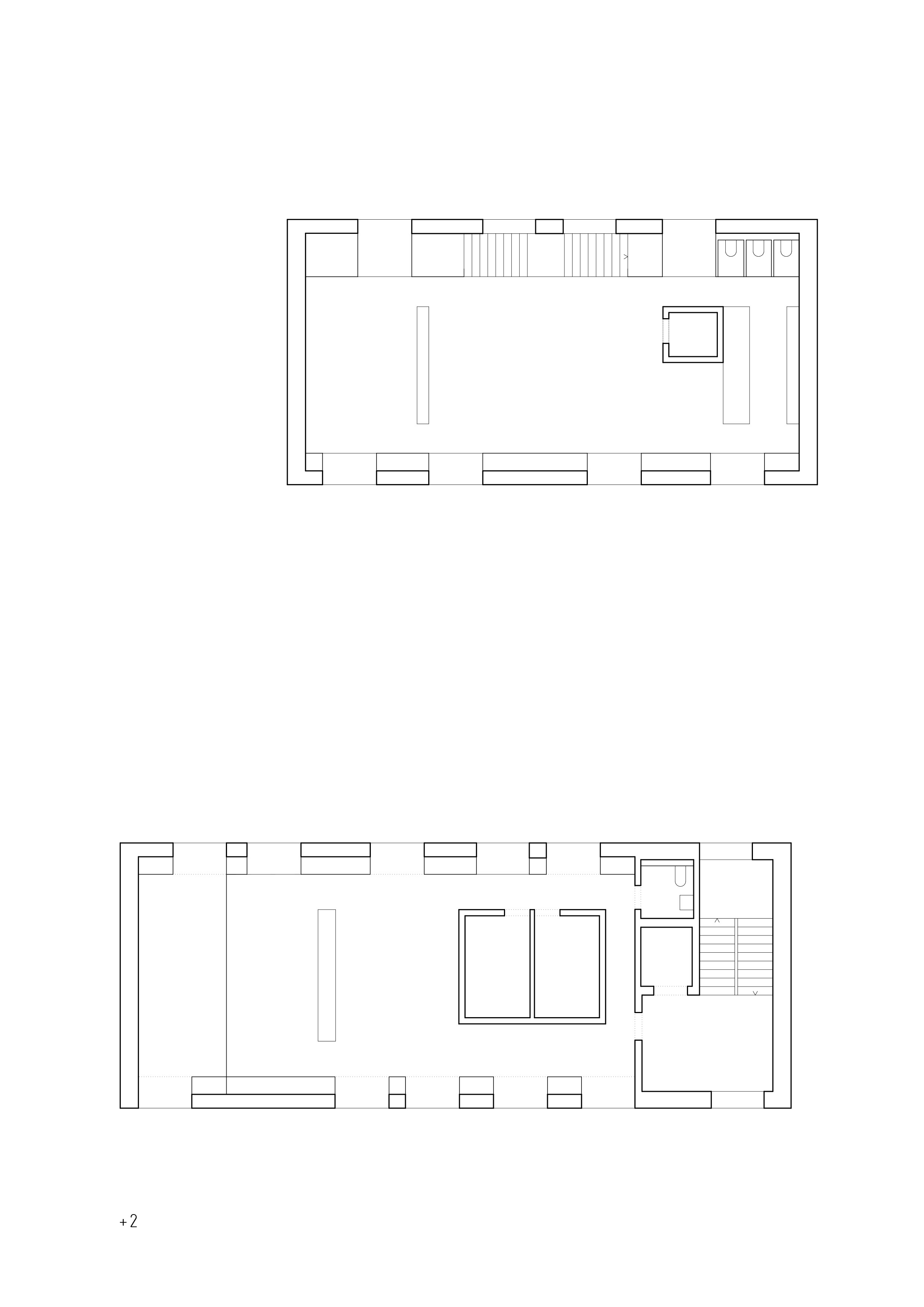
Each of the two buildings is divided into three storeys. The dining rooms and cooking areas are on the ground floor and thus have a direct link to the outdoors. The upper levels are devoted to spaces for play, movement and reading. All the interior spaces are free of support columns and can be used flexibly. Storage areas in the façades reinforce the overall concept and create unobstructed play areas with more exposure to natural light. The playful arrangement of the windows at various heights allows the creative use of the space: even the façade can be “inhabited” by the children.
Along with the staggered arrangement of the grounds and buildings, the private space and use of the various yards seem to be staggered as well. The public yard to the north, which also functions as a front courtyard, a semipublic yard between the two cubatures, which is for the children from the crèche, and another yard to the south for the day-care kids work together to create diverse spatial situations and possible scenarios for use without much interference. Moreover, a parking lot where parents can drop off their children is planned east of the Rue de Moulin. The colours and warm light of the reflective façade remind visitors of sunrises and sunsets in an idyllic landscape. Despite its reflective characteristics and striking self-expression, the façade is nonetheless modest and discreet.
more Information:
Realisation: atelier d’architecture joseph cordonier, lens
Structural engineer: editech sa, sion
hlks engineer: gd climat, sion
Electrical engineer: pierre-étienne roux, bureau d’études électriques sa, sion
Photos: Thomas Jantscher


















