// Check if the article Layout ?>
A Glass Cube with Gills Breathing: University Building in Rotterdam
Photo: Jeroen Musch
For some time now, Erasmus University Rotterdam (EUR) has been working on an ecological redesign for its campus. By 2025, the CO₂ emissions associated with the university’s operations should have dropped by 50%. The long-term goal is a completely climate-neutral campus. Several buildings have already been modernized to higher energy standards; a few have energy contracts.
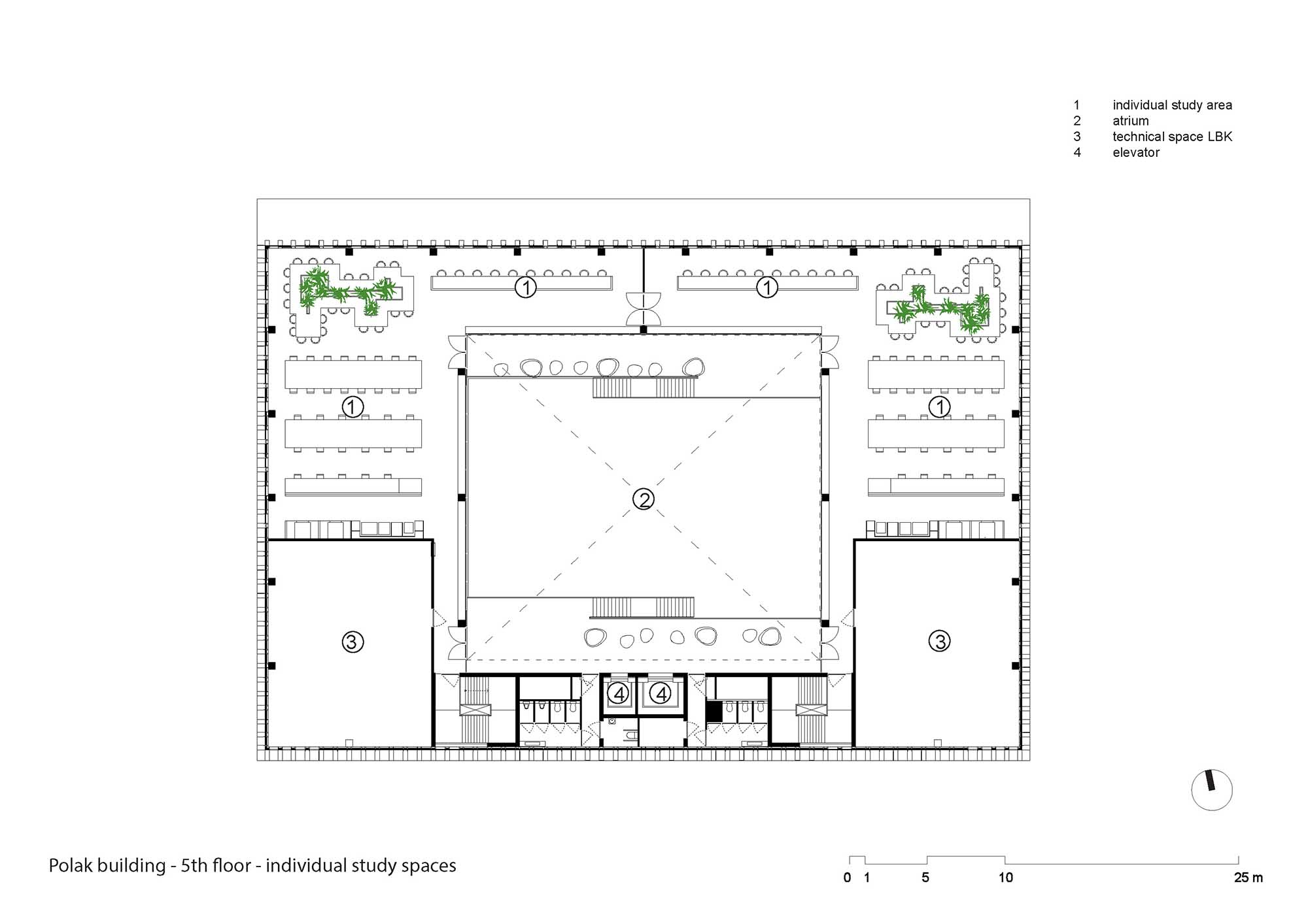
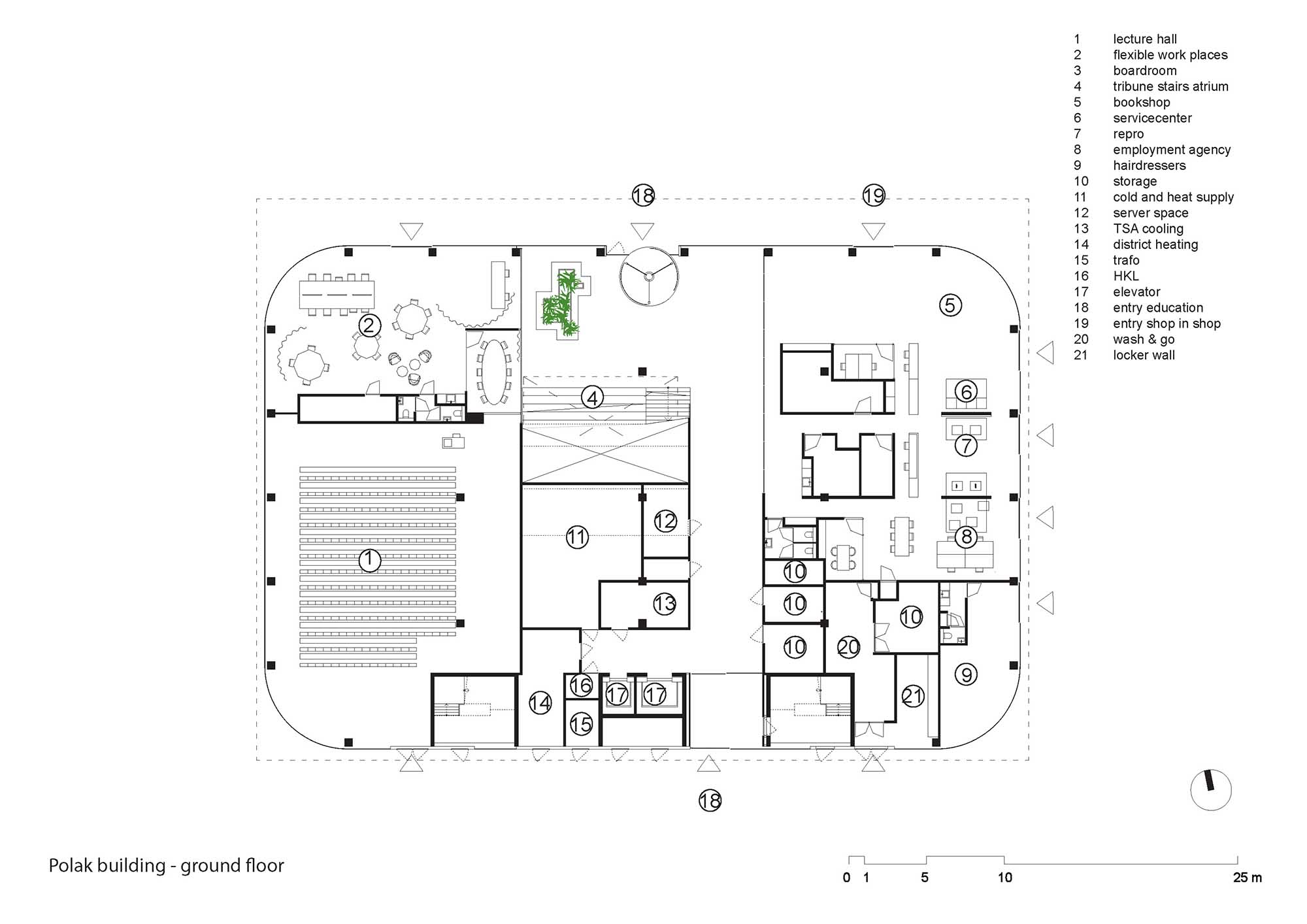
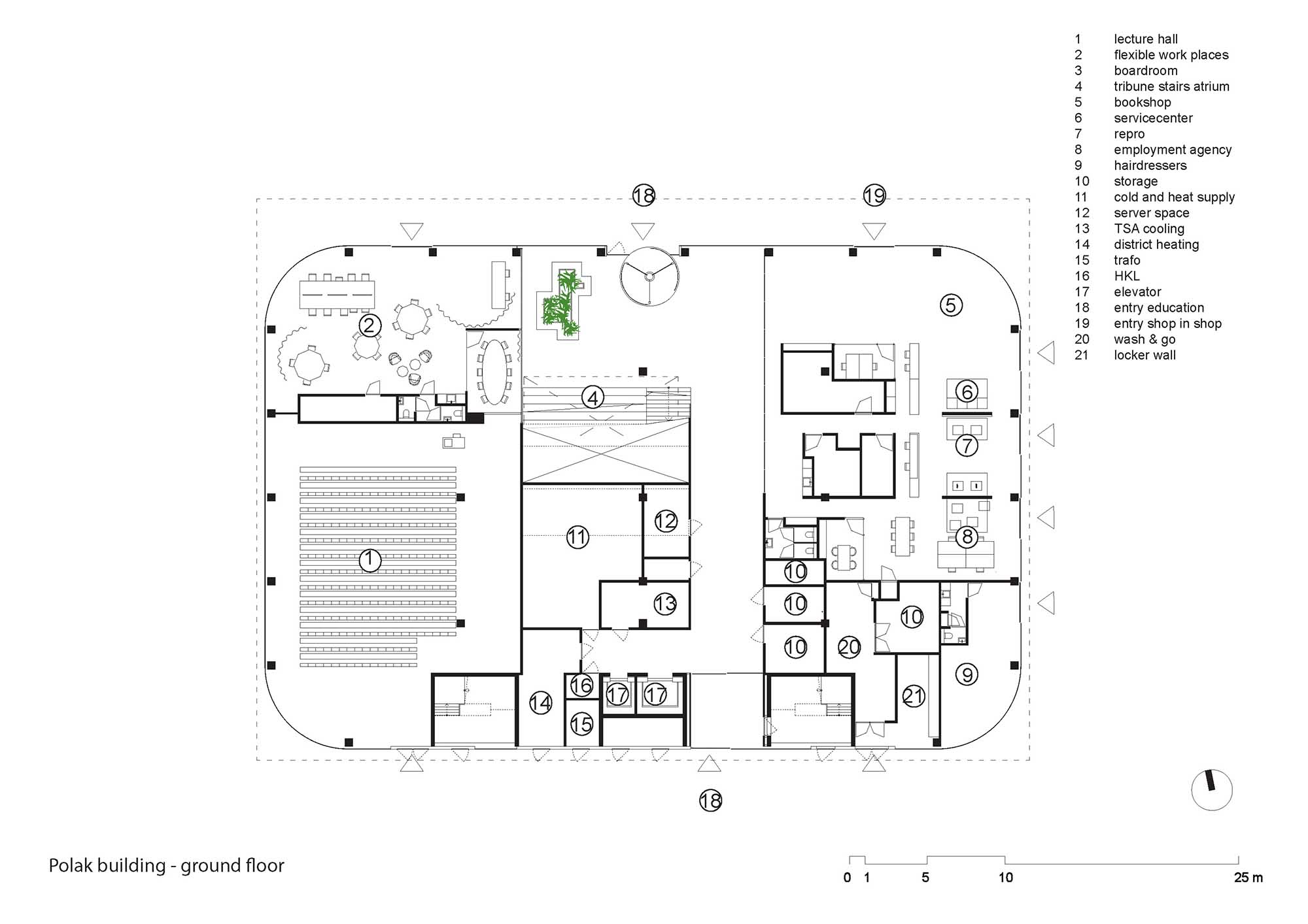
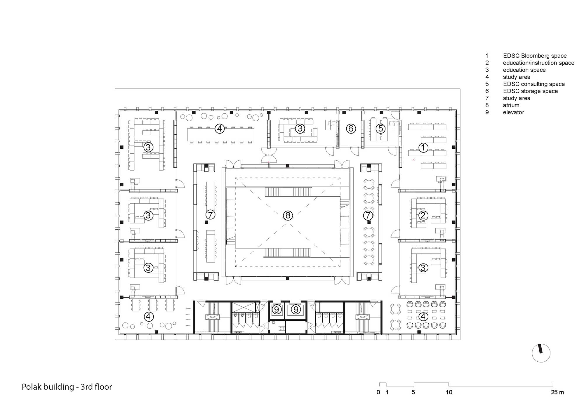
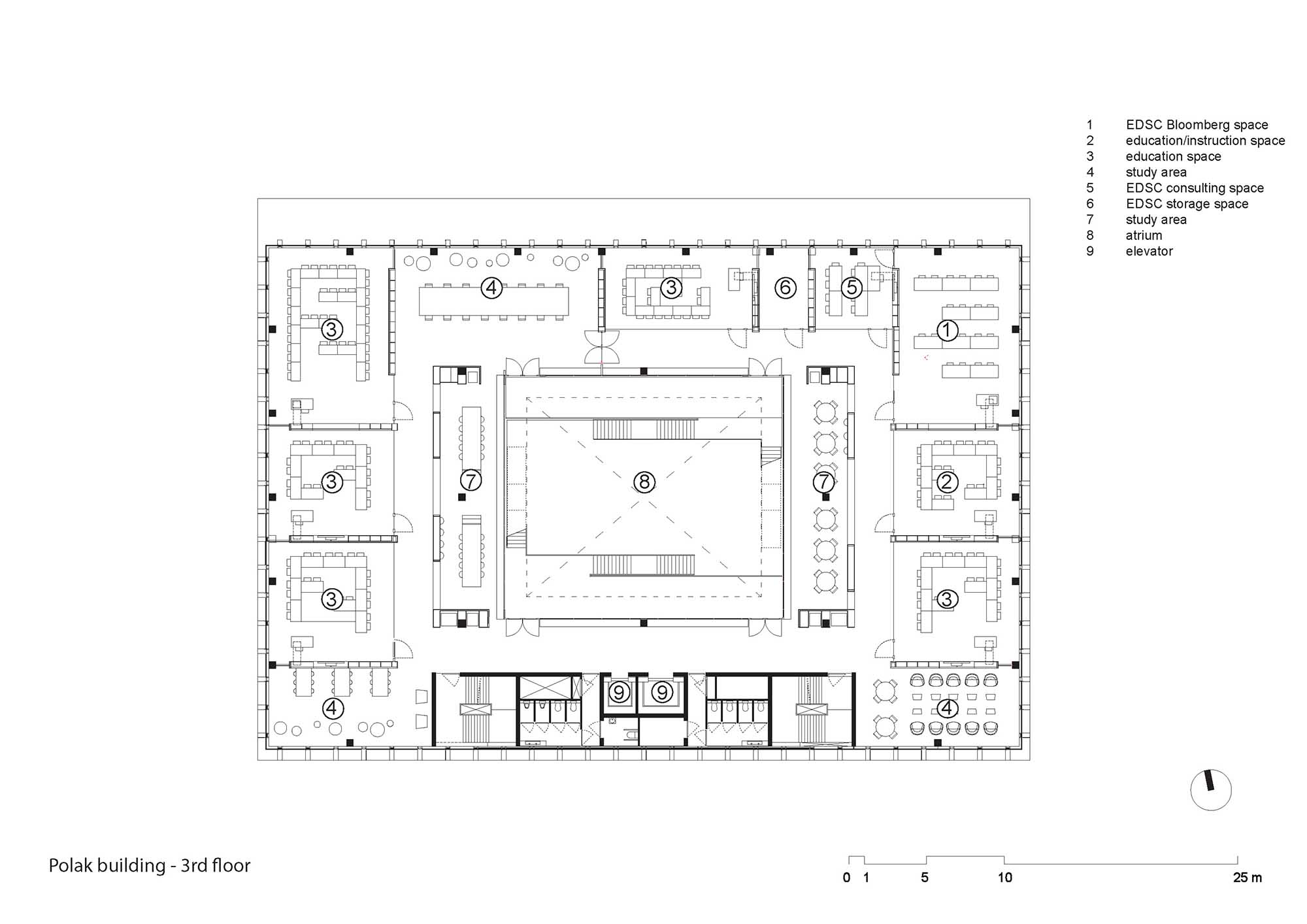
The new Polak Building by Paul de Ruiter is one building block in EUR’s efficiency strategy. The cubic six-storey structure features a plethora of functions: the ground floor is home to a bookshop, a hair salon, a copy shop, a laundromat and a temporary lecture theatre. More than 600 individual work spaces are distributed throughout the upper storeys. The building also accommodates seminar rooms and computer rooms for the Erasmus Data Service Centre, where students can access electronic scientific databanks and publications.
A glass-covered atrium opens over the centre of the new structure. Here, two stairways wind their way up. The balustrades and railings are white; the flooring, window frames and benches are of wood. For the independent learning areas, the architects have put in six-metre-long tables made of oak trees taken from the Rotterdam area. Short transport distances are important to both the architects and their client, as are ecological materials that require no health considerations. All the surface coatings are based on natural resins; the wood is either FSC or PEFC certified.
Energy efficiency took centre stage in the construction of the building’s shell. Solar cells are integrated into the glass roof of the atrium. The façades are triple-glazed and shaded by vertical slats of various depths depending on orientation. The unusual width of these elements arises from the fact that they act as natural ventilation. Their sides have perforations; the backsides have ventilation flaps that can be opened manually.
more Information:
Team: Marlous Vriethoff, Laura van de Pol, Richard Buijs, Marieke Sijm
Civil engineer: Van Rossum, Amsterdam
TGA design: VIAC, Houten
Building physics: LBP Sight, Nieuwegein
Cost planinng: bbn adviseurs, Houten
Elektrical planinng: Croon, Rotterdam
Builder: SMT Bouw, Rosmalen; Palte, Valkenburg
Landscape architect: Juurlink[+], Rotterdam, und Bureau JvantSpijker, Rotterdam
TGA design: VIAC, Houten
Building physics: LBP Sight, Nieuwegein
Cost planinng: bbn adviseurs, Houten
Elektrical planinng: Croon, Rotterdam
Builder: SMT Bouw, Rosmalen; Palte, Valkenburg
Landscape architect: Juurlink[+], Rotterdam, und Bureau JvantSpijker, Rotterdam






















