// Check if the article Layout ?>
A Lantern in the Darkness: Venue for Art near Montréal
Photo: Adrien Williams
The new art centre in Repentigny is part of a larger master plan. It represents the kick-off to the redesign of a meagre, hardly used park. With the planned interventions, the green area will fundamentally change its character and take on cultural institutions with gardens and urban squares. Framed by a network of streets lined with simple bungalows, the project will connect with its immediate surroundings and call to life a place of community.
The architecture of the building combines classical elements with the ideas of contemporary art. The long, flat-roofed cuboid opens onto an expanse of water with a colonnade, showing itself to be as light as it is grounded. A few pillars break out of the strict grid and are placed at a slope, which gives the spaces both inside and out a striking dynamic.
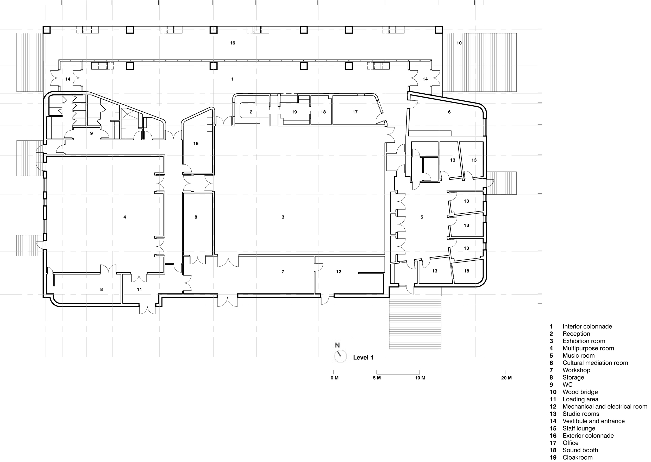
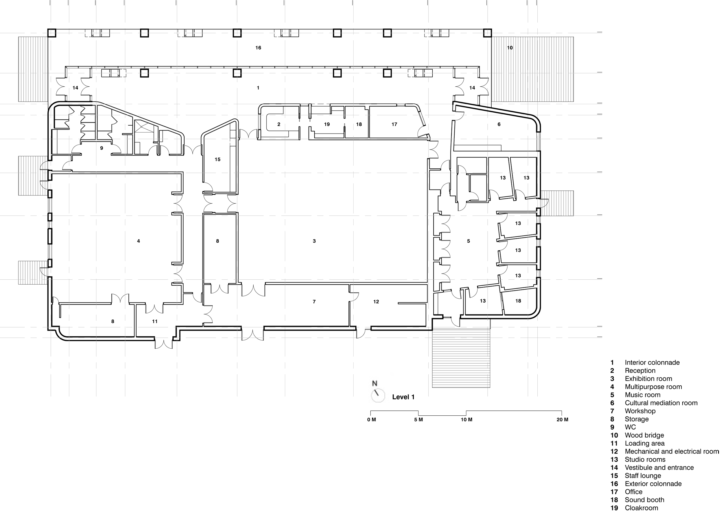
The floor plan joins the areas in various layers. Visitors can decide how far they would like to penetrate the interior of the building, whether they will stroll in the outer corridor, remain among the pillars of the interior space or even pass into the exhibition spaces reserved for art, which are shielded from exterior view. The interior spaces are structured into three multifunctional spatial zones. The gallery along the glazed façade reflects the outer colonnade; the main gallery area concentrates on art. Dance performances and presentations take place in a further space.
Like the interior spaces, the front courtyard invites visitors to amble about. It frames the reflective water surface.
The façades of this expressive structure almost glow. They are clad in polished stainless-steel panels that set the tone for the atmosphere of the entire surroundings. Inside, curved volumes stand in the high space; in contrast to the cold metal, these are clad in wood. In the darkness in particular, the centre attracts the attention of passers-by when it shines from within and illuminates the surrounding park like a lantern. With this signal effect of the art centre, ADCF Architecture have succeeded in making a lively attraction and a striking icon for the entire suburb.
The architecture of the building combines classical elements with the ideas of contemporary art. The long, flat-roofed cuboid opens onto an expanse of water with a colonnade, showing itself to be as light as it is grounded. A few pillars break out of the strict grid and are placed at a slope, which gives the spaces both inside and out a striking dynamic.
The floor plan joins the areas in various layers. Visitors can decide how far they would like to penetrate the interior of the building, whether they will stroll in the outer corridor, remain among the pillars of the interior space or even pass into the exhibition spaces reserved for art, which are shielded from exterior view. The interior spaces are structured into three multifunctional spatial zones. The gallery along the glazed façade reflects the outer colonnade; the main gallery area concentrates on art. Dance performances and presentations take place in a further space.
Like the interior spaces, the front courtyard invites visitors to amble about. It frames the reflective water surface.
The façades of this expressive structure almost glow. They are clad in polished stainless-steel panels that set the tone for the atmosphere of the entire surroundings. Inside, curved volumes stand in the high space; in contrast to the cold metal, these are clad in wood. In the darkness in particular, the centre attracts the attention of passers-by when it shines from within and illuminates the surrounding park like a lantern. With this signal effect of the art centre, ADCF Architecture have succeeded in making a lively attraction and a striking icon for the entire suburb.
Further information:
Staff: Maxime-Alexis Frappier, Joan Renaud, Martin Champagne, Maxime Boiselle, Mathieu St-Hilaire, France Perras, Christelle Montreuil Jean-Pois, Étienne Laplante, Guillaume Pelletier
Planning of stuctural framework: Dubé Beaudry et associés
TGA-planning: WSP
Building company: L’Archevêque et Rivest
Lanscapearchitect: BC2 Area: 1 365 m2
Photographer: Adrien Williams
Staff: Maxime-Alexis Frappier, Joan Renaud, Martin Champagne, Maxime Boiselle, Mathieu St-Hilaire, France Perras, Christelle Montreuil Jean-Pois, Étienne Laplante, Guillaume Pelletier
Planning of stuctural framework: Dubé Beaudry et associés
TGA-planning: WSP
Building company: L’Archevêque et Rivest
Lanscapearchitect: BC2 Area: 1 365 m2
Photographer: Adrien Williams













