// Check if the article Layout ?>
A light and airy look that defies all weathers: Sailing school in Spain
Photo: Montse Zamorano
The sailing school of Sotogrande's Royal Maritime Club is situated between the jetties of a marina and an area of sand where catamarans are beached. This privileged and dominant location makes high demands of the building. For a start, it has to withstand brisk sea breezes, and its architects Héctor Fernández Elorza and Carlos Garcia Fernández were of the opinion that the location called for a landmark. However, as the sailing school did not have very large space requirements, there was the very real possibility it would end up hidden between the masts of the boats. The architects therefore decided to provide the building with a pergola along its complete length to form a shady entrance area and provide it a practical porch. And they also decided to make it higher than the building to lend the sailing school greater presence.
The resulting airy structure makes the building seem to hover above the sand, with connections to the ground only visible at its outer ends, rather like a catamaran. The airiest room – the classroom – is thus in the middle. Opening up to the front and back, this room provides a visual link to the marina and the beach. At the same time glazed sliding doors make it possible to extend the space under the protective pergola and beyond that to the beach.
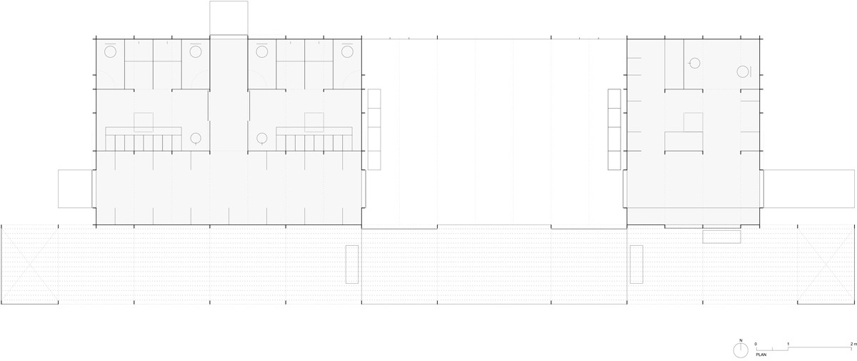
Access is provided from various points, which is essential for the purposes that the sailing school is to fulfil. Along with entrances from the marina and the beach, the sail storage area and the office each have their own access points.
The whole structure owes its weightless look to use of a galvanised steel framework with vertical elements that lend rhythm to the façade while providing support for the willow screening that clads the pergola in part. Excepting the glazed core of the building, the outer skin consists of cement panels reinforced with wood fibres and left a natural colour. These panels are perforated here and there, ensuring a constant exchange of air in the changing rooms and the sail storage area.
The architects have made a video that variously depicts the rocky beach, the joys of sailing, the expressive character of the pergola, the advantages of open-air rooms and the lightness of the structure itself. It is an ode to simplicity.
The resulting airy structure makes the building seem to hover above the sand, with connections to the ground only visible at its outer ends, rather like a catamaran. The airiest room – the classroom – is thus in the middle. Opening up to the front and back, this room provides a visual link to the marina and the beach. At the same time glazed sliding doors make it possible to extend the space under the protective pergola and beyond that to the beach.
Access is provided from various points, which is essential for the purposes that the sailing school is to fulfil. Along with entrances from the marina and the beach, the sail storage area and the office each have their own access points.
The whole structure owes its weightless look to use of a galvanised steel framework with vertical elements that lend rhythm to the façade while providing support for the willow screening that clads the pergola in part. Excepting the glazed core of the building, the outer skin consists of cement panels reinforced with wood fibres and left a natural colour. These panels are perforated here and there, ensuring a constant exchange of air in the changing rooms and the sail storage area.
The architects have made a video that variously depicts the rocky beach, the joys of sailing, the expressive character of the pergola, the advantages of open-air rooms and the lightness of the structure itself. It is an ode to simplicity.
Further information:
Associates: Javier Mengibar, Miguel Ángel Palencia, María Concepción Pérez Gutierrez
Construction time: Januar - Juni 2013
Area: 145 m²
Costs: 75000 € Photos: Montse Zamorano
Construction time: Januar - Juni 2013
Area: 145 m²
Costs: 75000 € Photos: Montse Zamorano
RCM Sotogrande / hfe+c-gf from c-gf on Vimeo.





















