A Loosened Façade of Corten Steel: Museum of Troy near Çanakkale
Foto: Emre Dorter
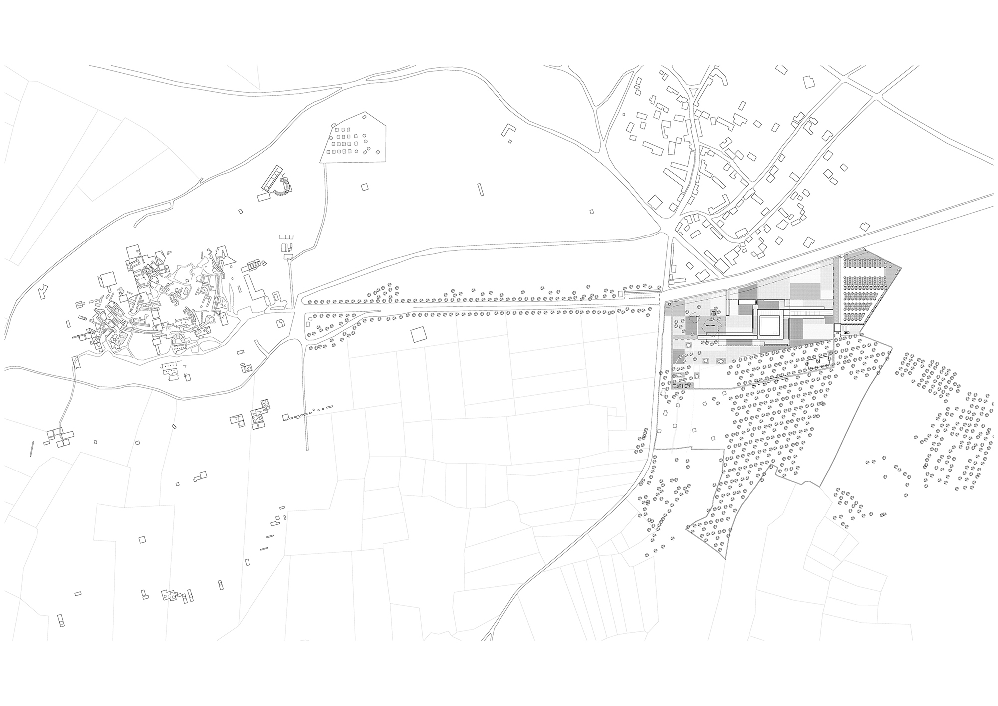
The archaeological site of Troy, located in northwestern Turkey, was declared a Unesco World Heritage site in 1998. Experts are divided on whether the city was of any significance beyond the region, or whether its greatness was merely a figment of Homer’s imagination. Nonetheless the grounds, which feature artefacts from 4,000 years ago, draw many visitors. These archaeological finds can now be exhibited in the Museum of Troy, designed by Istanbul’s Yalın Architectural Design, and the eventful story can be depicted in a chronological narrative.
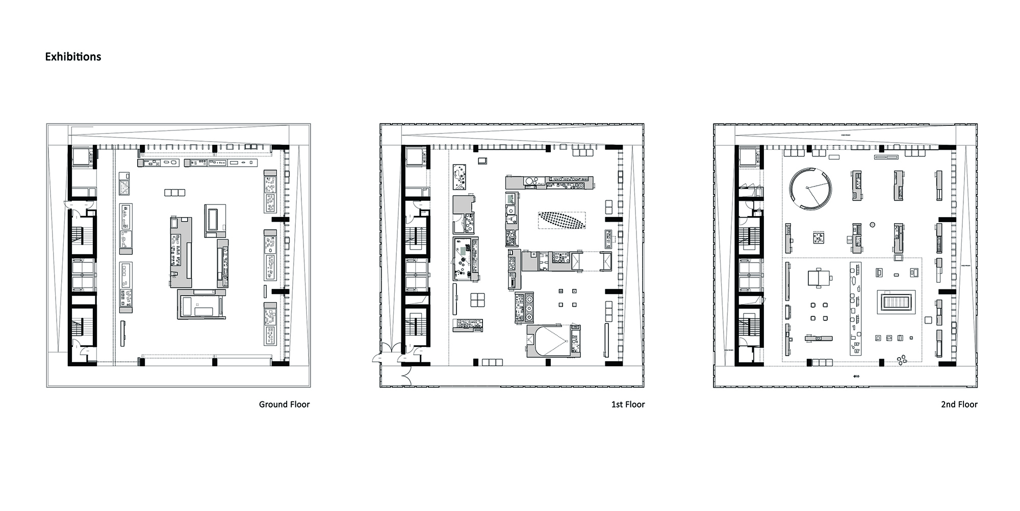
This narrative has been conceptually implemented in the form of a ramp that runs through the building. First, visitors and employees are led underground, where the building services and museum foyer are located. The exhibition spaces in the monolithic cube may characterize the museum’s outer appearance, but its 2,000 m² comprise only a small part of the 11,000 m² of total museum space. On the lowest level, it is possible to walk around the base of the building, which rises through the glass ceiling. It is clad with bands of Corten steel which alternate with strips of glass. This pattern is interrupted by a few horizontal window bands which reveal the view over the nearby archaeological site.
The striated façade can be perceived from inside the museum as well. On the path through the exhibition, visitors are meant to feel as if they were inside an “excavated artefact”, according to Yalın Mimarlık. The formation of rust on the building’s shell represents both the long lapse of time and the connection of past and present in the history of Troy. The way through the cube leads upwards via the ramp and through the exhibition, which tells of the early cultures of the Troad and of Troy in the Bronze Age, as well as of the current state of the excavations. On the rooftop terrace, visitors will be amazed as they overlook the area of Troy and other landscapes described in the Iliad.




















