// Check if the article Layout ?>
A Monolith Steeped in History: Franz&Sue Design Museum Building
Foto: Christian Flatscher
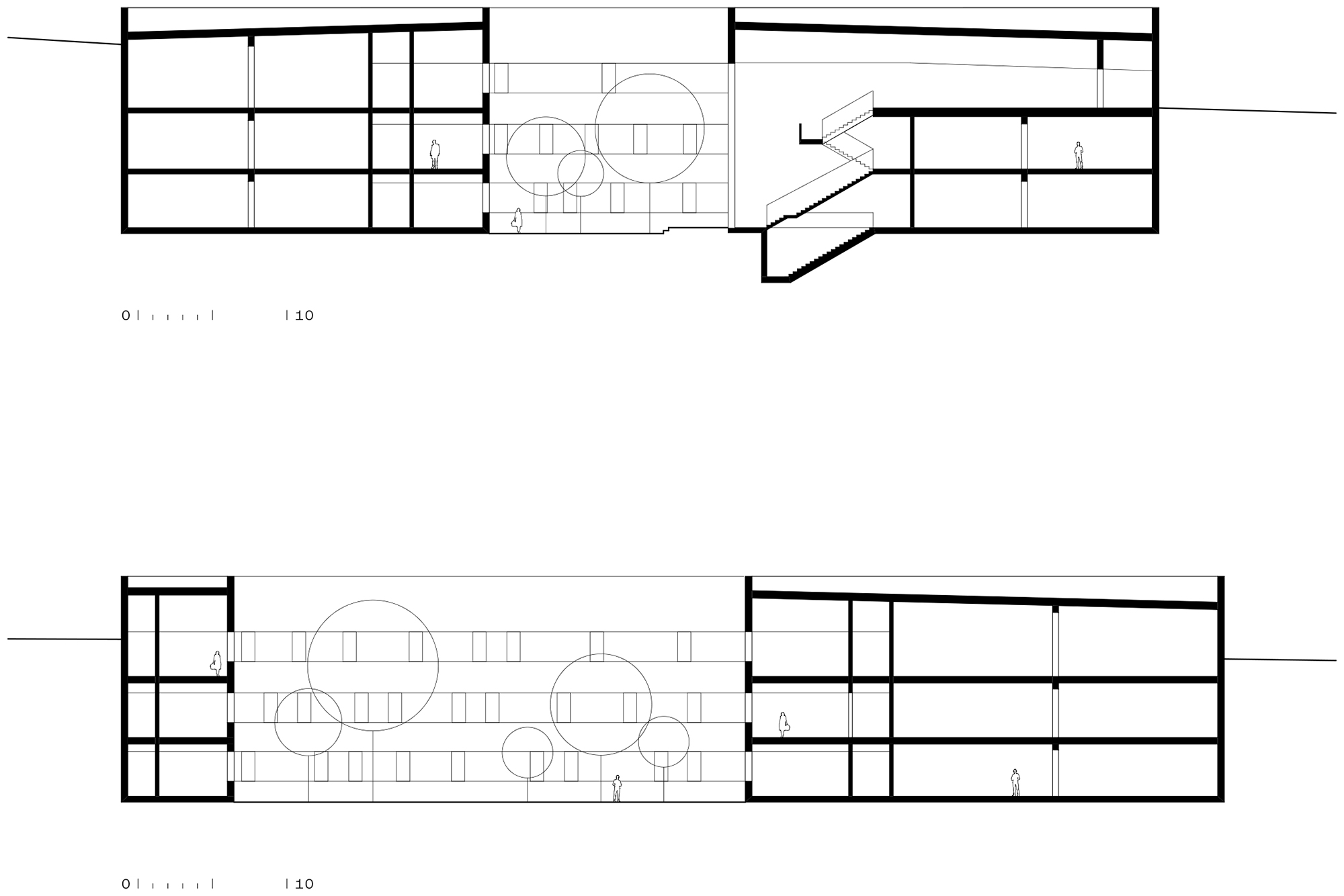
The floor plan of the building is nearly square. With its slightly decentralized positioning, the sleek monolith relaxes the rectangular inner courtyard. This is completely enclosed by the building mass and remains hidden from outside view. This collection and research centre gives little away of its true size. Like an iceberg, about two-thirds of its surface are located underground. Only the top storey can be seen from outside; the slight slope of the land makes this appear as if it were also buried in the ground. In fact, the rear side of the exposed portion of the building is only 2 m high. The subterranean spread is made necessary by the climatic requirements for the architecture as determined by the depot area of the extensive collection. Indeed, the structure serves as storage for several million objects of art and cultural value; these are extremely sensitive to fluctuations in temperature and humidity. The constant conditions that prevail underground offer the perfect frame for the objects and make more complex climate-control technology superfluous.
Set against an impressive Alpine panorama the building withdraws, leaving the impression of diffidence. The façade design accentuates the monolithic character of the collection and research centre. Clad entirely in anthracite-coloured, fibreglass-reinforced Fibre C concrete panels, the shell represents technological progress; this is expressed by means of its materiality. The indentations, which make the façade look as if it had once stood under mortar fire, give the building a particular look which speaks of an eventful past. The small craters are copies of the oldest exhibit in the collection: a hand axe. They transfer part of the research that takes place within to the building to the outside. There are few openings in the façade. The centre interacts with its surroundings only via ventilation elements, logistics and the main entrance to the south.
Inside, the spatial program is organized by a ring-like structure on all three storeys. Starting from outside, there is first the collection, which covers around 7,800 square metres, followed by a circular access area, then the building’s office and studio spaces. The studios, along with the private courtyard, create a pleasant working atmosphere. The bright atrium extends over all levels; its bands of windows provide the interior spaces with sufficient daylight. Otherwise, the surfaces here are clad in wood, which contrasts with the reserved look of the exterior view. The functional arrangement is oriented towards the work processes, which ensures the most efficient conditions for employees. Short paths, extensive light and a pleasant working atmosphere make this collection and research centre an attractive place. The material and colour concept for the interior spaces consists of a combination of grey exposed-concrete surfaces and red details.
Set against an impressive Alpine panorama the building withdraws, leaving the impression of diffidence. The façade design accentuates the monolithic character of the collection and research centre. Clad entirely in anthracite-coloured, fibreglass-reinforced Fibre C concrete panels, the shell represents technological progress; this is expressed by means of its materiality. The indentations, which make the façade look as if it had once stood under mortar fire, give the building a particular look which speaks of an eventful past. The small craters are copies of the oldest exhibit in the collection: a hand axe. They transfer part of the research that takes place within to the building to the outside. There are few openings in the façade. The centre interacts with its surroundings only via ventilation elements, logistics and the main entrance to the south.
Inside, the spatial program is organized by a ring-like structure on all three storeys. Starting from outside, there is first the collection, which covers around 7,800 square metres, followed by a circular access area, then the building’s office and studio spaces. The studios, along with the private courtyard, create a pleasant working atmosphere. The bright atrium extends over all levels; its bands of windows provide the interior spaces with sufficient daylight. Otherwise, the surfaces here are clad in wood, which contrasts with the reserved look of the exterior view. The functional arrangement is oriented towards the work processes, which ensures the most efficient conditions for employees. Short paths, extensive light and a pleasant working atmosphere make this collection and research centre an attractive place. The material and colour concept for the interior spaces consists of a combination of grey exposed-concrete surfaces and red details.
Further information:
Team: Corinna Toell, Joseph Suntinger, Arnim Dold, Wolfgang Fischer, Theresa Wauer, Susann Murtezani, Diana Nemeth, Eveline Leichtfried
















