A New Building and an Addition: Rammed-Earth House and Rooftop Extension in Falkensee
Foto: Gui Rebelo
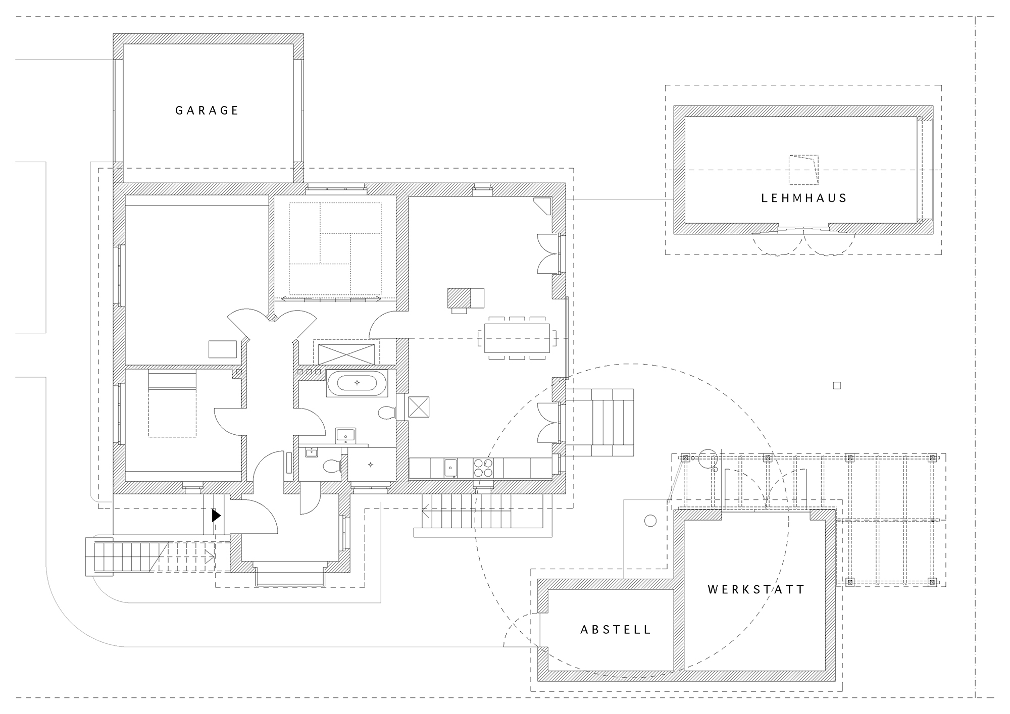
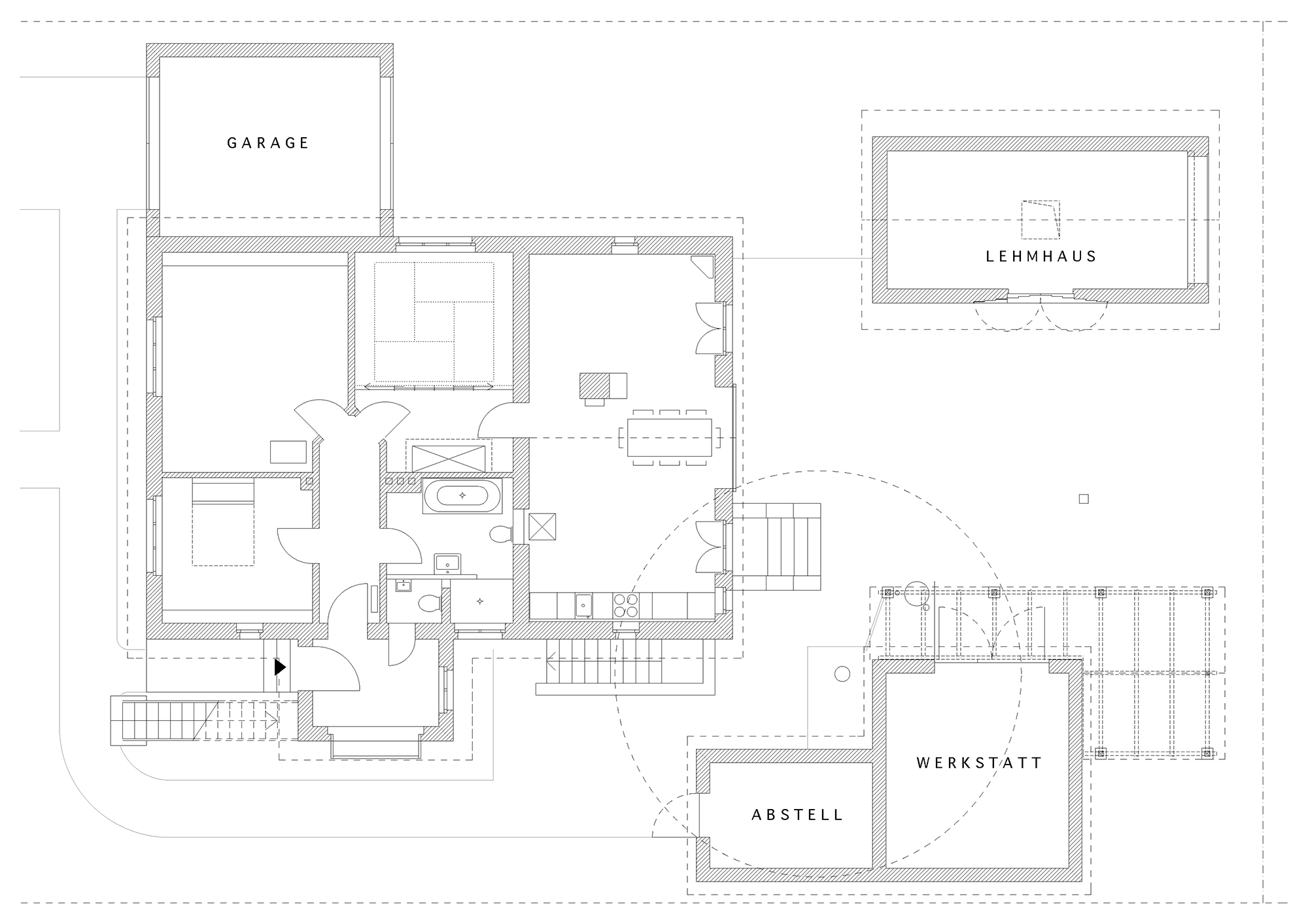
Zusammen mit dem Architektur- und Ingenieurbüro ZRS und dem Lehmbauwerk widmet sich Legge der Realisierung eines Hauses im Garten, das als wandelbarer Raum unterschiedlich genutzt werden kann und von oben bis unten aus Lehm besteht. Die Maße umfassen 8 x 4 m bei 3 m Höhe. Eingefasst in eine traditionelle Holzschalung werden die 32 cm dicken Außenwände des Stampflehmbaus in mühsamer Handarbeit aufgebaut. Vorgefertigte Lehmplatten mit einer Schicht Opus Caementitium, einer Art Betonmischung, die bereits die alten Römer verwendeten, ermöglichen den Einsatz des Naturwirkstoffs bis unter den Giebel. Ein aufgesetztes Dach komplettiert das kleine Häuschen. Dieses legt sich als Metall-Holzkonstruktion über den Bau und schützt den Stampflehm, losgelöst von der tragenden Struktur, vor Regen. Vier Öffnungen in der Hülle verbinden den Innenraum mit der Natur. Neben der Holztüre als Eingang gibt es ein zentrales Oberlicht, sowie eine großflächige, tief gelegte Verglasung und ein kleines Bullauge – beide zum Garten hin orientiert. Der Raum mit den Lehmwänden lädt mit seiner ruhigen, fast spirituellen Energie zum Innehalten ein.
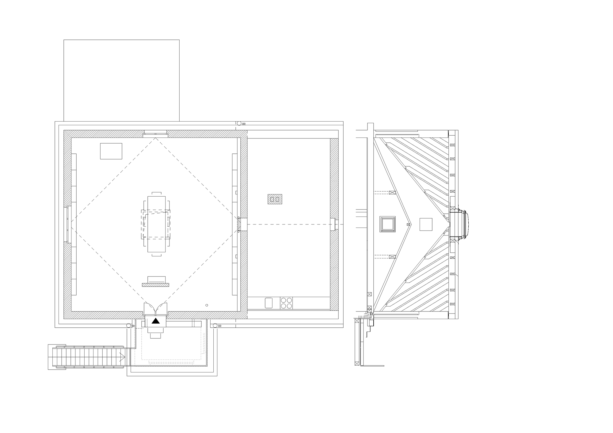
Den zweiten Teil des Projekts bildet die Aufstockung und Erweiterung des bestehenden Wohnhauses um einen großen Atelierraum. Das Tragwerk des neuen Daches realisiert Gereon Legge in Zusammenarbeit mit Konrad Lösch. Die auffällige Dachform des Ausbaus beschreibt der Architekt selbst als „Viergiebelkrone“: Dreieckige, rot gedeckte Dachflächen fallen von einem Rhombus, der den oberen Abschluss bildet, zu vier Seiten hin ab. Dazwischen ziehen sich die ebenfalls dreiecksförmigen Giebel nach oben. Die Konstruktion ermöglicht einen großen, stützenfreien Raum im Inneren, mit viel Platz zur kreativen Entfaltung. Fenster in alle Himmelsrichtungen und eine Dachluke ermöglichen Ausblicke nach draußen und bringen reichlich Tageslicht in das Atelier. Der Naturwerkstoff darf auch hier nicht fehlen. In Form von Putz verleiht der Lehm den Ziegelwänden ein neues, frisches Aussehen.

















