// Check if the article Layout ?>
A New Lobby Look for the Bank of Slovenia
Photo: Miran Kambič
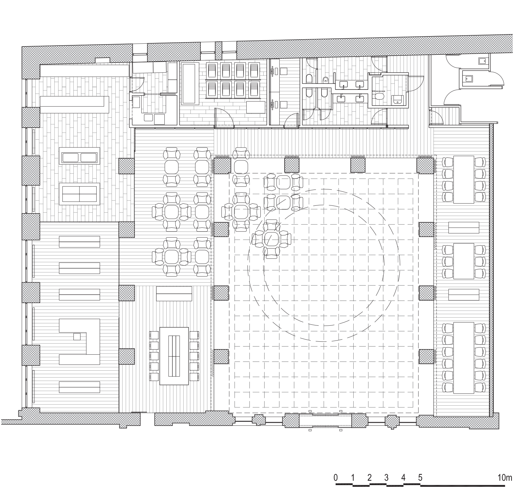
This concept for the renovation of the central lobby of the Bank of Slovenia was designed in a student workshop at the Faculty of Architecture in Ljubljana. SADAR + VUGA subsequently realized the project in close cooperation with the student design team. Before the renovation, the publicly accessible lobby looked like an ordinary, single-function banking hall with wickets and a post room. A programmatic, spatial reconstruction has transformed the main foyer space into a multifunctional room that will be used primarily by the bank’s employees. On the one hand, a relaxed working environment will promote better communication among the bankers; on the other, the newly designed room can also be used for official events.
There is a club-like ambience in the niches, which can be visually delimited from the main space by means of a curtain. A library and a small self-serve bar have been placed in the south end of the lobby and separated from the main area with a glass wall. Three meeting rooms are located on the opposite side. The lobby space is furnished with easy chairs developed expressly for this project.
There is a club-like ambience in the niches, which can be visually delimited from the main space by means of a curtain. A library and a small self-serve bar have been placed in the south end of the lobby and separated from the main area with a glass wall. Three meeting rooms are located on the opposite side. The lobby space is furnished with easy chairs developed expressly for this project.








