// Check if the article Layout ?>
A Pattern of Mirroring Tiles: MAIIAM Contemporary Art Museum in Chiang Mai
Photo: Soopakorn Srisakul
In Chiang Mai, a city in northern Thailand, the all(zone) architecture studio has transformed an old warehouse into a museum for contemporary art. The renovation created an exhibition space for a significant private collection of Thai and regional art as well as a cultural centre that offers activities for the city’s residents as well as visitors and tourists. A particularly striking characteristic of the renovation is the building’s new main façade, which consists of many small mirrors.
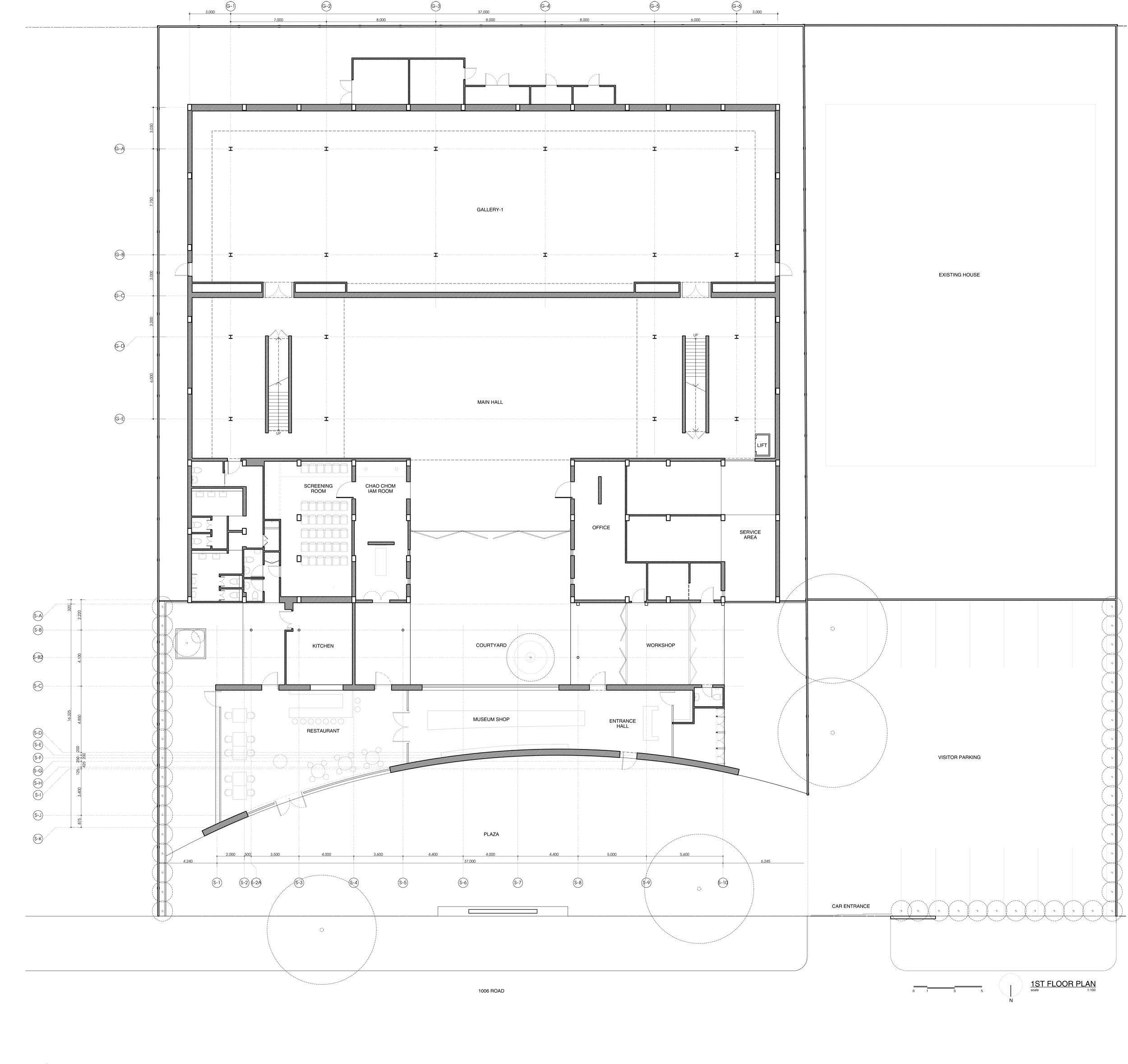
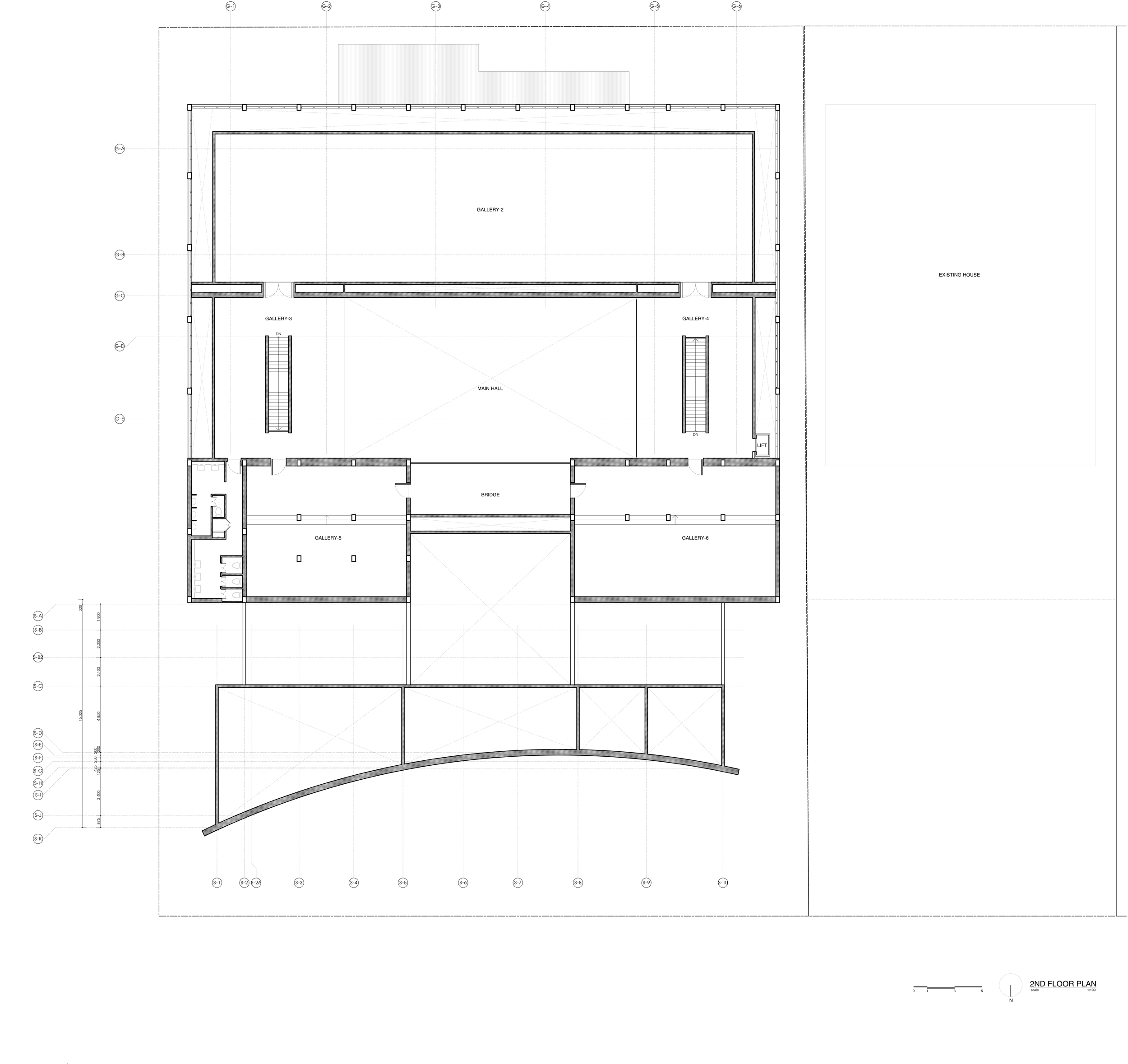
The architects from all(zone) who were involved in the project have succeeded in renovating and reworking the existing storage hall to create a dynamic space for art and culture over 3,700 m². Even the floor plan shows the joining of the two programs: museum and cultural centre. In the renovated warehouse, the exhibition spaces are located over two storeys, while a new structure set in front houses the cultural centre. The separation of the two different areas can clearly be read from outside: the new structure forms the curved main façade, which is decorated with small, reflective mirrors.
The difference, and the interplay, between the two areas stands at the centre of the architects’ concept for the form and materials. The industrial character of the former warehouse contrasts with the bright, purist exhibition spaces. The indirect lighting of the artworks is achieved by the addition of light wells. The interior space, which is rather sober, is combined with an expressive, nearly extravagant façade. The use of the mirrors on the façade refers to the traditional architecture of Thai temples. In this case, the mirrors create a modern tile pattern that gives the curved façade the appearance of being slightly folded. The unusual façade reflects its surroundings – the building becomes part of the landscape and is integrated into it.
The project comes alive in the stark contrast of existing and new, interior and exterior, shell and contents. The existing building is enhanced by this contemporary interpretation of local influences.
The architects from all(zone) who were involved in the project have succeeded in renovating and reworking the existing storage hall to create a dynamic space for art and culture over 3,700 m². Even the floor plan shows the joining of the two programs: museum and cultural centre. In the renovated warehouse, the exhibition spaces are located over two storeys, while a new structure set in front houses the cultural centre. The separation of the two different areas can clearly be read from outside: the new structure forms the curved main façade, which is decorated with small, reflective mirrors.
The difference, and the interplay, between the two areas stands at the centre of the architects’ concept for the form and materials. The industrial character of the former warehouse contrasts with the bright, purist exhibition spaces. The indirect lighting of the artworks is achieved by the addition of light wells. The interior space, which is rather sober, is combined with an expressive, nearly extravagant façade. The use of the mirrors on the façade refers to the traditional architecture of Thai temples. In this case, the mirrors create a modern tile pattern that gives the curved façade the appearance of being slightly folded. The unusual façade reflects its surroundings – the building becomes part of the landscape and is integrated into it.
The project comes alive in the stark contrast of existing and new, interior and exterior, shell and contents. The existing building is enhanced by this contemporary interpretation of local influences.
Further information:
Staff: Rachaporn Choochuey, Sorawit Klaimak, Asrin Sanguanwongwan, Aroonrod Supreeyaporn in collaboration with Sarin Nilsonthi
Planning of structural framework: Next Innovation
Light planning: Kris Manopimok
Daylight planning: Narongwit Areemit
Lascape architects: Rachaniporn Tiempayotorn
Builder: Urban Form
Photographer: Soopakorn Srisakul
Staff: Rachaporn Choochuey, Sorawit Klaimak, Asrin Sanguanwongwan, Aroonrod Supreeyaporn in collaboration with Sarin Nilsonthi
Planning of structural framework: Next Innovation
Light planning: Kris Manopimok
Daylight planning: Narongwit Areemit
Lascape architects: Rachaniporn Tiempayotorn
Builder: Urban Form
Photographer: Soopakorn Srisakul












