// Check if the article Layout ?>
A Place of Tranquillity: Parish Centre in Bremen
Foto: Stefan Müller, Berlin
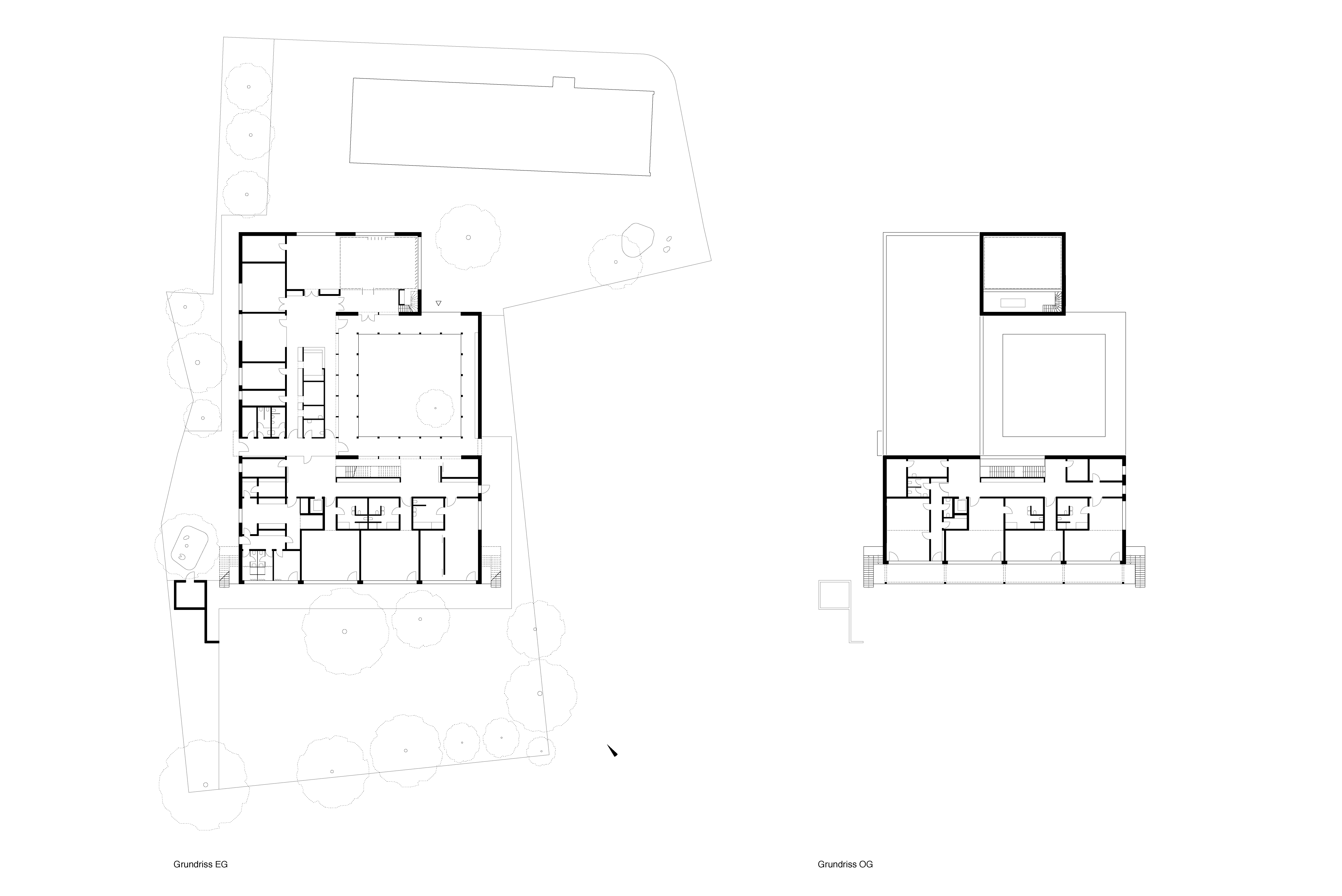
Das Gemeindezentrum Unser Lieben Frauen steht etwas zurückgesetzt von der Straße in einem Nachkriegs-Wohnviertel im Nordosten von Bremen. Sein Zentrum bildet ein stiller, wie ein Kreuzgang von Kolonnaden aus gesäuerten Betonfertigteilen gefasster Hof. Ein Magnolienbaum akzentuiert die Kiesfläche in seiner Mitte, zu der sich auch die umliegenden Bauten – ein hoher Gemeindesaal, das eingeschossige Gemeindehaus und die zweigeschossige Kita – mit großen Fensteröffnungen orientieren. Ihre Fassaden bestehen größtenteils aus hellem dänischem Ziegel.
Links neben dem Durchgang zum Innenhof ist darin ein Betonrelief als Reminiszenz an den Vorgängerbau eingelassen. Weitere Erinnerungsstücke aus dem alten Gemeindehaus sind die Orgel im Gemeindesaal und der Türgriff an dessen Eingangstür. Außen an den Saalfassaden hebt eine horizontale Bänderung mit abwechselnd liegenden und hochkant gestellten Ziegeln dessen besondere Rolle hervor. Weiter oben findet das Fassadenrelief in einem liegenden Kreuz seine Fortsetzung. Es ist ebenso wie der Altar, das Taufbecken und die Kanzel ein Werk der Bad Wörishofener Künstler Lutzenberger + Lutzenberger.
Neben Beton und Ziegel komplettiert Lärchenholz den Materialdreiklang der Fassaden. Noch präsenter ist das Holz freilich in den Innenräumen – etwa im Saal, wo es vor den Fenstern eine Art zweite Haut aus schwenkbaren Vertikallamellen bildet. Mit ihnen lässt sich die Lichtstimmung im Saal an die jeweilige Nutzung anpassen. Auch im Foyer des Gemeindehauses ist das Lärchenholz präsent, hier als eingestelltes Holzelement mit Empfangs- und Kaffeetresen sowie Nebenräumen.
Im Foyer der Kita findet sich das Thema des hölzernen Kerns als zweigeschossiger Einbau wieder, der Treppe und Kindergarderoben in sich vereint. Die fünf Gruppenräume der Kita scheren aus dem introvertierten Grundrisskonzept aus und orientieren sich mit großen Fenstern nach außen, zu einem Garten mit Spielplatz. Insgesamt finden im Gebäude 100 Kinder Platz, darunter dank spezieller Bewegungsräume mit Therapieausstattung auch solche mit Behinderung.
Links neben dem Durchgang zum Innenhof ist darin ein Betonrelief als Reminiszenz an den Vorgängerbau eingelassen. Weitere Erinnerungsstücke aus dem alten Gemeindehaus sind die Orgel im Gemeindesaal und der Türgriff an dessen Eingangstür. Außen an den Saalfassaden hebt eine horizontale Bänderung mit abwechselnd liegenden und hochkant gestellten Ziegeln dessen besondere Rolle hervor. Weiter oben findet das Fassadenrelief in einem liegenden Kreuz seine Fortsetzung. Es ist ebenso wie der Altar, das Taufbecken und die Kanzel ein Werk der Bad Wörishofener Künstler Lutzenberger + Lutzenberger.
Neben Beton und Ziegel komplettiert Lärchenholz den Materialdreiklang der Fassaden. Noch präsenter ist das Holz freilich in den Innenräumen – etwa im Saal, wo es vor den Fenstern eine Art zweite Haut aus schwenkbaren Vertikallamellen bildet. Mit ihnen lässt sich die Lichtstimmung im Saal an die jeweilige Nutzung anpassen. Auch im Foyer des Gemeindehauses ist das Lärchenholz präsent, hier als eingestelltes Holzelement mit Empfangs- und Kaffeetresen sowie Nebenräumen.
Im Foyer der Kita findet sich das Thema des hölzernen Kerns als zweigeschossiger Einbau wieder, der Treppe und Kindergarderoben in sich vereint. Die fünf Gruppenräume der Kita scheren aus dem introvertierten Grundrisskonzept aus und orientieren sich mit großen Fenstern nach außen, zu einem Garten mit Spielplatz. Insgesamt finden im Gebäude 100 Kinder Platz, darunter dank spezieller Bewegungsräume mit Therapieausstattung auch solche mit Behinderung.
Weitere Informationen:
Entwurfs- und Ausführungsplanung: Völlmar Architektur und Katja-Annika Pahl, Hamburg
Ausschreibung, Vergabe Bauleitung: Campe Janda Architekten, Bremen
Tragwerksplanung: Zill Klochinski Hütter Scharmann, Bremen
HLS-Planung: v+w Ingenieurplanung Voigt und Witting, Bremen
Freiraumplanung: Anna Viader, Berlin mit nsp, Hannover
Kanzel, Altar, Taufbecken, Fassadenkreuz: Lutzenberger + Lutzenberger, Bad Wörishofen
Elektroplanung: IKE - Ingenieurgesellschaft für Kommunikations und Energietechnik, Bremen
Entwurfs- und Ausführungsplanung: Völlmar Architektur und Katja-Annika Pahl, Hamburg
Ausschreibung, Vergabe Bauleitung: Campe Janda Architekten, Bremen
Tragwerksplanung: Zill Klochinski Hütter Scharmann, Bremen
HLS-Planung: v+w Ingenieurplanung Voigt und Witting, Bremen
Freiraumplanung: Anna Viader, Berlin mit nsp, Hannover
Kanzel, Altar, Taufbecken, Fassadenkreuz: Lutzenberger + Lutzenberger, Bad Wörishofen
Elektroplanung: IKE - Ingenieurgesellschaft für Kommunikations und Energietechnik, Bremen


















