A Rough Massif in Concrete: Apartment Building in Zurich by Gus Wüstemann
Foto: Bruno Helbling
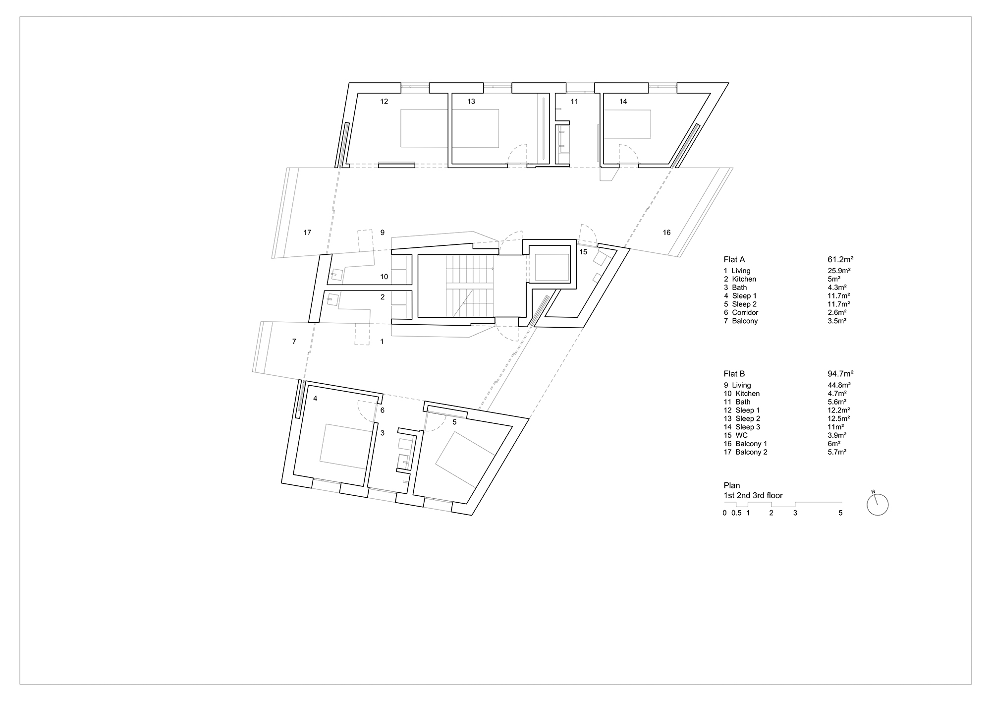
The massive, concrete apartment building stands on a green space in Zurich’s district of Albisrieden and is surrounded by blocks of flats from the 1950s. Two vertical pieces have been sliced from the vaguely brutalist, chunky basic shape to accommodate the balconies and their adjacent communal spaces. This allows daylight to penetrate the apartments from two sides. The floor plan is trapezoidal and divided in two by the central access core. Each storey has two apartments; the one exception is the attic, which features a single apartment and a large rooftop terrace. The building’s nine flats are distributed over five storeys; each one measures either 60 or 95 m².
Rough Exposed Concrete
Inside as well, rough exposed concrete determines the ambience. The fall of light accentuates and visually highlights the textures and colour nuances of the various concrete surfaces. Other details give the apartments a certain sophistication: concrete benches jut from the massive walls to serve as seating or storage. In the kitchen, extra counter space can be folded out as needed. The wooden sliding door to the bathroom does not extend to the floor, yet it provides the required privacy. The architects’ intention here becomes clear: they did not want to create any strict delimitations, but chose to allow the space to flow as a continuum with as few interventions as possible.
Sustainable Aspects
This project demonstrates that reducing standards makes it possible to develop generous living spaces without incurring additional expense. Gus Wüstemann Architekten make the case for a reconsideration of residential building, laying emphasis on the aspect of sustainability - less in terms of individuals, but all the more at community level.














