A Second Home on the Roof: Panache Apartment Building in Grenoble
Foto: Luc Boegly/ Sergio Grazia
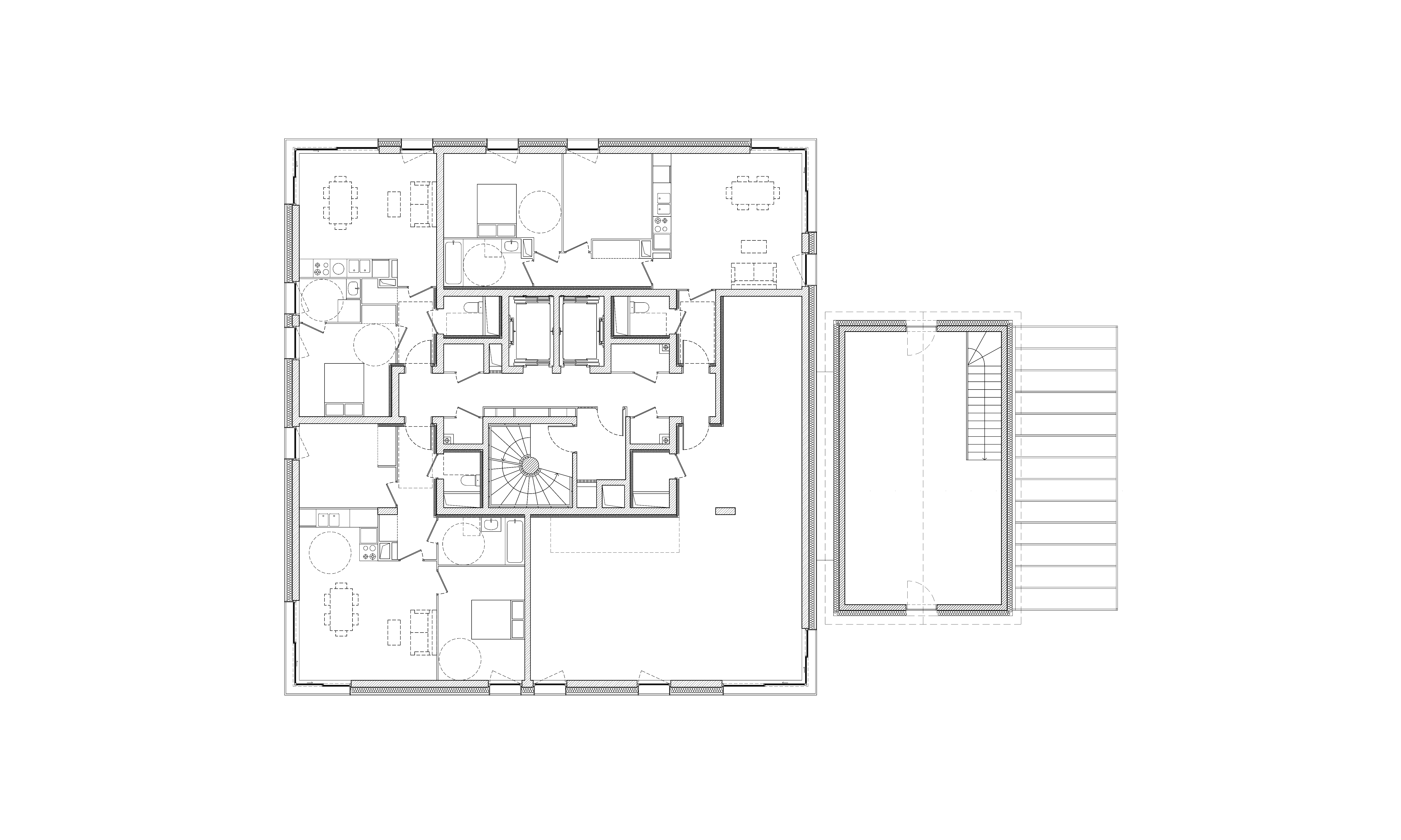
The 17-storey residential high-rise called Panache stands in the urban development area Presqu’île, northwest of Grenoble’s city centre. The building stands out from its rather conventional neighbours structures thanks to its lively, multi-storey landscape of rooftop terraces. Édouard François has distributed 32 of these open areas over the top six levels of the high-rise. Inhabitants of the 42 apartments on the lower floors can acquire these as an additional option. Each terrace is equipped with a kitchenette and bathroom that provide independence from the apartments while in use.
The architects hope that in the long term, active help on the part of residents will transform the terrace landscape into a “green cloud” crowning the 50-metre building. François and his office were driven primarily by two reasons for their unusual solution: all the residents should enjoy the best possible view from their balconies. Moreover, the architects wanted to minimize the thermal bridges that would have arisen with many balconies distributed over the building’s façades.
Panache comes in at 30 per cent less than the maximum primary energy requirements allowed in France - even without taking into account the photovoltaic system on the roof. Along with the well-insulated building shell, a ventilation system with heat recovery and low-temperature underfloor heating set at only 22-24 degrees of flow temperature contribute to the overall energy efficiency. The thermal energy for the heating is supplied by heat pumps, which are used to cool the building as well. However, cooling will take place primarily by opening the windows at night. Panache also scores points for social sustainability: nearly 30 per cent of the apartments have 4, 5 or 6 rooms, making them suitable for larger families. According to the architects, comparable projects in France do not generally exceed 15 or 20 per cent in this category.
Further information:
TGA-planning: Nicolas ingénieries
Cost planning: Editec
Net floor area: 4731 m²
Living area: 2730 m²
Patio area: 1073 m²
Building costs: €5.3 Mio. exctl. MWSt.
€1940/ m² exctl. MWSt.





































