// Check if the article Layout ?>
A Symbiosis of Juxtaposition: Cultural Centre in Beaumont-Hague
Photo: Sergio Grazia
The design concept rests on a fundamentally parallelogram shape. The structure measures 43 metres in both length and width; it is 11 metres tall. The façades are determined primarily by vertical axes, creating a dignified, almost monumental character. The glass façade clothes the centre in a constantly changing shell, at times mirroring its surroundings, at times allowing a look inside. Observers are offered an interplay of reflection and transparency. But the true highlight is a cut into the middle of the edifice. Like a virus, a red structure of eloxated metal panels has chewed its way into the otherwise rectilinear cultural centre, drawing all the attention to itself.
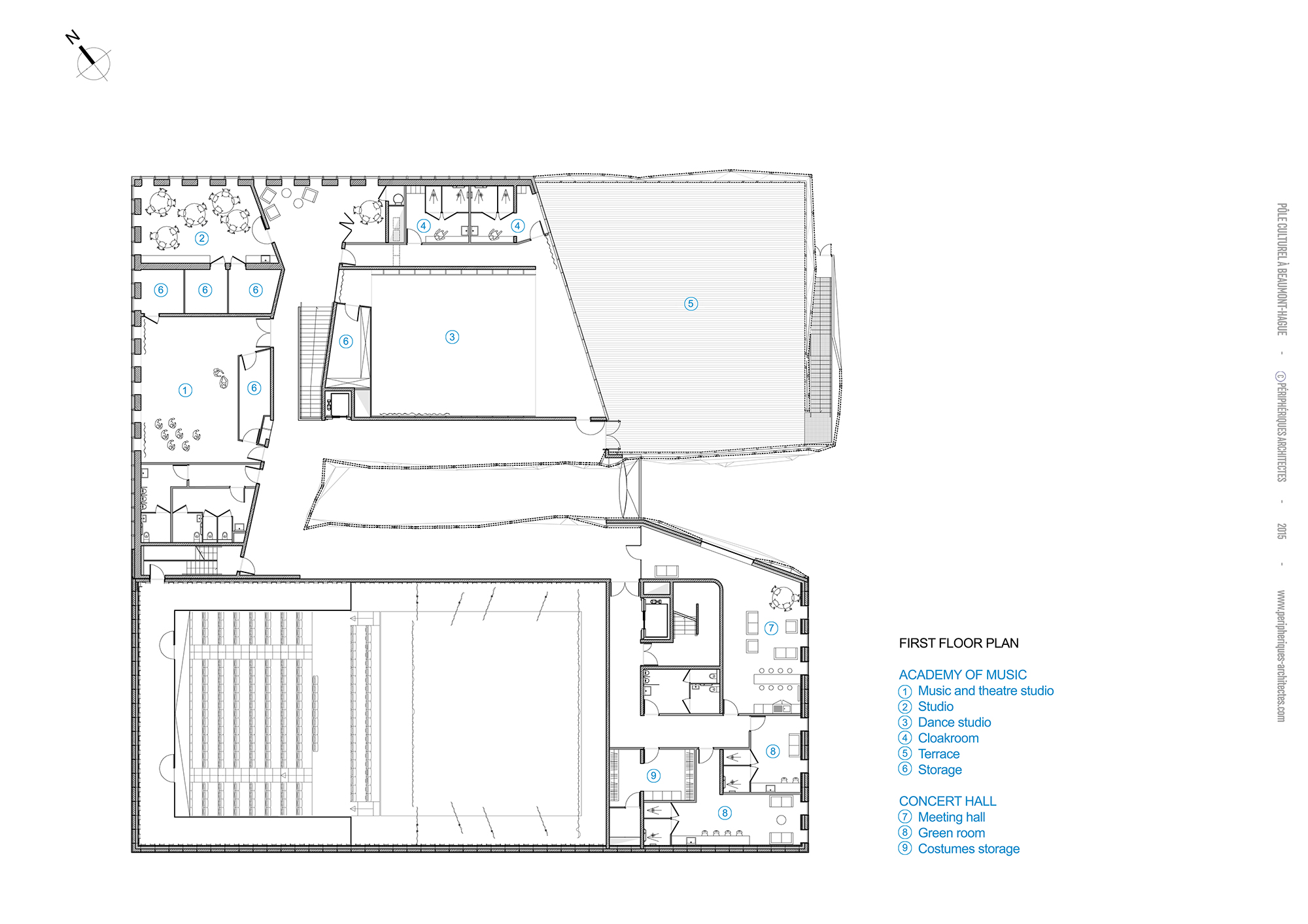
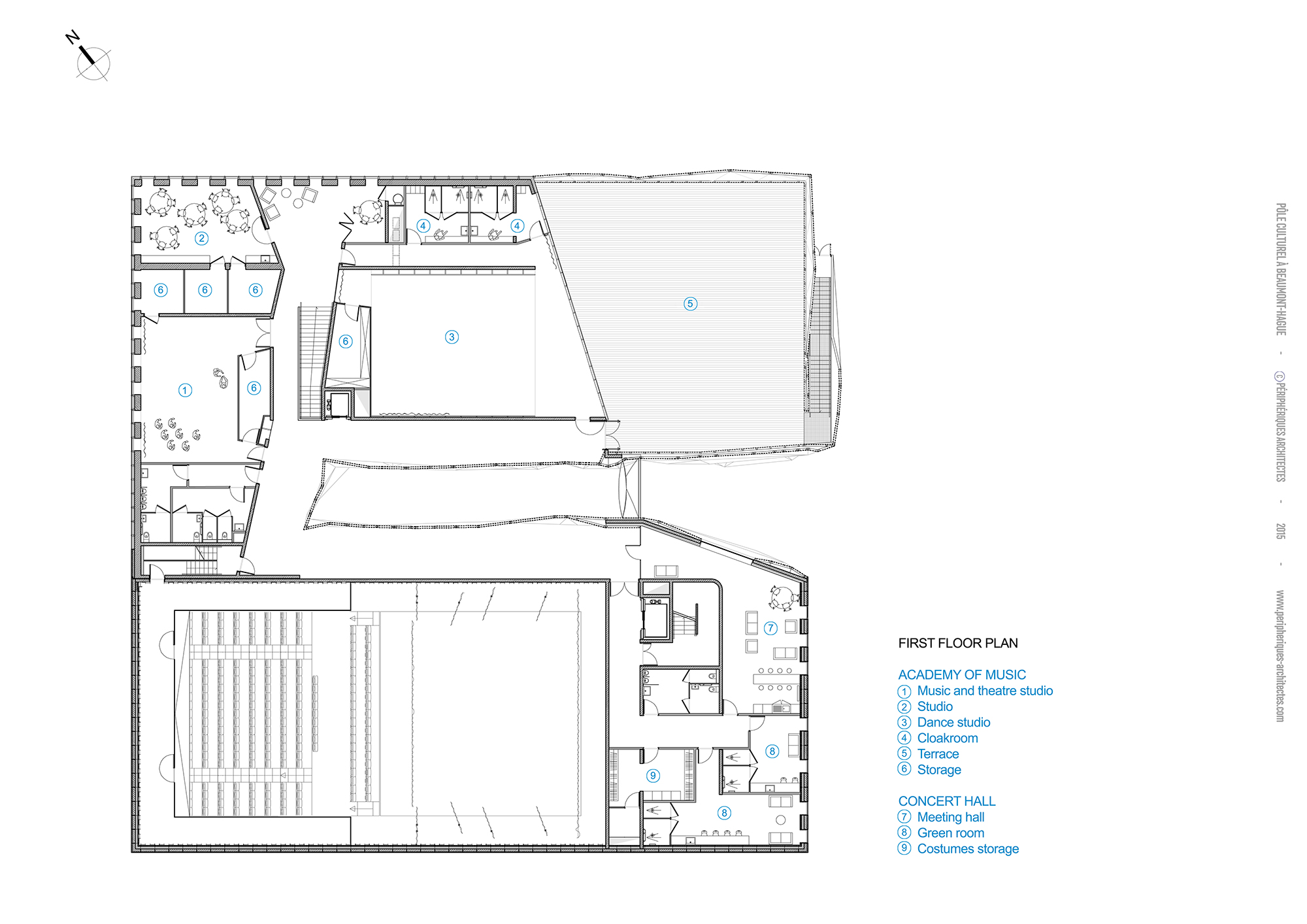
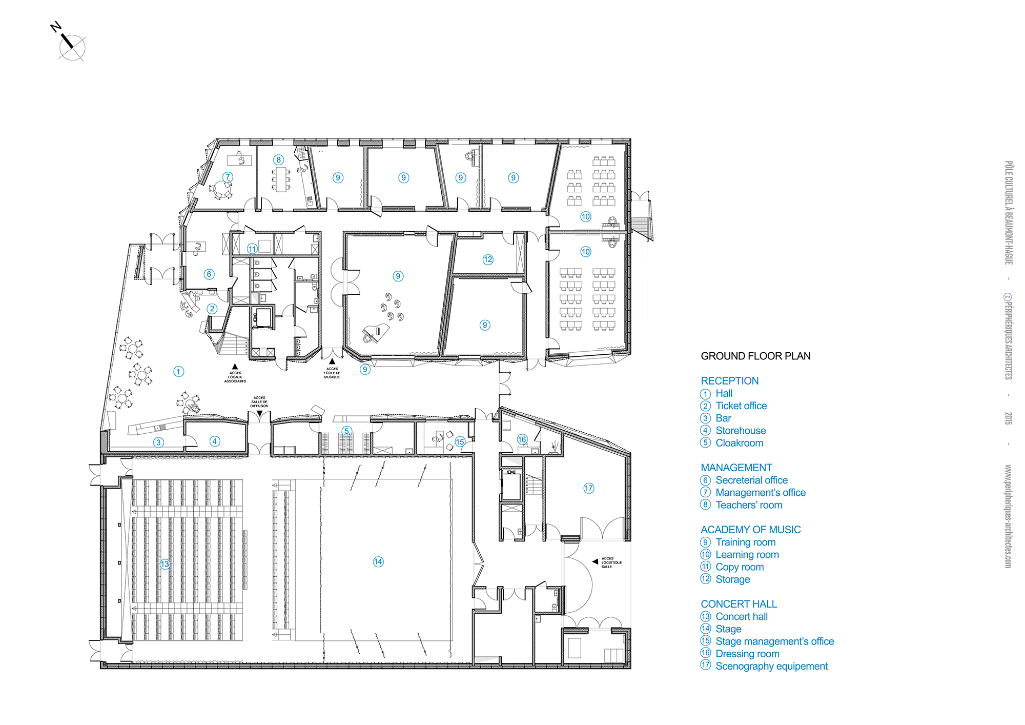
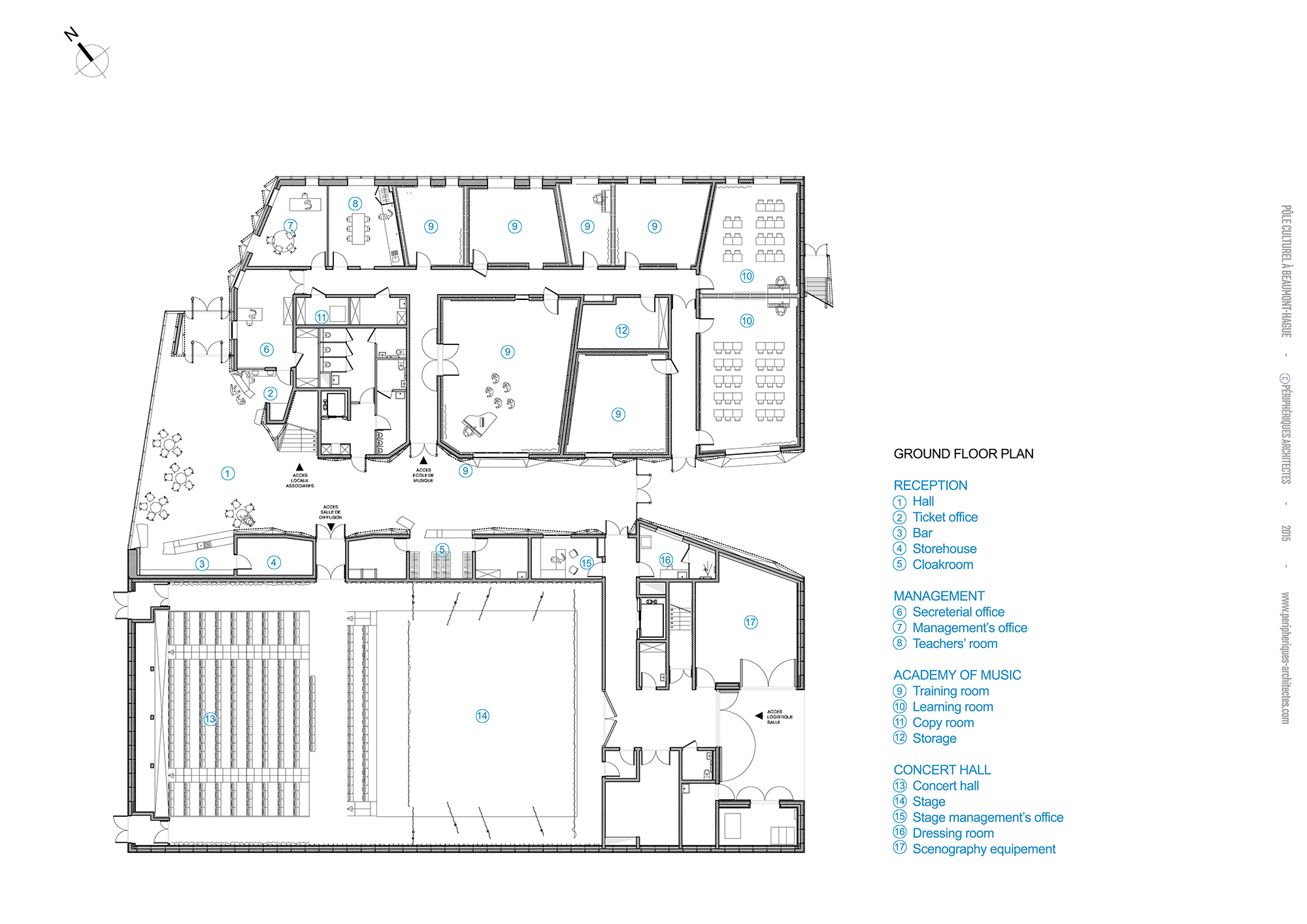
Visitors enter the building through the north corner. The small plaza in front slopes gently towards the entrance. The upper storey juts over a recessed area that invites us to go in. Inside, a large concert hall, practice rooms for music and dance and communal areas are distributed over the two levels. The red, triangular metal panels form the heart of the centre: the lobby. This functions as a central, unifying place that connects all the various functional areas. The unique perforation of the panelling regulates the acoustics by absorbing excess sound. The top is made of EFTE membranes, which influence the interior climate and allow as much daylight as possible into the public area. In the evening, the effect is reversed: light shines out.
To a certain extent, the lobby divides the building. On the right there is the large concert hall, which encompasses both storeys. The acoustic concept enables unlimited enjoyment of music without disturbing the other areas of the building. From the outside, the hall resembles a massive block. Inside, exposed concrete alternates with black metal panels. Diffusors are built into the long sides. The area to the left of the lobby is home to a music school and various general rooms. On the top floor, there is a public dance hall which gives onto a rooftop terrace. Furthermore, the upper storey accommodates clubrooms and private art studios.
Throughout the building, the choice of material shows a concern for sustainability and functionality: here we have surfaces of untreated wood, metal and exposed concrete. The practice rooms have been accented with colour.
With this cultural centre, Périphérique architectes have built a place where creativity and the exchange of ideas clearly have priority. Their design is a limpid translation of their intention.
more Information:
Team: Charlotte Lefebvre, Anne Clerget, Julia Winding, Emilie Murphy, Alfredo Luvison, Anatole Jeannot, Thomas Dantec, Yann Peter, Alexandre Pascal, Mernoush Naraghi, Estelle Grange-Dubellé





















