A Weekend Ruin: House in the Czech Republic
Foto: BoysPlayNice
ORA, a young architecture studio from Znojmo, were commissioned to transform a decrepit old house in the Czech Republic into a holiday home. The architects briefly considered a classic rehabilitation, for even as a ruin this house − once a residence, then a storage building − had maintained its splendid charm. The gutted, bare brick walls and roof rise assertively in the hilly landscape of eastern Czechia.
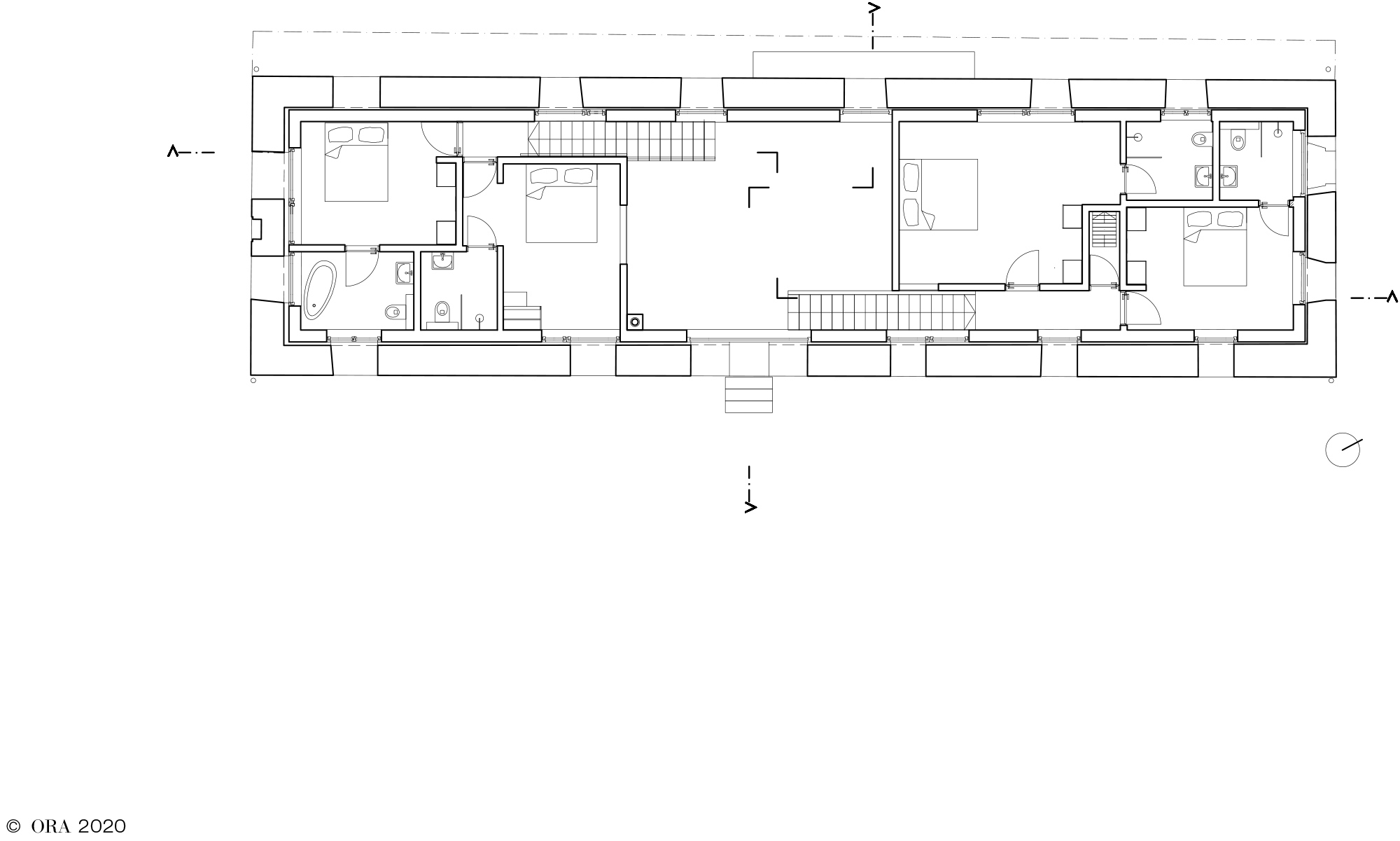
Instead, the architects wanted to preserve the character of the ruin, so they integrated a new building into the existing structure. A seam separates old and new; the two areas do not touch. The heart of the new holiday home is a central, two-storey living space. New or larger openings in the old masonry emphasize that the usable areas represent new elements in an old edifice. The distinction between old and new is gentle. For instance, the new windows do not precisely match the openings in the old walls, and in some places the old wall appears in the new interior. Old and new permeate each other. With this new setting, the interior space is comfortable, bright and spacious: it enables contemporary living.
Many building components and materials, such as wooden joists and boards, have been reused as ceiling and timbering elements. The architects see this project as a manifesto for an approach to old buildings. No demolition or dogmatic rehabilitation could have preserved the authenticity of the old structure. At the same time, it has been possible to build economically with contemporary materials.
The garden has no physical boundaries; apart from the remains of the old wall and a gate of corten steel, the yard is embedded in the surrounding landscape. Fruit trees, meadows and hawthorn allow house and nature to meld.
Further Information:
Cooperation: Tomas Pospisil
Landscape architecture: Stepanka Cerna






















