Above the Rooftops of Vienna: Pavilion by O&O Baukunst
Photo: Giovanni Emilio Galanello
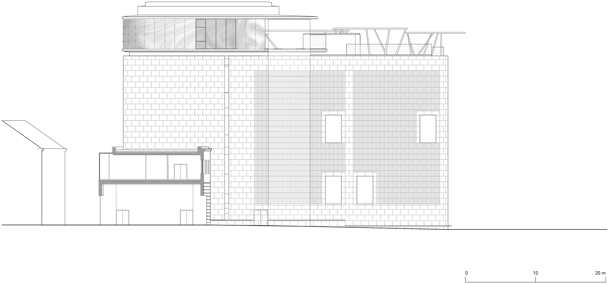
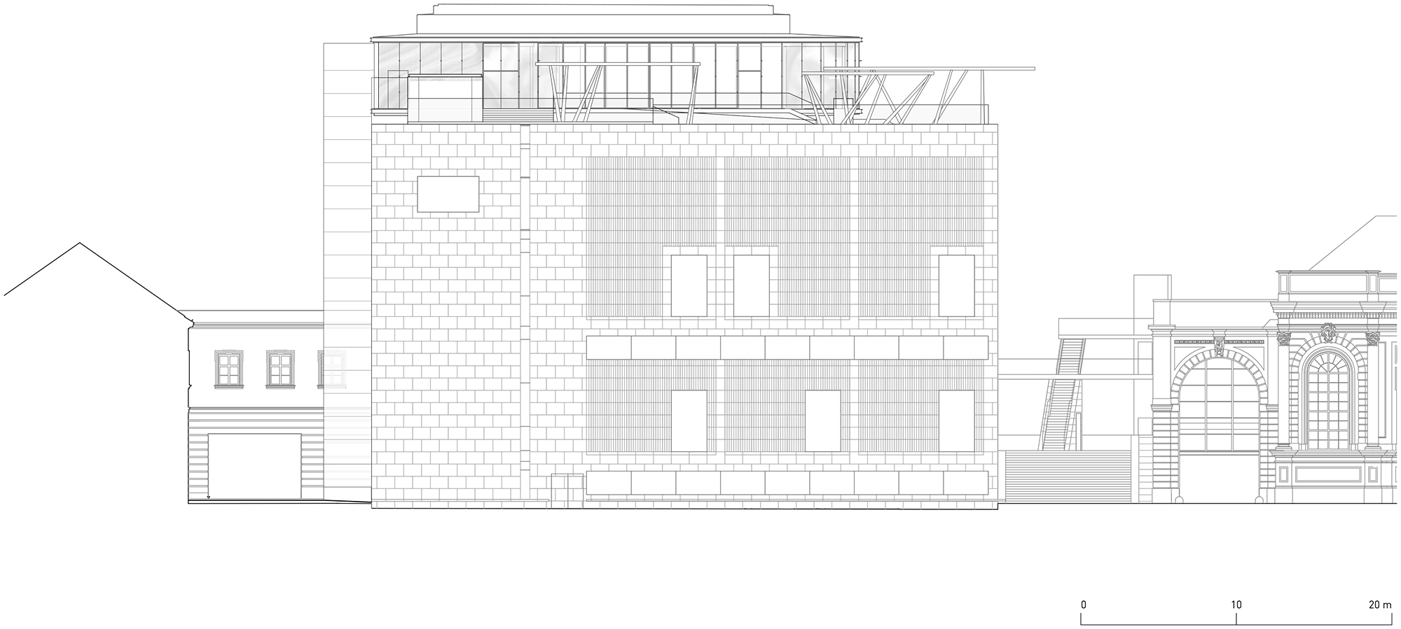
Airy and light, the new pavilion by O&O Baukunst floats on the roof of the Leopold Museum in Vienna. The architects associate their addition with a dragonfly: “shimmeringly light, yet powerful thanks to its position on the museum terrace”. The completely glazed façades of the pavilion draw dynamic curves and circles which form a counterpoint to the strict geometry of the stone museum structure. While the original building resembles a hermetic art block with façades of coquina, the fluid, open space of the 500-m2 pavilion opens onto the terrace before it. From here, the view overlooks the unique urban ensemble of the Museum Quarter and the heart of Vienna.
Light circles as a beacon for art
The festive venue of the rooftop pavilion is to be used for events and presentations − as a sort of urban salon for the exchange of opinions and ideas. A shimmering network of millions of white spots in the glass outer shell protects the interior from direct sunlight. At the same time, the intervention by artist Eva Schlegel ensures that the spatial impression remains fluid and open. The glass structure of the Dragonfly is connected to the ground via a sightseeing elevator whose slender shaft extends to the courtyard. The large panoramic terrace is open to the public; in the summer months, thanks to its open-air bar, it invites visitors to stay for a while. Three circles of light set on inclined supports act as a beacon for art: the installation by artist Brigitte Kowanz takes up the shape, size and arrangement of the three circles in the outline of the Dragonfly. By day, they appear as a delicate sculpture. In contrast, by night they are a symbol, visible from far and wide, of art and Vienna’s inner city.















