Adaptive Reuse: Town-Hall Renovation in Kontich
Foto: Dennis De Smet
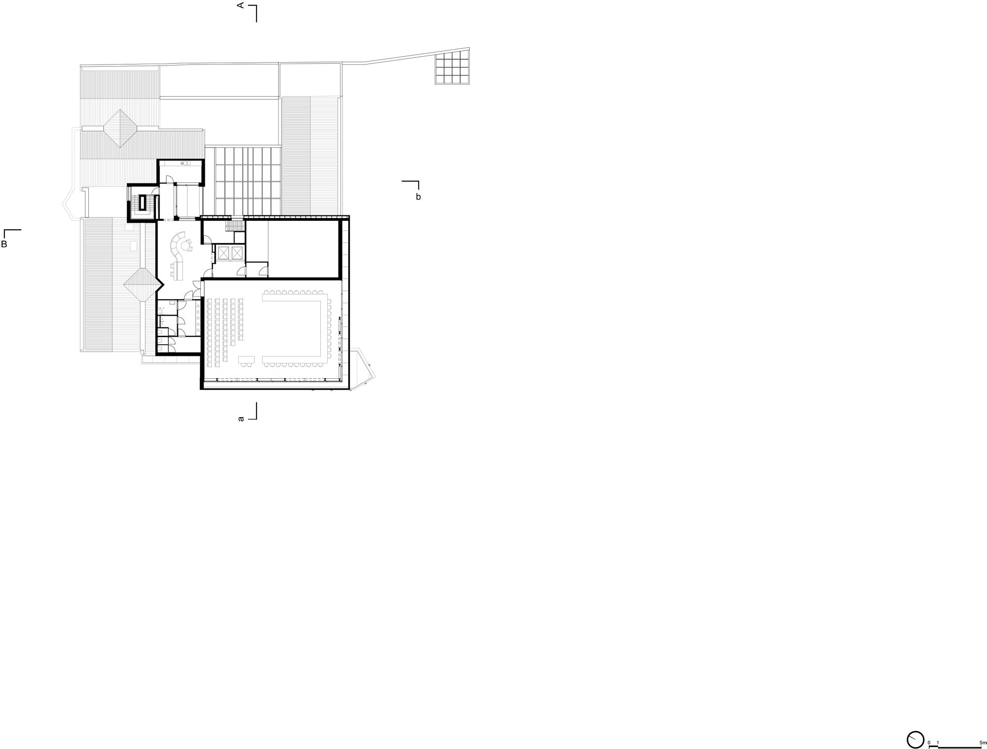
Von außen weithin sichtbar ist der neue Ratssaal im ausgebauten Dachgeschoss. Seine lichtdurchlässige Fassade kragt derart über den Bestand aus, dass die ursprüngliche Giebelfassade dahinter erkennbar bleibt. Plusoffice hat das Streckmetallgitter so weit vor die bodentiefe Glasfassade vorgehängt, dass sich ein begehbarer Zwischenraum herausbildet. Dieser Balkon kann bei entsprechendem Wetter für Sitzungspausen an der frischen Luft genutzt werden. Obwohl im dritten Stock angesiedelt, gibt der Sitzungssaal mit der dreiseitigen Fensterfront zahlreiche Sichtbezüge zur Gemeinde frei. Andersherum können die Bürger und Bürgerinnen Kontichs stets am leuchtenden Saal ablesen, wann ihr Stadtrat tagt.
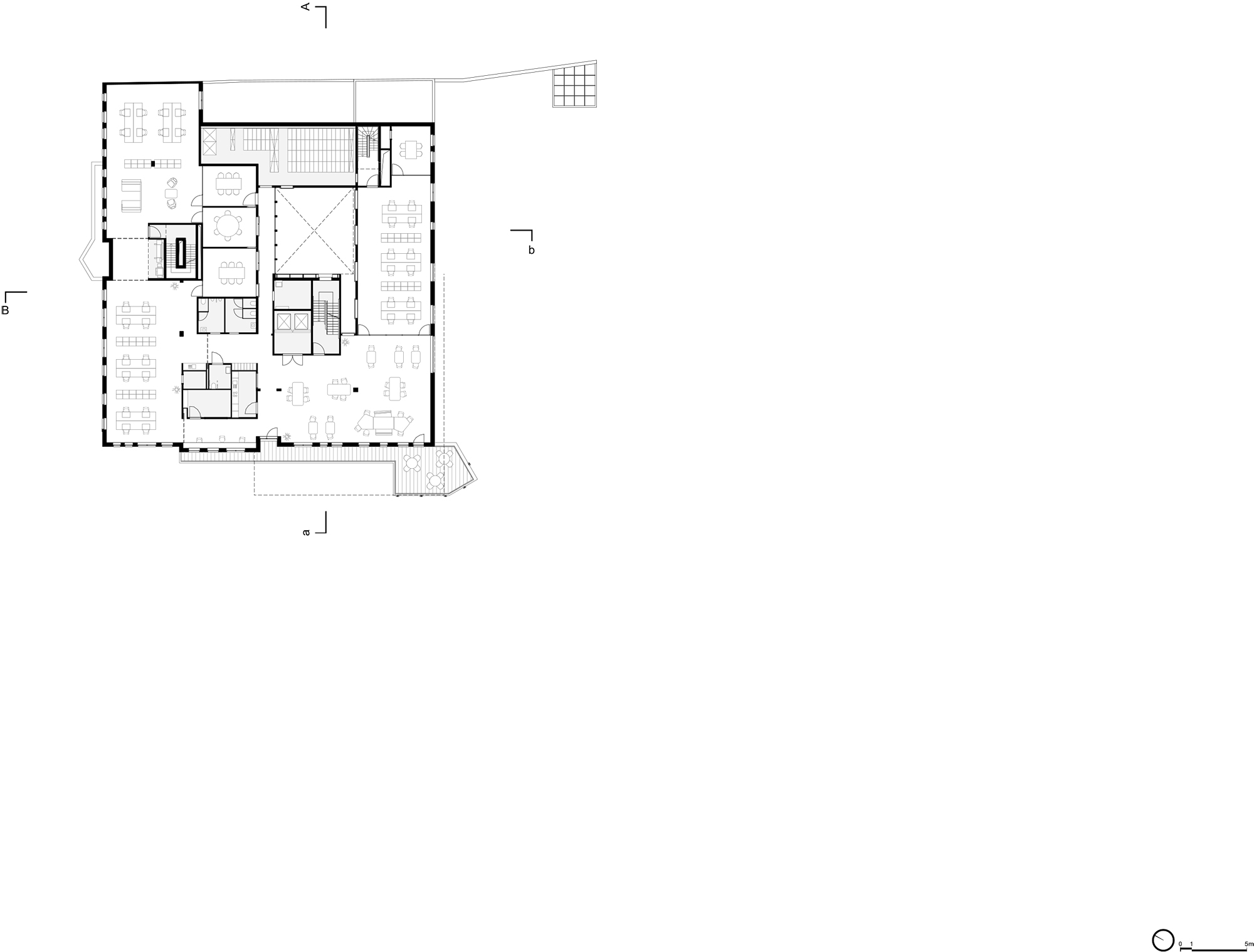
Der Dachausbau wird über eine Treppe im Innenhof erschlossen. Dieser vormals offene Hof wurde überdacht und fungiert nun als Empfang. Ein giebelförmiges Glasdach gewährt ausreichend natürliche Beleuchtung. Davon profitieren auch die Verwaltungszimmer der oberen Etagen, die nun zu einem Lichthof ausgerichtet sind: Im Zuge der Erweiterung wurden zusätzliche Fenster und Flure eingebaut. Den Leitgedanken einer transparenten Kommunalverwaltung hat plusoffice hier in die Fassadengestaltung übersetzt. Die zusätzliche Geschossfläche bietet der Verwaltung nun ausreichend Raum für flexible, bürgerorientierte Bürokonzepte.
Die Brüsseler Architekten behielten bei der Renovierung den Rohbaucharakter des Rathauses: Fenster und Türen aus Afrormosia in Kombination mit dunklem Terrazzo ergänzen und betonen nun die ursprünglichen Betonrippendecken, das Sichtmauerwerk sowie die unverkleidete Haustechnik. Das industrielle Streckmetallgitter an Außen- und Hoffassaden gibt sich in seiner diagonalen Hängung deutlich als Gestaltungselement zu erkennen.
Nutzfläche: 5.250 m2

















