Aging with a View of the Rhine: Seniors’ Home by Dominique Coulon & associés
Foto: Eugeni Pons
It could hardly be possible to live closer to the border triangle. The seniors’ home in Huningue stands just a stone’s throw from Basel and the Novartis campus, yet Germany can be seen on the other side of the Rhine. With its rustic-looking brick façade, the building pays tribute to its industrial surroundings. The west façade, which is entirely without windows, stoically greets all visitors and residents as they arrive.
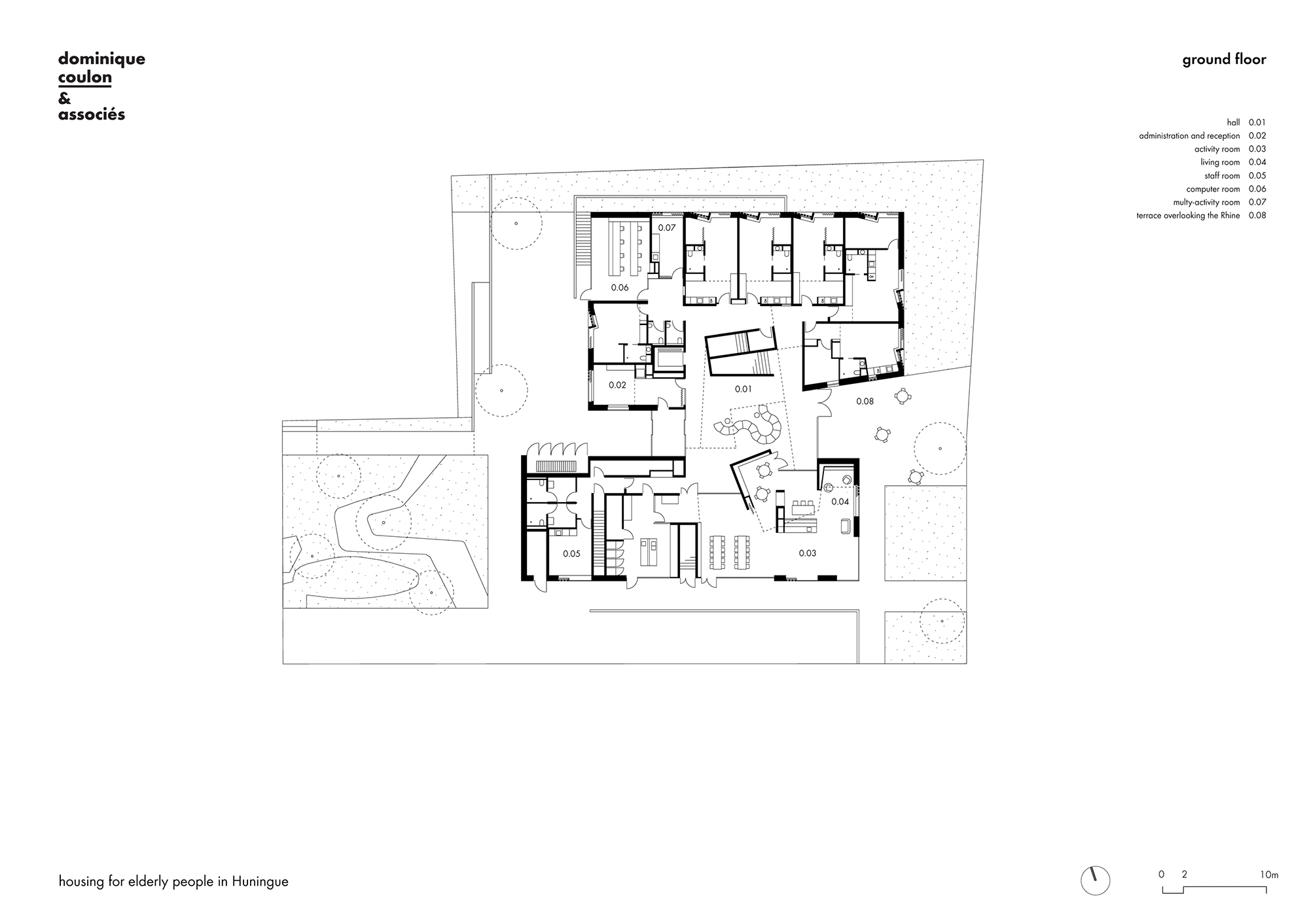
However, the building is anything but closed off. A transparent core enables a view through the building to the nearby riverbank. The stairway is also located in this core. It has demonstratively been placed in the open, two-storey atrium, inviting residents to move about a bit. From the red-pigmented concrete outside, a path leads to the terracotta tiles inside. The architects have devised a colour palette that is familiar from other projects such as the kindergarten in Buhl. In this project, the red shades form a backdrop against which the residents play out their everyday routines. The real protagonists here are the Rhine, which can be seen from many different angles of view, and the sense of community in the home, which is promoted by means of the architecture.
All the communal spaces, such as the dining room, terrace and lounges, are quite spacious and bright; they are arranged along the access paths. The path through the house is strewn with meeting points and decorated with warm materials, transforming the spaces between the one-room apartments into a larger living room.
Every apartment features a kitchenette and bathroom. The sleeping area can be delimited from the rest of the space by closing a curtain. The façade folds inwards beside each of the square windows, creating niches on the exterior wall of the building. These niches house opaque ventilation flaps concealed - yet accentuated as well - in the façade by their uneven brickwork.
Further information:
Addresse Architects: 13 Rue de la Tour des Pecheurs, 67000 Strasbourg (FR)






























