// Check if the article Layout ?>
Alone on the beach: Library with a sea view by Vector Architects
Photograph: Su Shengliang
The brutalist appearance of this sleek library on the eastern coast of China plays with the contrast between nature and culture. Beijing’s Vector Architects studio focuses on reduced materiality and expressive tectonics in order to give the free-standing building an expressive character. At the same time, its relationship with the water are a predominant theme of the interior space.
Architect: Vector Architects, Beijing
Location: Nandaihe, China
Location: Nandaihe, China
The library planned by Vector Architects stands self-absorbed on a stretch of beach in the city of Nandaihe, which lies on the Chinese coast east of Beijing. The béton brut structure, whose prefab technique possesses a certain brutalist character, turns away from the land and opens onto the sea, reinforcing the stereotypical impression. Architect Gong Dong, who studied in Beijing, Chicago and Munich, has used this renunciation of city and land to create an edifice that brings forth his desired qualities of light and view and results in an island of culture on the coast. Free of any built context, this library presents itself as a durable work of architecture whose sleekness makes a marked contrast to nature without risking any sense of harmony.
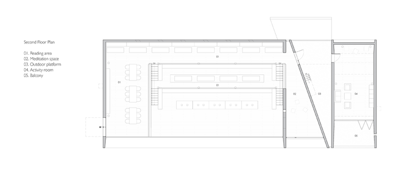
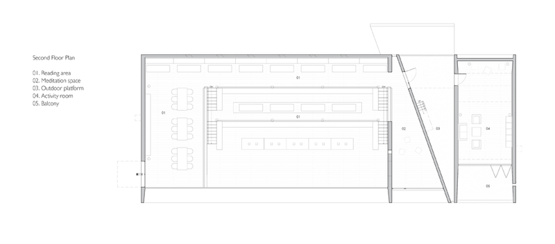
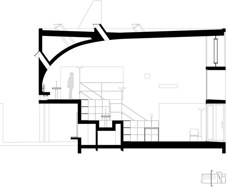
The organization of the library is correspondingly minimalist and consists to a large extent of a long reading room with a stairway. The arrangement of all the working areas provides a view over the beach and the sea. A bar on the ground floor and other retreats on the first upper storey allow visitors to take a break from reading and writing, while the rooms on the top floor substitute the sea view with a play of light, creating an introverted effect. Here, light slits and spatial narrowings provide a spiritual ambience, creating a certain tension between exterior and interior that transforms the outward view into an inward one.
The typical béton brut look of wood cladding has been maintained both inside and out: it is relaxed a bit by the bamboo used for the windows, doors, flooring and parts of the façade. As a third material, Vector have used glass bricks to cover the trussed girders and further enable the building to open up to the sea, the light to fall into the reading room and the raw tectonics of the building to be poetically concealed.
With a minimum of material and construction, Gong Dong’s team have created a place unusual for China. The beauty of the library consists in its reduction to the essentials. It succeeds despite its limited volume and self-absorbed yet evocative location on the open beach by Nandaihe.
Project data
Client: Beijing Rocfly Investment (Group) Co., Ltd.
Projekt team: Gong Dong, Chen Liang, Yifan Zhang, Dongping Sun, Zhiyong Liu, Hsi Chao Chen, Hsi Mei Hsieh Usable space: 450 m²
Completion: 2015
Projekt team: Gong Dong, Chen Liang, Yifan Zhang, Dongping Sun, Zhiyong Liu, Hsi Chao Chen, Hsi Mei Hsieh Usable space: 450 m²
Completion: 2015









