// Check if the article Layout ?>
An apartment as big as a plane: Conversion project by Arquitectura-G
Foto: José Hevia
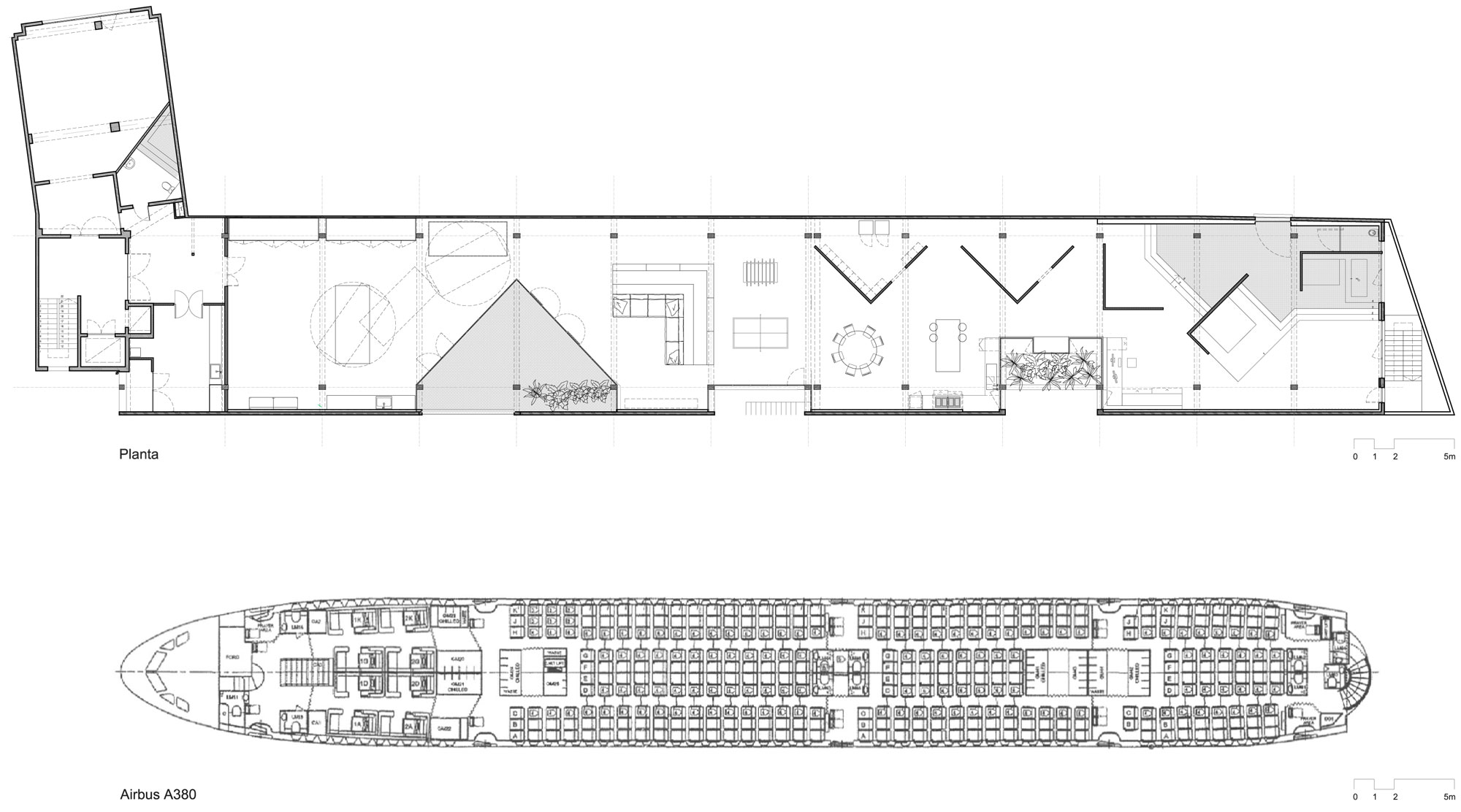
The task was more than unusual: one person alone wanted to move into a factory hall measuring 10 by 70 metres in size. The first time the premises were viewed with the client, the sewing machines and rolls of fabric from a tailoring business were still in place below the exposed concrete ribs of the ceiling. Once the interior had been freed of all ballast, the Spanish architectural office Arquitectura-G defined two goals for their conversion work: reduction of the scale of the gigantic hall into more human and comprehensible proportions, and retention of the space's unity as well as its open character.
The brief was not only for an apartment with all the usual requirements but also for an artist's workshop and a studio space. In response, the architects organised the interior into sections that gain in privacy the further they get from the entrance. The studio with the workshop is located at the very front of the building, and is followed first by a triangular terrace and sitting area and then by the kitchen and a dining space adjoining onto a small garden. The final section consists of the sleeping area, which forms a single element with the bathroom, set on a generously dimensioned platform. This means that large and bulky deliveries can be unloaded at the studio, and visitors do not need to cross the sleeping area to take their place at the dining table.
Partition walls were used to divide the space into separate areas. In each case they consist of space-encompassing elements made up of two walls set at right angles to each other, and not connecting with the walls or ceilings at any one place. This preserves the open character of the room, yet interrupts the field of vision or redirects it. The terrace and garden area provide an additional division of the hall into sections, at the same time introducing light, air and vegetation into the interior.
The brief was not only for an apartment with all the usual requirements but also for an artist's workshop and a studio space. In response, the architects organised the interior into sections that gain in privacy the further they get from the entrance. The studio with the workshop is located at the very front of the building, and is followed first by a triangular terrace and sitting area and then by the kitchen and a dining space adjoining onto a small garden. The final section consists of the sleeping area, which forms a single element with the bathroom, set on a generously dimensioned platform. This means that large and bulky deliveries can be unloaded at the studio, and visitors do not need to cross the sleeping area to take their place at the dining table.
Partition walls were used to divide the space into separate areas. In each case they consist of space-encompassing elements made up of two walls set at right angles to each other, and not connecting with the walls or ceilings at any one place. This preserves the open character of the room, yet interrupts the field of vision or redirects it. The terrace and garden area provide an additional division of the hall into sections, at the same time introducing light, air and vegetation into the interior.















