A Different Way to Get Well: Hospital Nova by JKMM in Jyväskylä
Foto: Kuvio M
Krankenhäuser sind üblicherweise Dauerbaustellen. Selten kommt es vor, dass ein Architekturbüro den Auftrag erhält, eine Klinik nicht nur von Grund auf neu zu planen, sondern sie auch konzeptionell neu zu denken. Genau das ist nun im mittelfinnischen Jyväskylä geschehen, wo 2020 das neue Bezirkskrankenhaus nach Entwürfen der Architekten JKMM in Betrieb ging. Schon seit 2010 hatte sich deren Gründungspartner Teemu Kurkela in einem Forschungsauftrag mit neuen Krankenhauskonzepten befasst. Der offizielle Planungsstart für den 500-Millionen-Euro-Neubau war 2016.
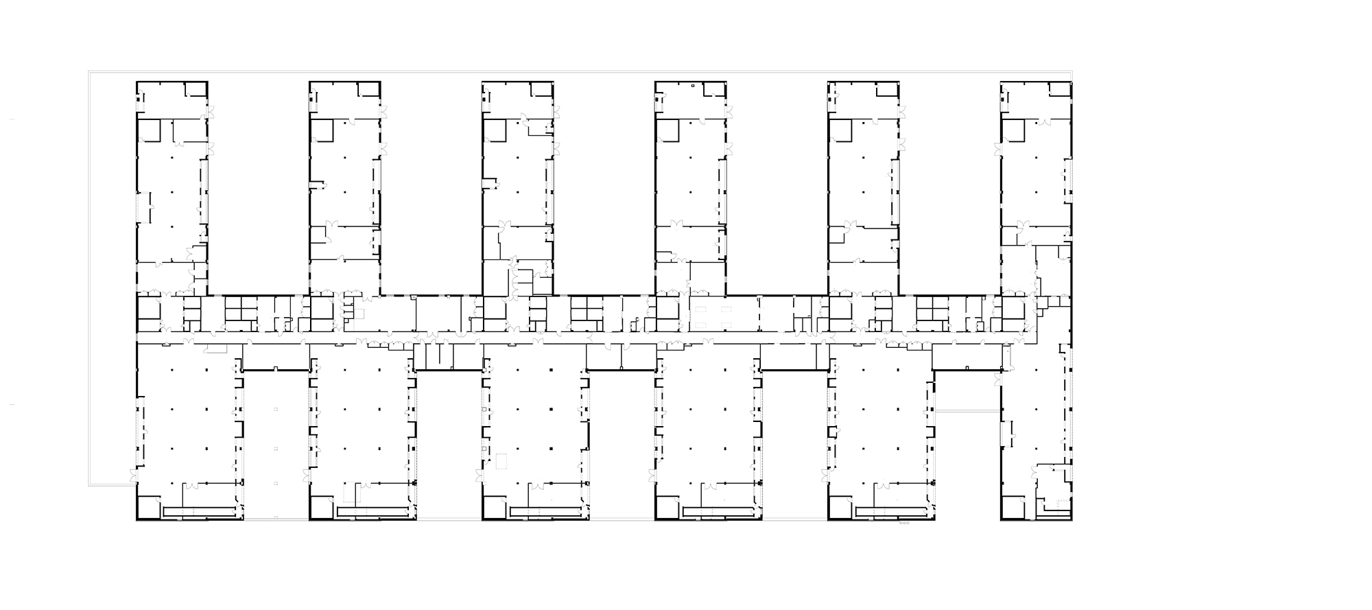
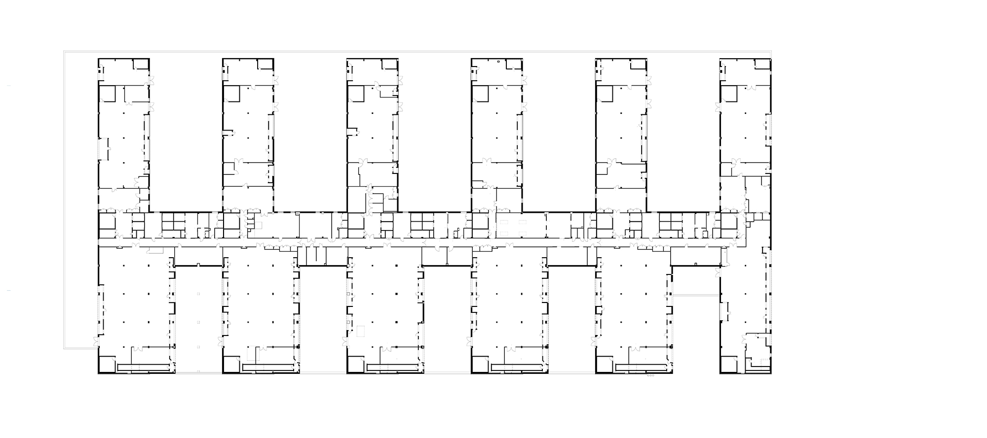
Das Hospital Nova gliedert sich nicht nach Fachabteilungen, sondern nach Funktionsbereichen. Vier davon gibt es insgesamt. Die von den Architekten so genannte „Fabrik“ mit Anlieferung, Lager, Technik und anderen Nebenfunktionen nimmt das Untergeschoss ein. Im dreigeschossigen Gebäudesockel liegen sich zwei Bereiche einander gegenüber: das „Hot Hospital“ mit OP-Sälen und Intensivstationen und die „Healthcare Shopping Mall“ für die ambulanten Behandlungen. Darüber folgt ein weiteres Technikgeschoss und schließlich das dreigeschossige „Hotel“ mit den Bettenzimmern - alles Einzelzimmer mit eigenem Bad.
Auch hinter den Kulissen gibt es neue Strukturen: Die Ärztinnen und Pfleger arbeiten fachübergreifend in „Knowledge Zones“ genannten Großraumbüros, das Chefarztbüro herkömmlicher Prägung gehört damit der Vergangenheit an. Ambulante Patienten müssen sich nicht mehr von Zimmer zu Zimmer bewegen, wenn sie mehrere Ärzte sprechen wollen, das Behandlungspersonal kommt vielmehr zu ihnen. Die Lagerflächen im Haus sind ebenfalls minimiert, stattdessen wurde ein Just-in-time-Lieferdienst für alles Notwendige eingerichtet.
Das funktionale Rückgrat des Krankenhauses bildet ein dreigeschossiges, kammartiges Atrium zwischen dem ambulanten Bereich und dem „Hot Hospital“. Mit Holzskulpturen und großen Findlingen haben die Architekten hier zumindest bruchstückhaft die Atmosphäre der mittelfinnischen Seenlandschaft ins Haus geholt. Ein Kiosk in Blockhüttenbauweise und ein Restaurant stehen den Patienten und Gästen hier zur Verfügung. Perforierte Aluminium-Profilbleche halten den Betrieb in den umliegenden Korridoren visuell auf Abstand, erlauben von dort aus aber dennoch Einblicke ins Atrium. Das gleiche Material findet sich auch an den stirnseitigen Fassaden des Gebäudesockels und der Bettenflügel wieder.
Neben funktionalen und atmosphärischen Vorzügen soll das neue Krankenhauskonzept auch handfeste finanzielle Vorteile bringen. Insgesamt will der Betreiber damit 10% der jährlichen Betriebskosten einzusparen. Keine schlechten Aussichten angesichts der Tatsache, dass der Krankenhausbetrieb in 1 bis 2 Jahren so viel Geld verschlingt, wie der Neubau gekostet hat.
Weitere Informationen:
Landschaftsarchitektur: Loci-Maisema Arkkitehdit
HLS-Planung: Granlund Oy
Elektroplanung: Ramboll Finland, Easytec Oy
BIM-Beratung: Gravicon Oy

































