// Check if the article Layout ?>
Artist's studio in Warsaw: Gold nugget in an industrial estate
Photo: Karolina Tunajek
The Polish artist Paweł Althamer is an all-rounder, a sculptor and ceramist whose repertoire includes installations, video art and performances. Visitors to the 2013 Venicle Biennale may remember his room-size installation Venetians, involving some 90 life-sized figures consisting of metal tubing and silicone facial masks held together with fused strips of plastic.
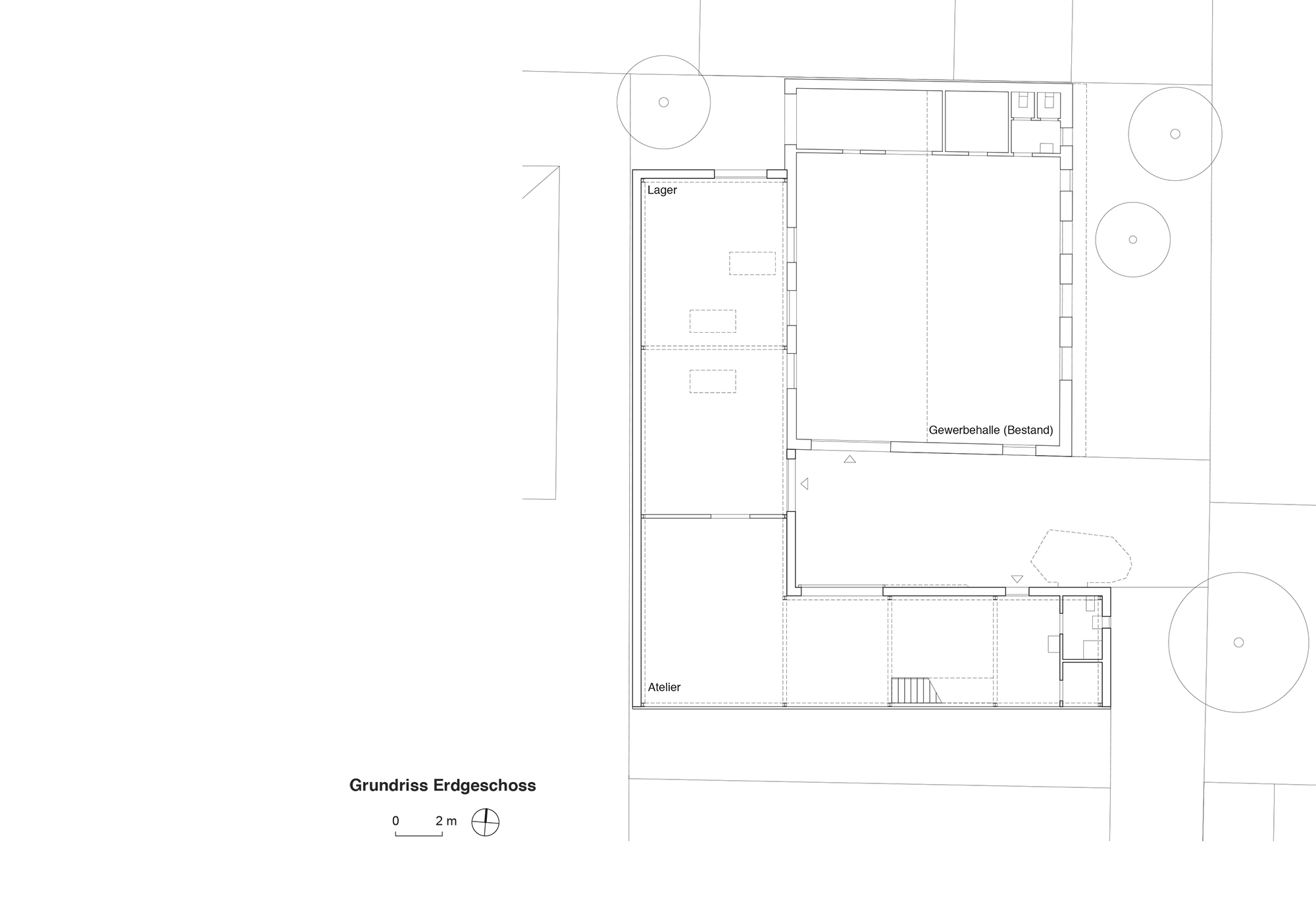
The raw materials for the installation were provided by Althamer's father, who has a plastics factory in east Warsaw. It is next to these works that the artist has had his new studio built, plus a storage room for the company owned by Althamer's brother has been set up next door. The design for the complete "family project" was provided by Piotr Brzoza, a Basle-based Polish architect in collaboration with Projekt Praga, an architectural office of Warsaw.
The development covers almost the total area of the site and divides it into various interior and exterior spaces that serve the different users. Apart from the clearly assigned areas, a central, common outdoor space enables the members of the family to work and encounter each other in the fresh air.
Althamer not only uses assistants in producing his artworks but at the same time also invites outsiders – whether school classes or civil servants from the regional administration – to join him in artistic creation. The design of the whole complex is thus based on a clear but non-dividing gradation of zones from common-use areas to private spaces. In this the common courtyard is followed by the studio ground floor, used for all kinds of group sculptural work, and then by a mezzanine level, which is used as a small meeting room. The final element, entered through a doorway in the mezzanine wall, consists of a small, fully private room, a "cocoon" that bulges outward to form a golden-coloured polyhedron-shaped protrusion above the common yard. The most private room is thus highly prominent in terms of both design and placement but not unsurprisingly, provides no views into its interior.
The supporting structure of the studio is made up of a hybrid system of mutually bracing steel frame walls and masonry. White polycarbonate panels form the southern façade, immersing the front part of the studio in intensive, shadow-free daylight and creating, as Piotr Brzoza puts it, "a light situation known and highly esteemed in the classic sculpture studios of the past".
more Informationen:
Architects: Piotr Brzoza Architekten GmbH & Projekt Praga
Team: Piotr Brzoza, Marcin Garbacki, Karolina Tunajek, Łukasz Woleński, Gosia Kocima, Katarzyna Pyka, Maciek Kossowski Structural design: KiS Projekt, Warsaw
HLS-Planning: Studio Instalacji Sanitarnych Łukasz Drobiński, Wrocław
Team: Piotr Brzoza, Marcin Garbacki, Karolina Tunajek, Łukasz Woleński, Gosia Kocima, Katarzyna Pyka, Maciek Kossowski Structural design: KiS Projekt, Warsaw
HLS-Planning: Studio Instalacji Sanitarnych Łukasz Drobiński, Wrocław
















