At the Heart of a Community: School in Ergolding
Foto: David Matthiessen
In Ergolding bei Landshut, etwa 70 km nördlich von München, stieg die Nachfrage nach einem Gymnasium. Im Jahr 2011 gewann die Projektarbeitsgemeinschaft von Behnisch Architekten und dem Architekturbüro Leinhäupl + Neuber den Wettbewerb für den Schulbau zwischen einer Bundesstraße und dem Painthner Weiher. Der kantige Mäander liegt eingebettet in die Landschaft, von der Straße abgewandt, was eine Haupterschließung von Norden mit sich bringt. In unmittelbarer Nachbarschaft stehen bereits das Sonderpädagogische Förderzentrum sowie mehrere Sportplätze.
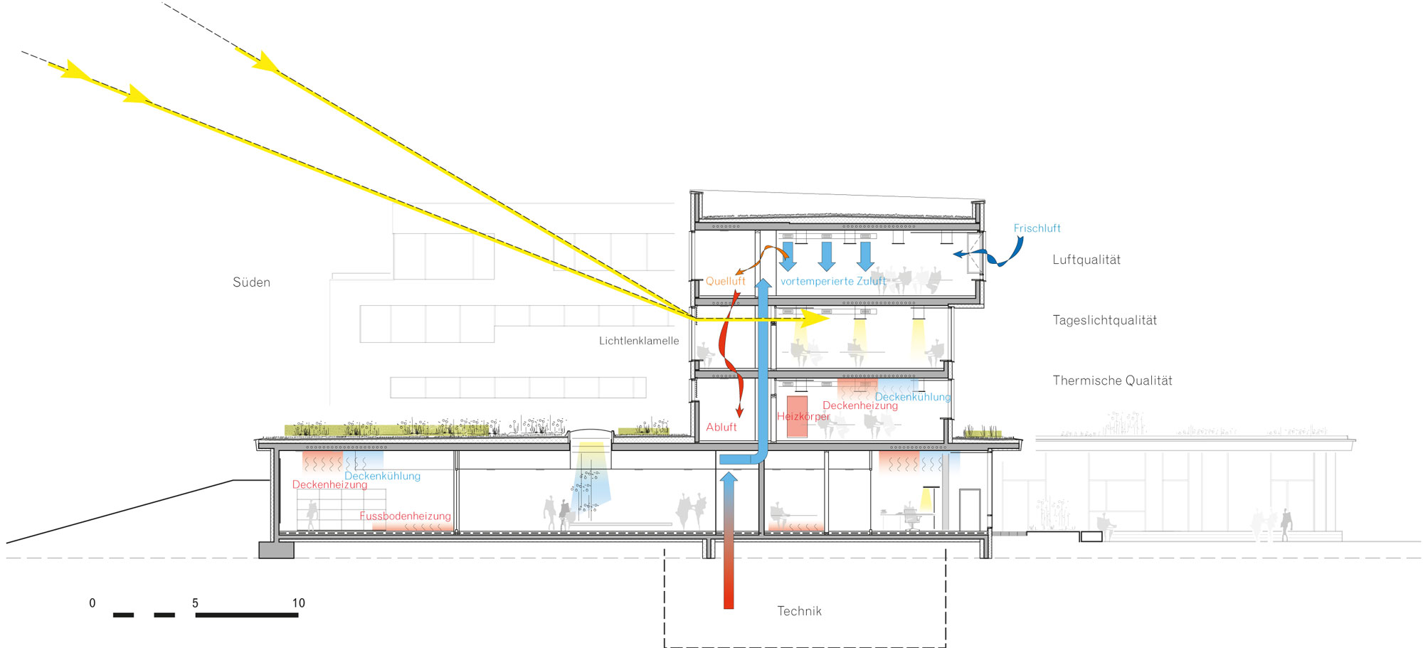
Von außen präsentiert sich das Schulhaus in strahlendem Weiß, lediglich an den Unterseiten der auskragenden Bauteile setzt sich die Farbe aus dem Innenraum fort. Fensterbänder betonen die Horizontalität des Baukörpers und lassen gleichmäßiges Licht in die Räume. Durch ihre Orientierung nach Norden sind sie sowohl vor sommerlicher Überhitzung als auch vor dem Lärm der Straße geschützt. Damit der Sonnenstand dennoch auch in den 8 m tiefen Klassenzimmern wahrnehmbar ist, wurden Oberlichter in die Zwischenwände eingebracht. Zusätzlich spiegeln bewegliche Lamellen auf der Fassade das Tageslicht in den Flur. Lichtfühler steuern die nötige Zumischung von LED-Licht.
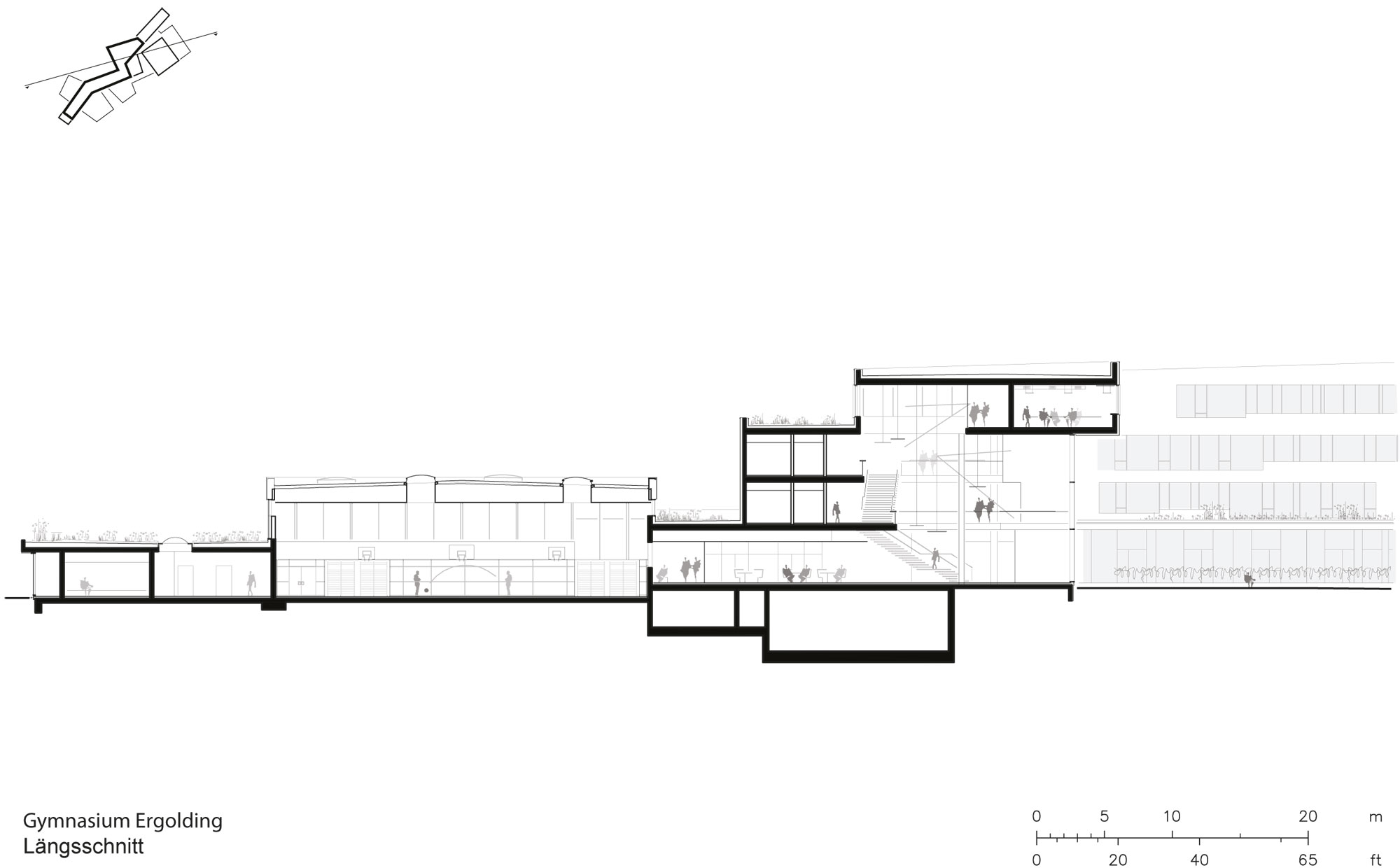
Die große Aula ist nicht nur Versammlungsstätte und überdachter Pausenraum, sondern gleichzeitig der geschossübergreifende Erschließungsraum und damit das Zentrum der Schule. Im Erdgeschoss gelangt man von dort aus in die Mensa, den Musikbereich, zur Verwaltung, der Bibliothek und in die Sporthalle. Freistehende Treppen führen in die drei darüber liegenden Geschosse. Zur Orientierung ist ihnen jeweils eine Farbe zugeordnet: im Erdgeschoss gelb, darüber orange, dann grün und schließlich in blau das dritte Obergeschoss mit den Fachräumen für Chemie, Physik und Biologie.
Neben den öffentlichen Bereichen wie der Mensa und der Sporthalle und den privaten Bereichen in den Klassenzimmern verfügt dieser Entwurf außerdem über semi-öffentliche Bereiche zum flexiblen Lernen. Die sogenannten Differenzierungsräume sind jeweils zwei Zimmern zugeordnet und bieten die Möglichkeit zur Förderung in Kleingruppen und zur individuellen Betreuung einzelner Schüler. Auch die Flure können als Erweiterung der Klassenzimmer gelten, schließlich bieten sie in dezentralen Lernstationen informelle Räume für Gruppenarbeiten aller Arten. Dazu bilden die Vor- und Rücksprünge der Fassade auf verschiedenen Höhen Bänke und Tische aus.
Die Stahlbetonkonstruktion mit Wärmedämmverbundsystem schließt mit leicht geneigten, begrünten Dächern ab, die das Regenwasser speichern. Außerdem werden über Erdsonden im Pausenhof 85% der Heizlast und durch die Kombination mit einem Gaskessel auch die Spitzenlasten abgedeckt.




















