// Check if the article Layout ?>
Barn with a Pool: House on the Seine
Photo: Antonin Ziegler
A new resident has arrived at the natural park of Boucles de la Seine. Its shell still gleams silver in the sunlight, taking on the appearance of a large machine. However, soon a patina will have covered the zinc sheeting. Then the monolithic house, which features a hipped roof and just a few openings, will awaken associations with the agricultural structures that used to dot the landscape here.
For the Barn, the skeleton of the former feed storage was first cleaned. The supporting wooden beams were stabilized with concrete at their feet. In the roof area, and in large sections of the walls, new wooden slats were added. On the exterior, the house was enhanced with insulation and a zinc-sheeting façade that covers the roof and extensive areas of the outside walls.
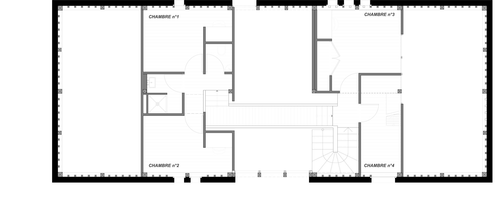
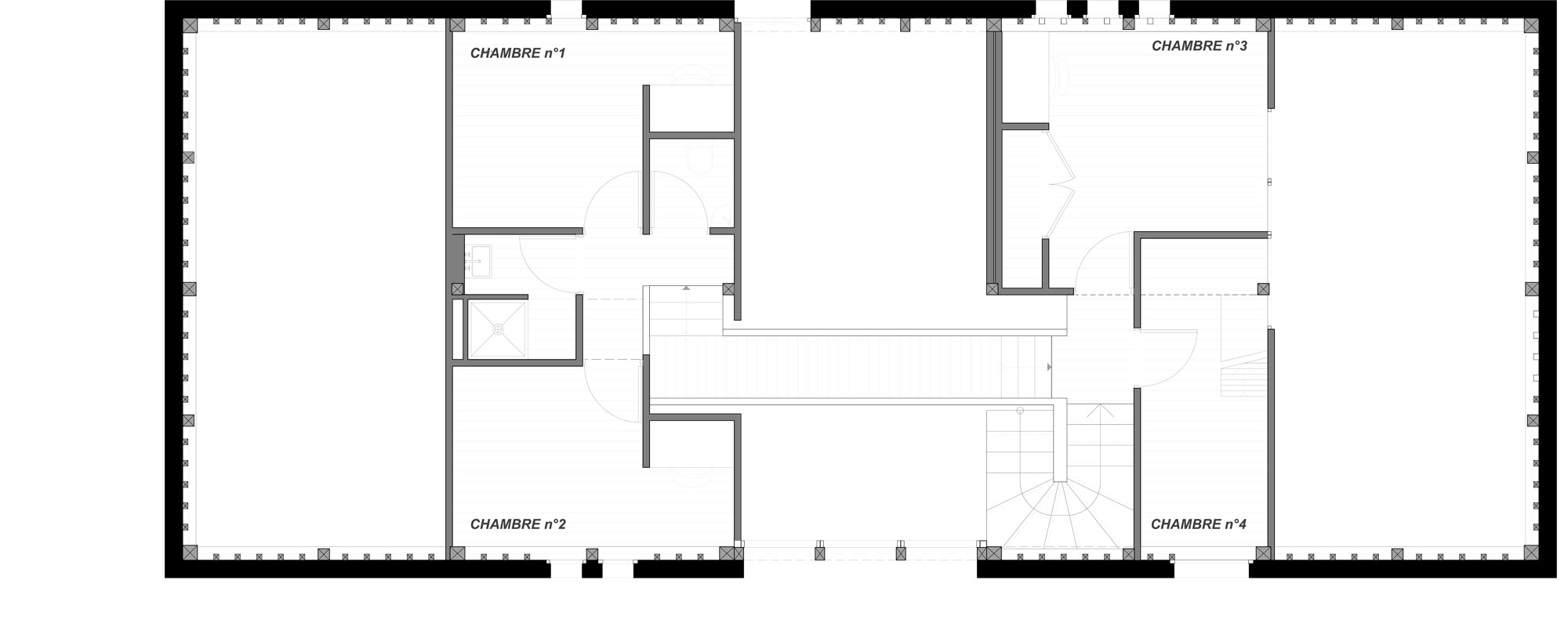
Inside, the beams characterize the look of all the spaces and structure their sequencing. Upstairs, four bedrooms hug the roof structure. This leaves more than enough room on the ground floor for a generous living room with an adjacent open kitchen. The pool is located at the opposite end of the long building. A couple of steps lead to this introverted space that is surrounded by wood framing and invites guests to relax.
Antonin Ziegler deliberately plays with rustic elements such as exposed stovepipes and unplastered walls made of porous concrete blocks. The poured concrete flooring transitions to the kitchen tiles without a threshold. Enormous, naked bulbs illuminate the working area.
On the façade, a tear along the roof and walls reveals the wood framing. With this tear, the architect wanted to give the house the look of something incomplete, or of a modern ruin.
For the Barn, the skeleton of the former feed storage was first cleaned. The supporting wooden beams were stabilized with concrete at their feet. In the roof area, and in large sections of the walls, new wooden slats were added. On the exterior, the house was enhanced with insulation and a zinc-sheeting façade that covers the roof and extensive areas of the outside walls.
Inside, the beams characterize the look of all the spaces and structure their sequencing. Upstairs, four bedrooms hug the roof structure. This leaves more than enough room on the ground floor for a generous living room with an adjacent open kitchen. The pool is located at the opposite end of the long building. A couple of steps lead to this introverted space that is surrounded by wood framing and invites guests to relax.
Antonin Ziegler deliberately plays with rustic elements such as exposed stovepipes and unplastered walls made of porous concrete blocks. The poured concrete flooring transitions to the kitchen tiles without a threshold. Enormous, naked bulbs illuminate the working area.
On the façade, a tear along the roof and walls reveals the wood framing. With this tear, the architect wanted to give the house the look of something incomplete, or of a modern ruin.
Further information:
Area: 217 m²
Costs: 262000 €
Finnishing: 2016
Costs: 262000 €
Finnishing: 2016
















